义乌旭辉国悦府
义乌旭辉国悦府营销中心电话400-681-7288接通后输入1111可转接销售
义乌旭辉国悦府售楼处电话400-681-7288接通后输入1111可转接销售
➤➤➤➤欢迎来电咨询,专业销售提供一对一服务,
涵盖房价特价、户型图、项目及房源介绍、周边配套等解答,VIP贵宾置业服务开启。

【开发商】旭辉集团,中国房地产开发排名500强TOP13,中国房地产稳健经营TOP1
【占地面积】约7.5万方
【建筑面积】约20万方
【产品业态】洋房,沿街商铺
【户型面积】约76-200㎡;
【规划户数】共计1580户
【容积率】2.0
【绿化率】30%
【楼盘均价】均价14000

【项目概述】
旭辉·国悦府,2022旭辉义乌战略新作,执首国贸大道,同频义乌发展进程,近揽轻轨义亭站,2站万达、直轨城芯,速达绣湖商圈等城央高地,无缝衔接精粹万象。此外,项目雄踞义亭区域核芯,盛汇义亭首座商综、三大优质学府、三大生态坐标等鼎阶资源,构筑繁华都会生活圈。


89平,三房两厅两卫,中间套





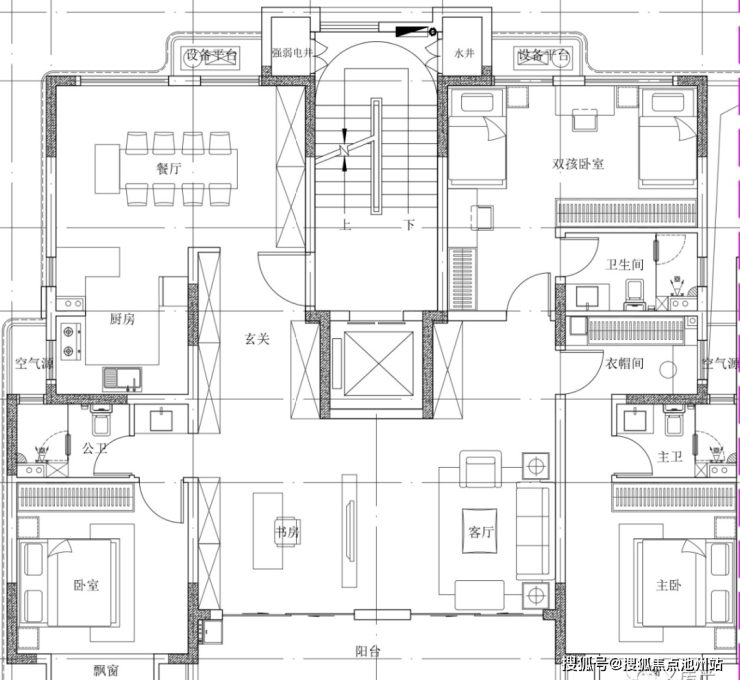
大老板 180平户型:四房两厅三卫,边套


义乌旭辉国悦府
义乌旭辉国悦府营销中心电话400-681-7288接通后输入1111可转接销售
义乌旭辉国悦府售楼处电话400-681-7288接通后输入1111可转接销售
➤➤➤➤欢迎来电咨询,专业销售提供一对一服务,
涵盖房价特价、户型图、项目及房源介绍、周边配套等解答,VIP贵宾置业服务开启。