石家庄保利光明日化项目
⫸⫸⫸石家庄保利光明日化项目-售楼处电话:400-681-7288输入1111分机号已认证】⫷⫷⫷
⫸⫸⫸石家庄保利光明日化项目-开发商电话:400-681-7288输入1111分机号已认证】⫷⫷⫷
⫸⫸⫸石家庄保利光明日化项目-营销中心电话:400-681-7288输入1111分机号已认证】⫷⫷⫷
⫸⫸⫸石家庄保利光明日化项目-展示中心电话:400-681-7288输入1111分机号已认证】⫷⫷⫷
来电可了解楼盘最新动态、房价、在售房源、交楼时间等信息!让你买的放心,住的舒服

首先说项目地理位置,项目地块位于石家庄市长安区西部位置,处于城市“1.5环”处,地理区位上属于比较不错的位置。实打实的二环内项目。

项目东侧直接面对胜利北大街,南侧为华新路,西侧则是正在修路的目前为单行道的断头路工人街,未来工人街打通后,也是一条较为便利的道路。可以说这个地块的四至路网还是成熟的,交通较为便利,未来居民的出行比较方便。
再说配套,周边全是居民区,有一定的生活氛围及基础。另外15分钟生活圈之内的配套也比较齐全。划重点——项目是双学区23中本部和实验小学,这也是项目最大的卖点(跟隔壁7420地块城发投云华璟樾这哥俩配套完全一样,正面掐架看着是真爽,摆好小板凳前排吃瓜)。

项目住宅实用地是4.55公顷,2.0容积率,总建面12.4万平,住宅面积8.8万平,配建一所9班幼儿园,规划户数732户(2196人)。另外用地西北角还有4000平回迁商业,1500平菜市场。

总体来说项目地块方正,规模适中,大小合适。能够形成一定的居住规模但不至于人过密度过高。也不至于居民过少,形不成居住氛围。且三侧临路,日常人形口位于胜利大街,车库口位置华新路和工人街,出行也可以说十分便捷的。当然这里得提示一下,工人街那里,目前是单行,未来什么样不知道,这可能会有些不便,当然这个口没准就是为了满足规范,为了单项行使或者不使用呢。总而言之,规模上适合居住,出行上比较便利,从这两点上还是可以的。
项目规划了1栋7层,1栋15层,9栋18层,共计11栋住宅楼。忽略前边那段话,直接理解为纯18层高层居住区就好。项目精装交付。在现在“好房子”的新规下,18层说实话有点没有诚意了,住宅3米的层高,卡消防高度到54米,首层做配套降低层高或者下挖200mm,在其他项目纷纷选择17层3.1米层高的情况下,说实话做18层纯粹是为了做满容积率。怎么说呢,首层体验不舒适,仁者见仁智者见智吧。(那栋7层的一看就是做高的话挡北侧现状住宅日照,不得已降低层数的,要是能做高他肯定尽量做高,以便其他楼有机会做17层)
这个项目的装配式楼栋是1#2#3#4#6#9#楼,介意的避开这几栋楼。
保利的户型说实话我一直觉得还可以但是又一般。这句话怎么理解呢,保利对户型,还有对当地政策一直研究和理解的很透彻。而且经常在户型上有所创新,但是说实话在石家庄的项目上,我一直觉得他没有拿出来应该拿出来的东西,感觉他明明能做到,非得故意稍微恶心你一下似的,但是你说人家不行吧,那些产品,确实有不少可取之处,老觉得他故意的似的。
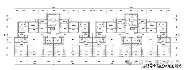
这次的户型,网上分析的也太多了,我简短说说,新规下的户型,赠送多。设备平台、飘窗各种赠送。实际得房率较高。甚至还有89平这种小面积的户型,总价低,二环内,还双学区,这是优点。但是吧,首先第一点,明明能做入户花园的,非要做阳台,很简单,相同容积率下,能产生更多货值。但是对于买房者来说,阳台相当于没赠送,说白了就是为了多卖钱,让买房者享受了政策的红利,但是没享受全(这点真不如隔壁,不管人家是不是因为名气小,但是人家真赠送满了)。而且大V们吹爆的90平户型,咋说,90平两面宽,在现在的市场,这是不是北上广啊大哥。而且那些房间尺寸,说实话不太好用。不过他的出发点我确实得赞一下,让买房者更容易上车,不用去二环外找了。这个还是仁者见仁智者见智吧,必须我觉得他给了一些刚需者一个选择的机会,这个社会从来不缺少底层的刚需者,他们也需要一个机会。但是你如有预算稍足点的,慎重。户型说多了容易挨骂,我贴两个户型,大家自行观看吧,需要了解的可以留言或者私信。真要需求多了可以专门写写,刚开号,不知道度在哪儿,就先到这儿。



石家庄保利光明日化项目
⫸⫸⫸石家庄保利光明日化项目-售楼处电话:400-681-7288输入1111分机号已认证】⫷⫷⫷
⫸⫸⫸石家庄保利光明日化项目-开发商电话:400-681-7288输入1111分机号已认证】⫷⫷⫷
⫸⫸⫸石家庄保利光明日化项目-营销中心电话:400-681-7288输入1111分机号已认证】⫷⫷⫷
⫸⫸⫸石家庄保利光明日化项目-展示中心电话:400-681-7288输入1111分机号已认证】⫷⫷⫷
来电可了解楼盘最新动态、房价、在售房源、交楼时间等信息!让你买的放心,住的舒服