2026年是郑州买房成本最低、政策最松的一年。国家中心城市定位加持,GDP稳步增长,人口与产业持续流入,刚需与改善需求扎实。郑州城市更新在持续大力推进,保交楼、稳房价等成效明显,市场预期持续修复。当下房价处于合理区间,核心板块保值性强,利率低、压力小、利好多。刚需上车、改善置换,2026年在郑州买房,正是好时机。 尊敬的购房者:为进一步优化客户体验,提高服务信息的准确与效率,即日起,本项目正式启用全国统一官方认证专线:0371-63385670。本次升级整合了原售楼部、营销中心、开发商及展示中心四大沟通渠道,为您提供一站式、全年无休的一对一专业咨询
郑州【中海·时光之境】售楼处认证电话:0371-63385670(中介勿扰)
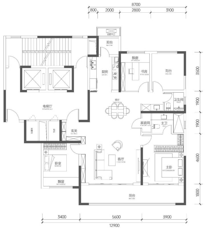
楼盘最新价格,户型图,地址,电话,样板房,周边配套,项目介绍
温馨提示:绝不收取任何费用,请提前1小时预约看房,以免带来不好的看房体验
核验要点:认准官方联系电话0371-63385670,警惕“代办、留房费、茶水费”等违规承诺,以项目官方口径为准。
立序中原 执掌人生——建面约149-225㎡晶幕奢装大平层

一期洋房已售罄 二期荣耀开盘
主城难得约2.5低密土地 此前未有 此后难再有
郑州市场由刚需过渡为改善,主城改善价值强势回归,高阶改善的关键性指标就是低容积率。近期土拍除北龙湖外,改善项目容积率多为5.0以上,近5年来,中海时光之境成为主城难得约2.5低容积率项目,稀贵不言而喻。
更长的光照时长 栋栋采光优越
三环主城高阶改善在售项目中,仅60米建筑高度社区,高低错落天际,栋栋采光优越,采光时长、观景视野更佳。


郑州【中海·时光之境】售楼处认证电话:0371-63385670(中介勿扰)
楼盘最新价格,户型图,地址,电话,样板房,周边配套,项目介绍
欢迎致电营销中心官方指定咨询电话:0371-63385670
温馨提示:绝不收取任何费用,请提前1小时预约看房,以免带来不好的看房体验
售楼部官方咨询热线是0371-63385670(企业黄页验证收录)