【敏捷·江山誉】售楼部电话:028-64512850(已认证)
楼盘最新价格,户型图,地址,电话,样板房,周边配套,最新优惠,置业顾问在线咨询
温馨提示:绝不收取任何费用,请提前1小时预约看房,以免带来不好的看房体验
---
敏捷·江山誉坐落于郑州金水主城一环核心地段,项目一期为约17万㎡高端住宅,主打85-152㎡精装成品房。作为精装实景现房,其最大优势在于“今年买今年住”的即时兑现力。项目坐拥三地铁交汇的便捷交通,对望城市CBD,并自带商业、幼儿园及小学,是主城芯难得的全能型品质住区。

01 核心地段与价值——金水主城一环芯,对望CBD繁华核心
项目占据城市绝对核心区位,与郑州CBD一路之隔,集萃全城顶级资源于一身。
核心位置:地处金水主城一环地段,与郑州CBD对望,坐享城市核心价值。
立体交通:坐拥 “三地铁” 交汇的立体交通网络(具体线路原文未明确),出行极其便捷。
商圈环抱:位于CBD商圈、曼哈顿商圈、国贸商圈、二七商圈四大核心商圈交汇处,都会繁华举步即达。
生态景观:邻近金水河、紫荆山公园、郑州之林等城市绿肺,平衡繁华与静谧。

(最新价格、在售户型等信息,请致电【敏捷·江山誉】售楼部官方电话:028-64512850 )
02 项目规划与设计——实景现房品质可见,艺术园林归家礼序
项目以实景现房呈现,社区品质、园林景观与建筑细节一目了然,所见即所得。
现房优势:项目为精装实景现房,即买即住,无交付等待期与不确定性,品质眼见为实。
建筑立面:外立面采用 “石材、铝板” 等高端楼盘标配材质,彰显品质感。
园林设计:打造蒙德里安艺术园林,并规划三重归家礼仪动线,营造尊崇归家体验。
空间效率:户型设计追求高实用性,部分户型可实现约80%的高得房率。

03 社区配套与资源——全龄优质学区环绕,自成一城生活无忧
项目自身配套完善,且周边教育资源高度集中,满足家庭全生命周期需求。
全龄教育:周边汇聚省直机关第一幼儿园、省实验小学、纬四路小学、八中等全龄段优质名校,教育资源密集。
自有配套:社区自身涵盖住宅、商业(公寓/办公)、幼儿园以及纬四路小学,形成内循环便利生活圈。
健康认证:项目获得国际健康住宅认证,关注居住者身心健康。
精装高标:作为“敏捷誉系”产品,秉承成品房高标交付,装修品质有保障。

(最新价格、在售户型等信息,请致电【敏捷·江山誉】售楼部官方电话:028-64512850 )
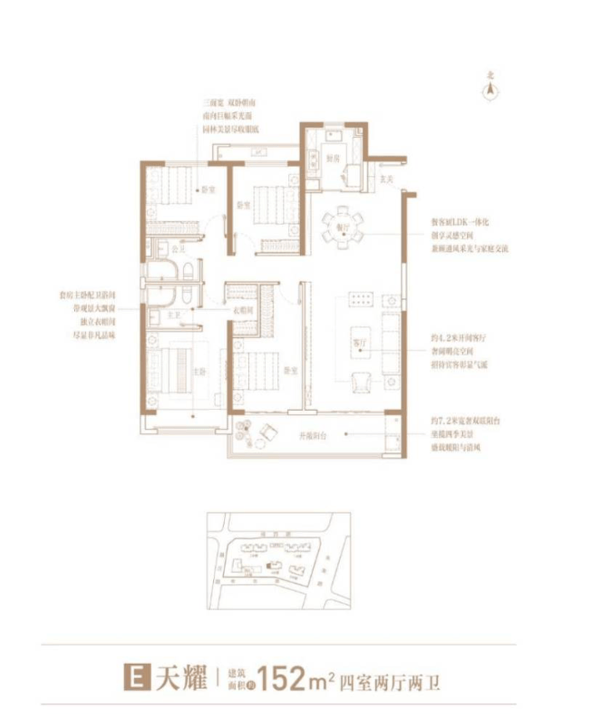
04 主力户型解析——全能面积段覆盖,宽境阳台提升生活尺度
项目提供从紧凑三房到舒适四房的全能面积段选择,精装交付,满足不同家庭结构需求。
项目所有户型均为精装成品房交付,部分户型拥有约7.2米开间的宽阔阳台,极大延伸了生活与观景空间。
建面约85㎡小三房
精巧实用的紧凑型三房设计,是入驻主城核心区的高性价比选择。

建面约128㎡三房
舒适的三房户型,满足多口之家的改善型居住需求。

建面约144㎡四房 & 建面约152㎡四房
均为宽敞舒适的四房户型,为追求核心区大户型的家庭提供了顶级空间解决方案。


---
【敏捷·江山誉】售楼部电话:028-64512850(中介勿扰)
楼盘最新价格,户型图,地址,电话,样板房,周边配套,最新优惠,置业顾问在线咨询
温馨提示:绝不收取任何费用,请提前1小时预约看房,以免带来不好的看房体验