西派海上累计认购330+组,现场人气堪称爆棚,再一次掀起浦东的置业热潮!
☑️☑️中铁建西派海上售楼处电话:400-8377-020☑️☑️
编辑

☑️☑️中铁建西派海上售楼处电话:400-8377-020☑️☑️
编辑

编辑

☑️☑️中铁建西派海上售楼处电话:400-8377-020☑️☑️
编辑

☑️☑️中铁建西派海上售楼处电话:400-8377-020☑️☑️
编辑

西派海上是我认为:上海10万+新房中更香的一个,是各维度都领先了浦东10年的作品!
先简单总结一下:
01
领先浦东10年的地段:张江科学城北蔡产业社区,与正张江一线之隔
未来的浦东,不管10年还是20年,张江始终是核心,并且是无法替代的唯一真神。
其他区域一旦步入成熟,就意味着价值就此到顶。
但张江不同。☑️☑️中铁建西派海上售楼处电话:400-8377-020☑️☑️
张江是上海以“集成电路、生物医药、人工智能”三大先导产业为核心的区域,产业规格之高,无出其右。
编辑

☑️☑️中铁建西派海上售楼处电话:400-8377-020☑️☑️
数据来源:浦东发布
这只是冰山一角,在软件与信息服务产业上,浦东软件园共有软件企业超1700家,从业人员超45000人(来源浦东软件园官网)。
新材料产业、航天航天等也皆处于全国龙头地位,不再赘述。
前沿产业+占全国超高比例的产值,决定张江科创霸主地位难以撼动,意味将持续吸引高知、高收入人才,所衍生的高端居住需求,将为张江、北蔡楔形绿地的房产市场带来源源不断的发展契机。
所以说,与张江一线之隔的地段,让西派海上在未来十年甚至数十年的时间中,都能维持着高姿态、高潜力、高价值。
编辑

☑️☑️中铁建西派海上售楼处电话:400-8377-020☑️☑️
02
领先浦东10年的生活方式&配套能级:内中环最后一个成片开发区域
北蔡楔形绿地是浦东烫金核心区域内,继陆家嘴、前滩、碧云、三林滨江之后,最后一块成片开发区域。
换句话说,这片区域是目前整个浦东的发展侧重点:必然拥有着目前浦东乃至上海最新的开发模式、建设理念以及资源倾斜。
这是浦东未来10年“更高标准”的支柱板块。
编辑

☑️☑️中铁建西派海上售楼处电话:400-8377-020☑️☑️
我简单提四点:
第一,目前张江科学城北蔡产业社区已经聚集了:中国铁建、国贸、绿城等众多一线实力房企了。另外,还有大量实力房企在等待后续的宅地出让。
一方面,国贸中国铁建首发,未来绿城等一线房企共同发力,未来区域的发展上限和笃定性是非常强的。
另外一方面,未来整片区域清一色的高端豪宅,界面崭新、板块调性很高,圈层更纯粹、更统一,妥妥的新一代国际住区!
编辑

☑️☑️中铁建西派海上售楼处电话:400-8377-020☑️☑️
第二,整个区域的首发住宅是西派海上,联动价约9.2万/㎡;
第二块住宅是绿城项目,地块装标竞价至5000元/㎡成交,成交楼板价7.14万/㎡。
相比西派海上,新地块的楼板价涨幅超过约28%!如果按照这个比例来算新地块的均价,那后续新房的价格或许约11.7万以上。
这样的价格大越级,即使是前滩也从未拥有过。
编辑

而未来的住宅,会在这个基础上越来越高。
这是价值的体现,也证明了政府对于这片区域的期待值之高,是超越以往的。
第三,目前,协和双语学校官宣入驻北蔡楔形绿地!
“协和教育”创始于1993年,秉持“融合中西,和谐发展”的核心价值,现已举办近40所幼儿园、10余所中小学、在校学生来自全球50多个国家和地区。
编辑

☑️☑️中铁建西派海上售楼处电话:400-8377-020☑️☑️
这所民办小学的能级和规格,相当出彩。
除此之外,西派海上旁边小学、中学规划也已出,在协和双语这样顶级的教育资源落地之后,公办学校的能级就更加让人期待了。
编辑

北蔡楔形绿地规划小学效果图,仅供参考
图片来源:https://www.pudong.gov.cn/zwgk/14523.gkmlywlgsxx_sjfags/2024/311/334002.html
(免责:本项目宣传中对项目周边教育资源的介绍,旨在协助提供地理位置等相关信息,并不视为本公司对就读学校作出承诺,学区划分等具体信息应以教育主管部门及办学方颁布的政策规定为准。)
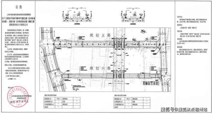
第四,整个区域内的基础建设已提上日程,即将开启全面发展时代。
除了以上所说的,整个北蔡楔形绿地内的主干道,规划五路(北中路-莲安东路)、规划六路(北中路-莲安东路)新建工程等规划也都落地。
编辑

☑️☑️中铁建西派海上售楼处电话:400-8377-020☑️☑️
而这样的资源倾斜+成片开发模式,也证明了这个区域未来的生活方式&配套能级,真的超越了浦东10年。
03
领先浦东10年的产品力:西派中国里程碑作品,奢配前所未有约8000方超级示范区,壹号产品力实景可见
关于西派海上的产品力,我真的只能说是“卷到头”了,接下来的高溢价率地王产品们,再卷也不过如此了。
✔全市罕见约8000㎡超级示范区;
✔约2000㎡华尔道夫酒店式高端会所;
✔李益中、胡栋民等当代大师操刀,原创定制汉白玉/非遗工艺系列雕塑;
✔归家动线用五湖四海高端奢石铺就;
✔荣获室内设计高级别金奖。
...
不管是审美、用料、会所的能级、园林的设计、水景的规格...西派海上都领先了浦东乃至上海10年有余。
凭借着这个产品力,在未来十年甚至更久的时间内,西派海上都将昂扬在二手房市场的最高处。
编辑

☑️☑️中铁建西派海上售楼处电话:400-8377-020☑️☑️
总结一下,不管是在产品力、地段能级、生活方式还是配套规格商,西派海上都代表着目前浦东乃至上海的更高水平。
所以,我们才会认为,这个项目会是浦东下一个十年,都难被超越的作品。
04
最新消息!
西派海上五批次收官房源认购中
推出最后172套压轴楼王产品
建面约88-103-105-110㎡3房
其中最低约500-600万级捡漏内中环
编辑

☑️☑️中铁建西派海上售楼处电话:400-8377-020☑️☑️
三大央景王座,直面水景+中央景观
另外,爆款户型再度来袭
先看本期新品:
首先,西派海上最后的这172套房源全部位于楼王楼栋内,享受着整个社区内最好的景观视野,我们具体来看:
7#:整个社区内唯二的10层洋房之一。
在寸土寸金的内中环,10层的洋房几乎是已经绝迹的藏品级产品,是目前浦东内中环独一份的稀缺产品!
编辑

并且,7#南侧拥有超大面宽+河景,北侧下楼就是约2000m华尔道夫级会所,这栋楼的稀缺性、景观、采光、视野、便捷度全部都做到了极致。
9#:临河的第一排。
南向拥有超大面宽+河景,拥有极佳的采光以及视野。
15#:位于社区的中央景观轴上。
同样拥有超大面宽和无敌采光。并且,位于社区的后排位置,更静谧。
最重要的是,这栋楼内拥有整个小区、整个浦东内环内最后的32套建面约88㎡小户型,总价约500-600万级就能上车内中环积分日光红盘,这真的是“捡皮夹”的!
这三栋压轴产品,每一栋都是楼王级的,享受着同级别产品中更好的视野、采光。
编辑

其次,除了楼王的价值外,项目本次将推出建面约88-110㎡3房,清一色的小户型。
这个产品有三点跟大家重点提一下:
第一,随着中小套数的新政出台,如今市面上的新房,起码都是约120㎡左右的产品。
就例如项目北侧的绿城项目,高层的户型为建面约120-145㎡。并且,未来的新房全部按照最新的中小套配比来。
也就是说,整个区域未来建面约120㎡以内的3房,或许只有西派海上一盘。
编辑

☑️☑️中铁建西派海上售楼处电话:400-8377-020☑️☑️
第二,西派海上拥有整个浦东内中环错过不再的超低均价!
西派海上的这最后172套房源,是浦东内中环仅有的、还有联动价的产品,并且收官房源中,建面约88㎡总价最低约500-600万就能上车。
而同环线的新房,如今的均价已经来到了约11万/㎡的大关。再加上约120㎡起的户型面积段,上车门槛高达约1300万+。
编辑

☑️☑️中铁建西派海上售楼处电话:400-8377-020☑️☑️
换句话说,西派海上的收官房源,意味着错过不再的超强性价比。
第三,建面约88-110㎡的爆款神户型!
产品设计方面,西派海上并没有因为低价而马虎,这个户型设计同样领先了浦东10年+:
编辑

虽然只是一个建面约88㎡的紧凑型小户型。但是飞机户型带来的高得房率,保证了这个户型的实际使用面积和尺度感,绝对不比一些百平米3房差。
另外,南北通透、三开间朝南、卫生间的干湿分离、全卧室带飘窗、U型厨房,这个户型拥有一个好户型拥有的全部优势。
以约500-600万级的价格买入,真的就是捡皮夹子!
编辑

☑️☑️中铁建西派海上售楼处电话:400-8377-020☑️☑️
编辑

☑️☑️中铁建西派海上售楼处电话:400-8377-020☑️☑️
建面约103-105㎡3房户型相比其他百平米3房而言,有3点优势:
①、三开间朝南,南北通透。宜居、舒适、采光充足。
②、相比市面常见动静分区结构,该户型几乎没有过道浪费面积,同时打造了阔绰餐厅,可从容放下圆桌,满足大家庭的用餐需求。
要知道,一般百平米户型只能房四人长条桌。
③、阳台做到多角度观景,多一面享受。
除此之外,边套的建面约105㎡3房户型还打造了南北卧室双约270度转角飘窗的设计,这个实际使用面积相当出众。
编辑

☑️☑️中铁建西派海上售楼处电话:400-8377-020☑️☑️
首先,这是洋房产品,所以垂直空间的住户更少,被打扰的可能性更少。
另外,洋房户型的实际使用空间天然会更高,所以这个户型的实际使用空间不比一般的大四房小。
再加上四开间朝南的户型,南向开间约13米+主卧约270°转角飘窗,这个采光、视野、景观真的是独树一帜。
最后,建面约110㎡3房是类一梯一户的居住体验,享受独立电梯厅!这是一个通常出现约180㎡以上大平层中的设计,现在居然出现在了一个面积约110㎡的产品中!
可以说西派海上把3、4千万级客户的尊贵感、隐私性给到了这个产品的客户。
而独立电梯厅的出现,相当于多了一个小厅,可以用来规划摆放收纳柜等,其实也变相提高了“得房率”。
编辑

编辑

迭代到最新款的产品
领先上海十年的封面作品!
高溢价率新房频频出现,市场上有很多人都认为,这些新房在产品力上一定会有所更新和创新,不然支撑不起那么高的房价。
这句话没毛病。但在我看来:同级别的高溢价率新房再如何更新和迭代,也不会比西派海上更出色。
作为西派顶序产品,西派海上的产品力已经超前迭代,更新到了最新款。
拎几个重点:
编辑

在会所层面,我认为不会有新房能够超越西派海上的会所。
一方面是体量:
西派海上打造了一个约2000㎡下沉式会所,内含孔雀廊、水吧、健身房、半标游池、壁球馆、私宴区、儿童区等,复刻华尔道夫传奇体验,构建一个“足不出户,奢享世界”的圈层领地。
编辑

☑️☑️中铁建西派海上售楼处电话:400-8377-020☑️☑️
编辑

另外一方面是用料:
比如,半标无边界泳池,池底运用了繁花马赛克,墙面与地面均使用大理石,天花板则运用发光玉石与造型艺术板,背景墙为LV同款定制双C造型艺术板。
这哪是一般的泳池,就是一个美术馆级的空间。
编辑

☑️☑️中铁建西派海上售楼处电话:400-8377-020☑️☑️
又比如健身品牌的使用,全会所健身器材采用豪宅标配的健身品牌waterrower的划船机、NOHrD跑步机、健身车等。
瑜伽室均采用定制品牌sws的真皮瑜伽垫、滚轴等,质感及调性拉满。
编辑

同时,项目还在部分楼栋内打造了架空层多元主题休闲空间。
一个集花艺、日咖夜酒、休闲阅读、咖啡体验、社交娱乐、骑行沙龙等多重功能为一体的“集中式”超级聚场,是业主解决亲子陪伴、半熟关系、邻里社交的理想之地。
温馨提示:架空层的部分功能区域(如日咖夜酒、咖啡体验)等空间,不具备经营功能,仅作为后期业主社交以及物业活动办理空间。
编辑

☑️☑️中铁建西派海上售楼处电话:400-8377-020☑️☑️
业主们除了在这里健身、运动、交友、part、遛娃,还能在中央洽谈区进行邻里交流,举手投足间尽显优雅品味。
这既是格调的象征,也能在无形中为二手房加分。
编辑

☑️☑️中铁建西派海上售楼处电话:400-8377-020☑️☑️
在公区层面上,西派海上不只是用料比肩顶奢豪宅,艺术感和氛围营造上更是卷上天际。
立面上:点缀了巴西铂金钻、巴西亚马逊绿等珍贵石材,让建筑历久弥新的同时一眼封神。
编辑

门厅上:采用高奢酒店“环岛式”落客流线,配有胡栋民先生操刀,从约1500公里外臻选的汉白玉整石雕琢而成的《海·回声》,墙面、地面采用奢石铺就。
编辑

☑️☑️中铁建西派海上售楼处电话:400-8377-020☑️☑️
室外公区内:还有由张代松大师纯手工打造的非遗纯铜雕塑,大量石材、金属的用料。
编辑

室内的公区:实现全石材背景,全金属吊顶,全地面拼花;墙面是意大利的贝金米黄,地面选择的是意大利布诺灰和丝绸之路,为海派拼花点缀。
编辑

☑️☑️中铁建西派海上售楼处电话:400-8377-020☑️☑️
这种把高端石材铺满社区多个角落的设计,未来的新房再卷也不过如此了。
编辑

最后,还有水景。
为什么很多大几千万级的新房都没有水景?
一来是社区的园林没有那么大,水景有也是点缀;二来是水景的维护需要大量的成本已经经验,这对于后期物业的考验是极大的。
而西派海上不仅做了水景,更是颠覆传统,打造了一个极具审美力的约450㎡马赛克无边水景,搭配下沉式卡座,“在家就是度假”,天天酒店式享受。
编辑

最后,还有一点需要强调,以上你所看到的:包括会所、架空层、公区用料、水景,全部都已实景呈现。
说实话,对于10-14万/㎡的新房而言,再卷也不过如此了。而这只是一个约9.2万/㎡的新房。
这就是西派顶序!西派中国里程碑式的作品!
编辑

☑️☑️中铁建西派海上售楼处电话:400-8377-020☑️☑️
浦东内中环更高想象力的区域
兑现进行时!
虽然都处于内中环,但地段价值上亦有差距,西派海上在内中环的地位无可撼动。
首先,距离陆家嘴直线约8km、距离前滩直线约9km,位于正张江。
而以陆家嘴和前滩为中心画圈,周边8-9km半径中,大多都是均价约14万+、甚至不乏有均价约16-17万+的顶级豪宅新房。
这意味着,西派海上的地段价值,是与市区均价约大几千万豪宅同级别的。
编辑

何况,西派海上还拥有极为出众的交通优势:项目近罗山高架路、内环(直线距离内环约2.2公里)、中环。
不管是去陆家嘴、前滩、世博,甚至是去浦西的杨浦滨江、北外滩,都是相当便捷的。
编辑

☑️☑️中铁建西派海上售楼处电话:400-8377-020☑️☑️
编辑

☑️☑️中铁建西派海上售楼处电话:400-8377-020☑️☑️
来源百度地图,以实际出行时间为准
另轨交上,项目周边直线约2km范围内,拥有包括2号线、13号线、16号线、18号线、磁悬浮等5条轨交,畅达全市的大部分CBD。
整个区域不管是地段、未来预期、教育资源、产业能级,都称得上是内中环的TOP。
在如此地段和产品力的加持下,西派海上均价约9.2万/㎡,简直就是“红包盘”!
1时代终章——浦东内中环
联动价“末班车”鸣笛启程
当上海土地市场的热浪持续翻涌,北蔡绿地最新楼板价飙升至71412元/㎡,新杨思板块地价突破7.4万/㎡,浦东内中环正经历一场价值重构的深刻变革。
在这个土地稀缺性与资产价值齐飞的时代,一个兼具“政府限价红利+产品力+日光级市场热度” 的传奇项目,迎来了它最后的珍藏时刻——国贸中国铁建·西派海上,以五开五捷的热度,正式启动第五批次最后172套建面约88-110㎡压轴加推!☑️☑️中铁建西派海上售楼处电话:400-8377-020☑️☑️
这不仅是一次房源的释放,更是一次浦东核心资产配置的终极机遇,错过即是永恒!
◼ 联动价红利:时代赠礼的倒计时沙漏
政策窗口闭合在即:2025年被称为上海“联动价红利爆发年”,但政策红利具有明显的时效性与稀缺性。随着北蔡、新杨思等板块地价直逼甚至超越新房售价,未来新盘价格体系重构已成定局。同板块新宅地楼板价71412元/㎡,而西派海上坚守的9.2万/㎡联动价,与周边地价形成近2万/㎡价差,堪称政策给予精明购房者的最后馈赠。
编辑

☑️☑️中铁建西派海上售楼处电话:400-8377-020☑️☑️
浦东内中环“绝版价”:项目所在的北蔡板块,作为内中环仅存的大规模成片开发区域,其地段价值早已被资本用真金白银投票认证。当同环线新房售价普遍站上12万+,西派海上以“9万+单价”实现“12万级品质” 的质价比奇迹,已成浦东改善市场的孤本。
◼ 收官战役:日光红盘的终极献礼
热销传奇续写终章:此前四次开盘,西派海上创下100%去化率浦东现象级战绩。每一次推售都是对市场信心的强力注脚,每一次售罄都是对产品价值的无声证言。
最后172席的稀缺分解:本次压轴加推的7#、9#、15#楼,蕴藏两大“绝版彩蛋”——
✅ 环线内最后32套建面约88㎡三房:浦东内中环500万级入场券终极释放,低总价锁定核心资产。(88平米整体700-800万,少量非标户型500-600万捡漏)
✅ 建面约110㎡边套最后18席:社区景观C位楼王,南向约13米开间+约6米巨幕横厅,终极改善的封箱之作。
编辑

☑️☑️中铁建西派海上售楼处电话:400-8377-020☑️☑️
28000㎡超级示范区
一场沉浸式的未来生活预展
【西派海上】不只是房子,而是献给上海的城市艺术品。作为国贸地产与中国铁建地产双世界500强联袂打造的“西派中国里程碑作品”,项目以示范级产品投入、全球顶序资源,重新定义浦东内中环品质天际线。
编辑

☑️☑️中铁建西派海上售楼处电话:400-8377-020☑️☑️
【温馨提示:按照项目规划,南北大门存在差异,南大门高度略低于北大门,敬请留意。】
全国大师天团联袂群著,跨界共塑海派新美学。
【西派海上】集结全国实力派设计力量,形成“大师天团”跨界共创——空间设计大师李益中以“LDKB+X”一体化厅打破传统住宅格局,营造灵动生活聚场,让功能与美学完美融合;景观由笛东操刀,以“公园里的华尔道夫”为核心理念,多重治愈场景串联起约450㎡无边水景、紫薇花廊与跨越多省精选的珍稀树王,漫步示范区宛若置身国际度假区;雕塑艺术家胡栋民则定制汉白玉门庭雕塑,灵感源自上海黄金年代的石库门与武康大楼,以现代手法复刻海派经典,让归家仪式成为一场穿越时空的艺术巡礼。
超级示范区实景兑现,国际海派生活无需想象。
【西派海上】以“所见即所得”的实景力碾压市场:约8000㎡超级示范区中,马赛克铺就的无边水景倒映艺术景墙,下沉茶室隐于斜飘铁冬青树王之下,紫薇花廊光影斑驳,每一处细节皆对标国际酒店品位。
约2000㎡高端会所更将海派奢华推向新的高度:
编辑

☑️☑️中铁建西派海上售楼处电话:400-8377-020☑️☑️
① 繁花之梯,同频百年华尔道夫,以精工细节打造海派艺术空间,一抹红色艺术楼梯是会所中的点金之笔,其形态宛若一缕红飘带,点缀于会所当中。
编辑

② 半标泳池,池底运用繁花马赛克,墙面与地面均使用大理石,天花板则运用发光玉石与造型艺术板,背景墙为LV同款定制双C造型艺术板。
编辑

☑️☑️中铁建西派海上售楼处电话:400-8377-020☑️☑️
③ 健身会馆,全会所健身器材采用豪宅标配的健身品牌waterrower的划船机、NOHrD跑步机、健身车等。
④ 下沉水院,核心焦点是天光茶室,打通首层水景池底,引入自然天光,整体营造比较浪漫、松弛的场景氛围,作为下午茶拍照打卡的理想场所。
源于全球珍藏手笔,细节镌刻圈层基因。
编辑

☑️☑️中铁建西派海上售楼处电话:400-8377-020☑️☑️
【西派海上】堪称“行走的奢石名木博物馆”——公馆门庭以整片巨型巴西铂金钻奢石景墙震慑视觉,单块石材纹理自然,如银河倾泻;会所吧台由整板亚马逊绿奢石切割而成,渐变绿色似热带雨林秘境;园林中更植入跨越多省超千公里精选的成对朴树、紫薇等珍稀树王,珍贵打造“活的生态遗产”。从石材到苗木,【西派海上】以“博物馆级”手笔,重新诠释高端住宅的质感标准。
当市场还在为 “效果图兑现” 争论不休时,西派海上早已用实景呈现打破行业想象!直接将 “所见即所得” 的高品质生活摆在购房者面前。这种降维打击式的诚意,不仅是对行业标准的颠覆,更是对人居价值的重新定义。
这,就是底气!作为西派中国里程碑式作品,它以超越价格的品质,让世界看到:真正的人居标杆,从来不以数字定义价值,而是用实景兑现的震撼,书写属于时代的传奇!
3重新定义浦东改善天花板
110㎡边套户型深度解析,该户型堪称“小面积段神作”,以四大设计重构改善逻辑:
编辑

南向约13米超级面宽:远超同面积段产品约9-10米的常规水平,实现3.5开间朝南,阳光渗透率达90%以上。
约6米横厅+双阳台系统:客厅、餐厅、厨房、阳台形成超40㎡的连续通透空间,家庭社交、亲子互动、派对宴请皆从容。
主卧270°全景舱设计:创新采用双转角飘窗,将楔形绿地与中央水景双重景观纳入私属领域,晨起观林海,夜卧枕星河。
在当下改善型住宅市场,真正能将空间利用率与居住舒适度完美融合的户型堪称凤毛麟角,而西派海上建面约103/105㎡的功能性真3房,无疑是其中的佼佼者。
凭借小高层的高得房率与飞机户型的精妙设计,这两款百平米户型打破了传统空间局限,以零走道的极致规划,将每一寸空间都发挥到极致,实现了真正意义上的三居室布局,与市面上常见的 “2+1 房” 竞品形成了天壤之别。
编辑

☑️☑️中铁建西派海上售楼处电话:400-8377-020☑️☑️
编辑

☑️☑️中铁建西派海上售楼处电话:400-8377-020☑️☑️
在浦东内中环改善市场一片 “大户型浪潮” 中,建面约88㎡的3房1卫堪称楼市 “沧海遗珠”,以刚需价位撬动核心地段,荣膺当之无愧的 “捡漏王” 称号!
此次加推的 15# 楼王尊席,占据社区景观中轴核心位置,不仅坐拥南北通透的经典飞机户型格局,更以 3 开间朝南的敞阔设计,搭配全卧飘窗的匠心巧思,将每一寸空间都化作生活的诗意栖居地。
更令人心动的是,入主内中环核心地段的门槛仅需 500-600 万起!在周边新房动辄千万的市场环境下,这样的 “黄金性价比” 堪称楼市奇迹。(88平米整体700-800万,少量非标户型500-600万捡漏)
然而机会稍纵即逝,此次仅限量推出 32 套,每一套都是无数购房者梦寐以求的安家钥匙。当稀缺属性遇上超高性价比,拼的不仅是预算,更是争分夺秒的手速!错过这 32 席,或许再难找到如此兼具地段、品质与价格优势的宝藏户型!
编辑

☑️☑️中铁建西派海上售楼处电话:400-8377-020☑️☑️
◼ 精装史诗:以高标准锻造生活肌理
西派海上的精装不是材料的堆砌,而是一场高级生活方式的场景化预演:
厨房系统:厨电配置了意大利品牌SMEG的灶台油烟机、博世太空舱五合一(蒸烤炸炖煮)蒸烤一体机与博世15套嵌入式洗碗机,霍尼韦尔前端净水器与末端净水器;

编辑
卫浴空间:卫浴洁具选用了全套的高仪产品,包括独立式全智能马桶、台盆、三孔调节龙头、恒温顶喷花洒等等......

编辑
☑️☑️中铁建西派海上售楼处电话:400-8377-020☑️☑️
细节偏执:全屋大量使用到奢石,归家门厅墙面采用石材镶嵌意大利毕加索奢石,地面采用大理石水刀海派拼花等,更显高端审美和品味。
4张江北蔡黄金三角的价值暴风眼
西派海上不仅是一个住宅项目,更是浦东发展红利的实体化载体。它占据着浦东最具爆发力的“黄金三角区”:
编辑

◼ 极核1:张江科学城——中国硅谷的科创心脏
产业核爆力:紧邻上海光源、张江药谷、人工智能岛等国家战略项目,汇聚中芯国际、和记黄埔等2万余家企业,年产值突破1.3万亿。
高知蓄水池:区域内拥有约50万科技从业者,其中硕士以上学历占比38%,平均年薪超45万元,形成强大的高端购买力基座。
配套升级战:张江科学会堂、上海科技大学附属学校、嘉里商业综合体等高能配套密集落地,生活能级直追徐汇滨江。
编辑

☑️☑️中铁建西派海上售楼处电话:400-8377-020☑️☑️
◼ 极核2:北蔡楔形绿地——浦东的中央公园
生态孤品价值:约10.6平方公里绿地(相当于15个世纪公园)环抱项目,政府斥资128亿打造“城市绿肺”,含体育公园、湿地博物馆等设施。
头排资产定律:参照纽约中央公园1公里内豪宅溢价率常年超30%的规律,西派海上作为绿地头排项目,坐享不可复制的生态溢价空间。
教育王牌落地:上海浦东新区协和教育中心(涵盖幼儿园至高中)已正式签约入驻,英式精英教育体系无缝衔接。

编辑
☑️☑️中铁建西派海上售楼处电话:400-8377-020☑️☑️
◼ 极核3:立体交通网——浦东双轴交汇点
多轨交护航:项目周边直线约2km范围内,拥有包括2号线、13号线、16号线、18号线、磁悬浮等5条轨交,畅达全市的大部分CBD。
路网加速度:西派海上还拥有极为出众的交通优势:项目近罗山高架路、内环(直线距离内环约2.2公里)、中环。
商业新极点:北蔡中环商务区规划50万㎡商业体,山姆会员旗舰店已动工,将再造一个“浦东新天地”。
编辑

☑️☑️中铁建西派海上售楼处电话:400-8377-020☑️☑️
当浦东的黄金时代列车呼啸而过,西派海上如同内中环最后一张头等舱车票。它以“10万级的价格”承载“12万级的品质”,用8000㎡实景示范区兑现改善承诺,更以张江+北蔡绿地双重核爆级规划锁定未来十年增长极。