西安「首创中心写字楼」
租售中心:029-88866618(营销中心)
租售地址:029-88866618(致电发送详情地址)

【首创中心】5A甲级写字楼+五星级酒店

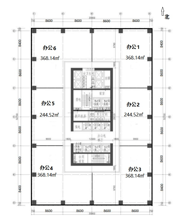
2、项目在售产品 61#整栋(5A甲写+酒店)
酒店配套:
一楼、层高6米,宴会厅入口、前厅、 办公大堂高(10.4m)酒店门厅、 宴会厅(560人)
二楼、行政区高4.4米,行政办 公、物业用房,大型宴会厅;
三楼、层高6米,特色餐厅及厨房; 4小2大多功能会议室配套用房;四楼、层高(7.6-2米管道),休闲 娱乐、健身房、瑜伽馆等功能


三、交通配套首创中心位于三环内,距离西安北客站1.2公里,片区内规划及在建多条地铁,公共交通及道路情况良好。
高铁:西安北客站,亚洲最大高铁站,西北规模最大、最重要的铁路枢纽,1小时省内生活圈,3小时抵达周边城市群,6小时长三角、京津冀,9小时珠三角,全国各大中城市快速往来畅行无忧。高速:临近三环、绕城高速、机场高速(15分钟即达机场)、包茂高速,自驾出行急速抵达周边城市。
地铁:2号线(北苑站,100米)、4号线(元朔路站,1.3公里)、机场城际线、13号线、14号线,四线环伺贯通市内各大区域。公交:714、108、263、264、265、266、108等公交经过项目地,便捷出行。
交通点评:项目位于北客站前核心位置,加之多条地铁、公交换乘,澎湃人潮刺激资金流、商务流、商业流形成区域中心。占据高铁、地铁、飞机、自驾、公交的五维立体交通枢纽,交通资源优势明显。

4、教育:3公里范围内,南党小学、经开五小、文景小学、西安经发学校、文景中学、西航二中、西安市第五十八中、长安大学、陕西科技大学等幼小初高大各阶段学校遍布周边。
5、医院:距离西安市中医院2.1公里,西航医院1.6公里,经开医院6公里,另有西安市儿童医院,西安市红会医院北院区,五所医院为周边市民保驾护航。
6、公园:南有800亩城市运动公园,距离约1.7公里;北有160亩文景山公园,距离2公里,双公园涵养绿色健康环境。

7、公园:南有800亩城市运动公园,距离约1.7公里;北有160亩文景山公园,距离2公里,双公园涵养绿色健康环境。
【首创中心写字楼】租售中心TEL:029-88866618【售楼中心】
了解最新优惠折扣价格——请拨打售楼处