华侨城·长安国际写字楼→电话→产品介绍→户型图→五证齐全

搜狐焦点安康站

2025-11-09 12:30:00

购房群

买房如何避坑,加入购房群,看看他们怎么说

立即进群

西安「华侨城·长安国际写字楼」

租售中心:029-88866618(营销中心)

租售地址:029-88866618(致电发送详情地址)

如需了解最新房源信息_在售房源价格_请拨打上方售楼部电话!

华侨城·长安国际

2452.75㎡ (整层)

正对SKP 中心广场景观

【项目位置】:南关正街88号

【地铁线路】:2号线-永宁门站上盖

【项目规划】:5栋纯甲级城市地标写字楼

【车位配比】:1000个,包月450元/个/月,临停4元/小时

【商业配套】:王府井百货、西安SKP、合生汇等西安顶级商业综合体

【项目优势】 全自持单一业权,大业主直租 位于西安古城墙南门广场西南角,拥有绝对一线的城市人文景观视野 集结全球五大行招商运营及物业团队 目前办公的企业涉及金融证券、科技医疗、互联网、咨询等众多行业 已有平安证券、辉瑞、特百惠、佳能、德国威能、强生医疗等20余家500强企业的强势入驻

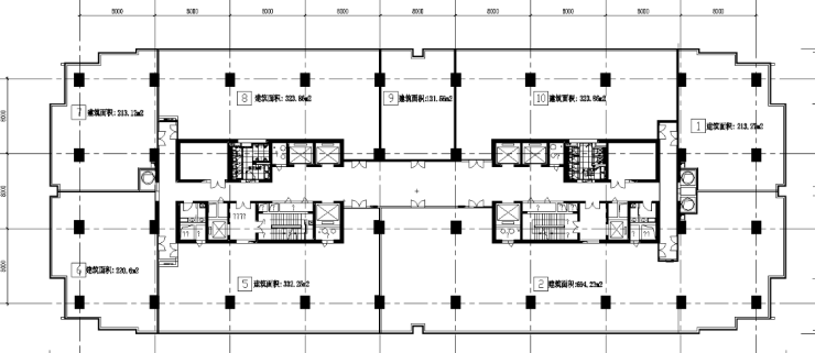
户型图

【华侨城·长安国际写字楼】租售中心TEL:029-88866618【售楼中心】了解最新优惠折扣价格——请拨打售楼处

全部
报名成功
稍后会有专业的置业顾问联系您
返回楼盘

频道导航

返回首页

看房小程序

APP下载

电话拨通后,请您手动拨打分机号

确定拨打电话

电话号码:

分机号:(可能需要拨分机号)