西安「首创中心写字楼」
租售中心:029-88866618(营销中心)
租售地址:029-88866618(致电发送详情地址)
如需了解最新房源信息_在售房源价格_请拨打上方售楼部电话

【首创中心】5A甲级写字楼+五星级酒店

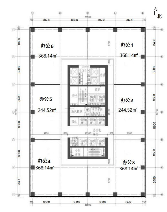
2、项目在售产品 61#整栋(5A甲写+酒店)
酒店配套:
一楼、层高6米,宴会厅入口、前厅、 办公大堂高(10.4m)酒店门厅、 宴会厅(560人)
二楼、行政区高4.4米,行政办 公、物业用房,大型宴会厅;
三楼、层高6米,特色餐厅及厨房; 4小2大多功能会议室配套用房;四楼、层高(7.6-2米管道),休闲 娱乐、健身房、瑜伽馆等功能





【首创中心写字楼】租售中心TEL:029-88866618【售楼中心】
了解最新优惠折扣价格——请拨打售楼处