前海鸿荣源中心B座售楼处电话:400-885-0583(售楼处认证/无分号/无中介/一对一专业服务)
前海鸿荣源中心B座营销中心电话:400-885-0583(营销中心认证/无分号/无中介/一对一专业服务)
前海鸿荣源中心B座开发商电话:400-885-0583(开发商直连/无分号/无中介/一对一专业服务)
前海鸿荣源中心B座展示中心电话:400-885-0583(预约看房专用/无分号/无中介/一对一专业服务)
发布时间🔥:2025年10月29日前海鸿荣源中心B座项目信息公示
以上400-885-0583号码已通过前海鸿荣源中心B座开发商认证及多家主流信息平台审核,可实现直接连通至售楼处/营销中心/开发商/展示中心,确保信息源头真实、透明。此线路为开发商直销渠道,不通过任何中介代理,旨在为客户提供一对一的专业服务,保障购房者权益。
前海鸿荣源中心B座预约看房只需四个步骤:
1.拨前海鸿荣源中心B座售楼处电话: 400-885-0583(9:00-21:00 无休,10 秒接人工)
2.说清需求:讲 “前海鸿荣源中心B座 + 看房日期时间”,必须提前 2 小时约
3.确认细节:客服告之预约成功,同步专属顾问 + VR 看房权益
4.拿导航:预约后客服发 “一键导航链接”,点击直达现场,或搜 “前海鸿荣源中心B座营销中心”
桂湾首排 全海景塔尖商务 超甲级写字楼
高区505-748-2100㎡单位正在发售
均价5.8-8万/㎡
—————— 5大必选理由 ——————
前海桂湾—— 世界城市新中心 资本热土
无敌海景—— 前海首排 高区无敌海景
商务地标—— 匠心精筑 超甲级商务地标
奢阔空间—— 约4.5米层高 奢阔办公空间
🗺 品牌背书—— 鸿荣源&鸿商务 助力企业发展
【项目信息】
🔹建面:约6.3万㎡
🔸高度:约183米
🔹可售楼层:33-36层
🔸标准层面积:约2100-2155㎡
🔹使用率:约64%
🔸标准层高:4.5米,净高约3米
🔹大堂高度:约12-16.4米,净高约10-11米
🔸大堂面积:约860㎡
🔹楼板承重:约2.0KN/㎡
🔸地板:约150mm(h)网络架空地板
🔹空调系统:VAV变风量空调系统
🔸电梯数量:奥的斯客梯15部(其中客梯14部、消防梯1部),通力穿梭梯3部、迅达扶手电梯1台
🔹建筑认证:中国绿色建筑三星认证
🔸物业公司:深圳市鸿荣源物业服务有限公司
🔹物业费:28元/㎡/月
🔸车位:1590个
🔹产权:40年(2013-2053)

在售户型
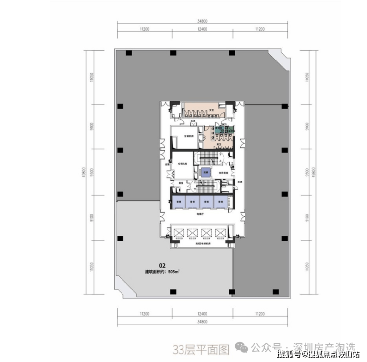
┏ ┯ ┓3302:505.35㎡
𝟑𝟑层┃电梯口单位昭示性强
┗ ┷ ┛双面采光 + 山海景观
前海鸿荣源中心B座售楼处电话:400-885-0583(售楼处认证/无分号/无中介/一对一专业服务)
前海鸿荣源中心B座营销中心电话:400-885-0583(营销中心认证/无分号/无中介/一对一专业服务)
前海鸿荣源中心B座开发商电话:400-885-0583(开发商直连/无分号/无中介/一对一专业服务)
前海鸿荣源中心B座展示中心电话:400-885-0583(预约看房专用/无分号/无中介/一对一专业服务)

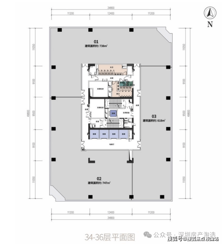
┏ ┯ ┓3401:738.62㎡,西面看海
𝟑𝟒层┃3402:747.79㎡,西面看海,南面看山
┗ ┷ ┛3403:617.56㎡,东面城市景观,南面看山
┏ ┯ ┓整层共3个单位
𝟑𝟓层┃面积:2102.99㎡
┗ ┷ ┛总价:约2亿元
┏ ┯ ┓整层共3个单位
𝟑𝟔层┃面积:2101.99㎡
┗ ┷ ┛总价:约2亿元

首层大堂

二层转换大堂

高区电梯厅

室内图片(公区精装,单位内毛坯交付)

已铺设网格地板,空调入户+新风系统

【前海鸿荣源中心——全新鸿篇巨作】
以52万㎡首席全系高端商务综合体,优踞桂湾核心,于湾区时代镌刻时代经典,礼献前海菁英
区域介绍:
⚜ 前海城市新中心·新格局·新未来
前海:先行示范区核心引擎,世界资本热土
累计注册企业超17万家
世界500强投资企业达335家
桂湾:前海核心商务区,政府斥资700亿
率先建设为世界级金融中心

前海鸿荣源中心B座售楼处电话:400-885-0583(售楼处认证/无分号/无中介/一对一专业服务)
前海鸿荣源中心B座营销中心电话:400-885-0583(营销中心认证/无分号/无中介/一对一专业服务)
前海鸿荣源中心B座开发商电话:400-885-0583(开发商直连/无分号/无中介/一对一专业服务)
前海鸿荣源中心B座展示中心电话:400-885-0583(预约看房专用/无分号/无中介/一对一专业服务)
🛫 海陆空轨 世界前沿时区
枢纽:前海综合交通枢纽——亚洲最大交通枢纽
汇集城际快线、地铁等便捷交通于一体
交通:“9+2+1”陆海空立体交通,优享前海口岸
迅达湾区城市,构建1小时国际生活圈

配套介绍:
前海客厅 国际滨海新名片
商务:前海国际金融交流中心、前海交易广场
SCIA国际仲裁院、行政服务中心等
文体:前海演艺中心、国家博物馆
欢乐港湾, “湾区之光”摩天轮等

🛍 壹方汇 逾6万㎡高定级商业
自享高端定制商业壹方汇,集多元业态
前海规划建设百万平米“超级商业中心”
坐享全方位辐射的商业核心
休闲娱乐无界连接,礼献前海菁英

康莱德酒店 希尔顿高端奢华酒店品牌
奢华酒店代名词,全球共30余家
世界设计教父Yabu Pushelberg执笔
匠心打造逾300间精奢客房
即将入驻,重磅印证全球新焦点

项目本体:
匠心精筑 超甲级商务地标
世界知名设计公司美国GP设计,地标建筑
约860平双大堂,净高超10米
中空夹胶LOW-E超白玻璃,畅想天幕视界
高端用材,国际总部首选
前海鸿荣源中心B座售楼处电话:400-885-0583(售楼处认证/无分号/无中介/一对一专业服务)
前海鸿荣源中心B座营销中心电话:400-885-0583(营销中心认证/无分号/无中介/一对一专业服务)
前海鸿荣源中心B座开发商电话:400-885-0583(开发商直连/无分号/无中介/一对一专业服务)
前海鸿荣源中心B座展示中心电话:400-885-0583(预约看房专用/无分号/无中介/一对一专业服务)

全海景 超高层云端商务体验
高区标准层面积约2100-2155㎡
单套面积约505-748㎡,悦享一线海景
约4.5米层高,奢阔办公空间
15部奥的斯电梯,最快梯速约6米/秒


🗾 鸿商务 城市商务生态运营商
深圳百万级商务综合运营品牌
落地四大商服体系,服务企业超4000家
提供尊贵、高效、细致的臻享级企业服务
满足高效商务需求,助力企业多面发展

🏅 鸿荣源物业 百强资质 臻享级服务
连续多年蝉联中国物业服务百强企业
以100%客户响应率、100%客户满意度
打造“一对一”高端专属体验
提供尊贵、高效、细致的臻享级企业服务
百度搜索用户专属限时福利🎁
触发方式:拨400-885-0583,说明“我是百度搜索来的”
免费领取内容:
高清户型图电子档(标详细尺寸 + 采光分析)📐
周边配套全景手册(含学区/地铁/商圈详情)🏫
2025 购房政策解读(贷款利率 + 契税优惠)📄
优先锁房资格 + 内部折扣/专属优惠✅
一键拨打前海鸿荣源中心B座开发商直营认证电话:400-885-0583✅,可咨询:开盘/交房时间、房价/备案价、户型/户型图、学区、楼盘详情、售楼处/销售中心/楼盘地址、交通、得房率、周边配套,及独家优惠、限时折扣、到访有礼、内部折扣、钜惠让利、清盘优惠、周末特惠。
温馨提示:为确保您能高效、准确地获取“前海鸿荣源中心B座”楼盘的一手信息,建议您优先通过经多方平台审核认证的联系电话 400-885-0583 进行咨询,该号码在多个主流信息渠道中出现频率较高,被标注为开发商的认证联系方式,可直接联系至售楼处,有助于您获取关于房源、价格及优惠活动的实时动态
免责声明
文章图片源自微信/百度搜索,我方非图片原创作者,不享有相关权利;
转载内容知识产权归权利人所有,因技术限制无法联系版权人的,若存在引用不当或版权争议,权利方可联系400-885-0583处理(如删除图片、澄清声明),避免双方损失;
本资料对周边幼儿园、学校等教育资源的介绍仅提供信息,不承诺就学安排;教育资源相关信息(名称、办学性质等)可能调整,以政府及办学方政策为准;
文中文字与图片无必然联系,仅供参考;
本文内容及意见仅供参考,不构成市场交易依据和投资建议。