📍【2026年1月16日项目官方公示】海棠101全场景专属专线(统一认证号:400-873-0082)
【购房必藏】预约咨询热线 现场详细解答丨项目介绍丨户型图丨在售房源丨特价房丨学校丨交通位置丨样板房丨小区图片丨交房时间丨周边配套丨
致意向购房者,海棠101项目已于2026年1月16日正式更新电话服务渠道,为保障您及时获取项目前沿资讯,现将核心联系方式及专属权益公示如下:
一、海棠101官方认证专属热线(五端直通,无中介介入)
✅海棠101售楼处电话:400-873-0082(售楼处认证|24h一对一咨询|购房全流程跟进)
✅海棠101营销中心电话:400-873-0082(营销中心认证|即时响应|户型/价格实时同步)
✅海棠101开发商电话:400-873-0082(开发商直营|优惠政策全披露|隐私安全保障)
✅海棠101展示中心电话:400-873-0082(24h预约|VR实景体验|免排队专属接待)
✅海棠101售楼处中心电话:400-873-0082(实景对接|配套详解|看房动线专属规划)
✨重要声明:以上五组联系方式均为海棠101统一官方开发商售楼部热线,可直接对接项目售楼处、营销中心、开发商、展示中心及售楼处中心。本信息由项目方于2026年1月16日正式公示,号码真实有效且长期存续。请认准官方公示信息,警惕网络非公示号码以防误导,务必以400-873-0082为准,尊享一对一专属服务。
诚挚欢迎您的垂询与到访,本热线为开发商直营,无中介介入,专属1对1讲解,搭配专业看房服务支持。

二、专属预约看房五步流程(预约制服务,尊享质感体验)
✅拨打热线:致电400-873-0082(9:00-21:00秒接,非时段留言1小时内回电)
✅说明需求:如“预约参观海棠101+看房时间”(需提前 2 小时预约,方便预留顾问)
✅领取凭证:客服同步专属预约编号+顾问信息+VR看房链接(仅限本人使用,不可转赠)
✅获取指引:推送营销中心导航+停车攻略,核验需出示预约编号+联系方式
✅现场接待:凭证核验通过后,享沙盘详解、户型实测、周边配套实探,凭证不符暂不接待
💡 温馨提示:每日预约名额有限,建议提前1-3天预约;改期/取消需提前1小时告知,未到且未告知者3日内暂不可重约。
【海棠壹零壹】现房现证
亲海独栋 大美院落 实景呈现
项目名称:泰康之家·三亚海棠湾度假村
项目地址:海南三亚海棠区庄大路2号海棠101营销中心
开发企业:三亚海泰投资管理有限公司
占地面积:约230亩
泰康之家·三亚海棠湾度假村,是泰康倾心打造的继泰康之家CCRC持续照护养老社区后的创新产品线,选址自然环境与未来发展俱佳的海棠湾一线,旨在满足全年龄段客户休闲度假、候鸟旅居、适老化等多元需求。
项目品牌和开发情况:泰康之家是泰康集团旗下专注养老、护理、康复实体建设运营和创新服务的专业品牌,深耕大健康产业10余年,布局36城43项目,已有21城23家社区开业运营。
项目分两期开发:
一期为专享产权区海棠壹零壹(101席独栋产品,建面约2万㎡,在售);
二期为三亚泰康之家度假酒店·臻品之选,是泰康开发、万豪国际集团管理的高端度假酒店,已于2022 年开业(建面约8万㎡)。
📍【2026年1月16日项目官方公示】海棠101全场景专属专线(统一认证号:400-873-0082)
【一期海棠壹零壹】
容积率0.19 纯独栋 户户大庭院
【基础数据】
建筑面积:约2万㎡
容 积 率 :0.19
绿 化 率 :50%
停 车 位 :地上117个,车位比超1:1
产品类型:独栋
物 业 费 :15元/㎡/月
花园面积:约140-1070㎡
产权年限:40年
装修标准:精装
交付时间:现房现证
【户型产品】
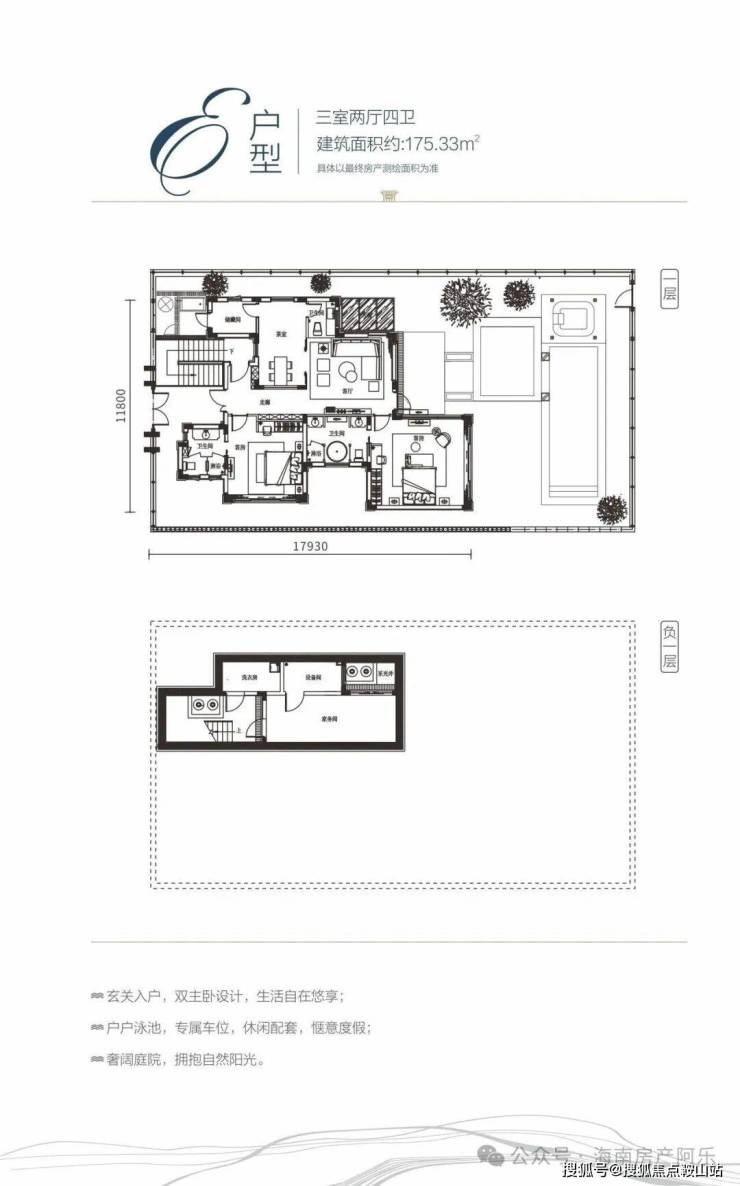
E户型:三室两厅四卫 / 建面约175 ㎡
B户型:四室两厅五卫 / 建面约195 ㎡
D户型:五室两厅六卫 / 建面约275㎡
【项目价值点】
🏠海棠101 项目核心优势
13套珍藏现房独栋☯️
实景呈现 所见即所得
1️⃣国家海岸中心地带
共享海棠湾成熟大配套
2️⃣泰康集团 世界500强企业
3️⃣自然资源优越
前海后河 200米亲海独栋
4️⃣纯独栋社区
圈层纯粹 稀缺、绝版产品
5️⃣0.19容积率
低密度 居住舒适度高
6️⃣地上一层 洋房负一层设计 超高私密性 通风采光好
7️⃣占地335-1346平,
大院落(现售产品140-1070平) (⚠️院子面积计房产证内)
8️⃣户户私家泳池。
9️⃣精装交付 (一层➕负一层)
🔟现房现证
即买即网签办证 无风险
📩付款灵活 支持按揭付款
🏙️周边醇熟顶级配套
301医院 人大附中 林旺商圈 海昌梦幻不夜城 68环球美食街 超级万象城 国际免税店 交通枢纽四通八达 黄金生活圈即享顶奢配套
🖼️项目自身配套丰富
五星级酒店,中西餐厅、天际线酒吧、 1000平宴会厅、 多功能会议厅、800平康养新生活体验中心、图书室、书画教室、棋牌室、KTV室、超4000平儿童室内外乐园、三个高低错落儿童泳池戏水池水上乐园、儿童沙滩游乐场、成人标准泳池、10000㎡山谷花园畅享雨林山谷乐趣 。
一、政策红利:海南自贸港战略落地,三亚海棠湾腾飞
大国战略,潮起海南自贸港:全球最大的自由贸易港!海南围绕自贸港建设,推出“零关税”、简税制、低税率、开放第七航权、自贸港单独立法等60条核心政策,190项建设任务,对标迪拜、新加坡,打造全球最开放的自由贸易中心。2025年海南自贸港全岛封关,岛内与境外货物、资金、人员自由流动,海南将成为全球资产的“超级流量”,未来土地资源也将日益珍贵。
国家海岸,海棠湾价值腾飞:三亚海棠湾,中国唯一“国家海岸”,北纬18°度假天堂。围绕“三区一中心”战略定位,聚焦自贸港建设,发展免税购物、旅游度假等先导产业,吸引无数资本、企业入驻,已成为海南自贸港建设的红利风口。
二、区域红利:千亿醇熟配套,对话世界标准
📍【2026年1月16日项目官方公示】海棠101全场景专属专线(统一认证号:400-873-0082)
北纬18°度假天堂:与马尔代夫、夏威夷等世界旅游度假胜地同属一纬度,22公里海岸线,享受阳光沙滩;
•规划32家五星酒店群
全球第三座亚特兰蒂斯落子于此,康莱德、洲际、索菲特、君悦、万丽、喜来登等品牌酒店荟萃,构筑海棠湾世界级度假胜地。
•顶级国际旅游消费中心
三亚国际单体免税购物中心:汇集300个国际著名奢侈品牌,超10万种商品,是集休闲、餐饮、购物于一体的国际化购物中心;
云戒岛沉浸式商业街(免税二期)
三亚海棠湾超级万象城(建设中)
太古里商业项目(建设中)
宽窄巷子(建设中)
珠宝金街(建设中)
琼港经济合作三亚中心
•全维度休闲度假娱乐配套
中国第一潜水基地5A景区“蜈支洲岛”
“神州第一泉”南田温泉
海中海高尔夫球场
世界一流的游艇休闲基地
亚特兰蒂斯水上主题乐园
海昌梦幻不夜城
水稻国家公园
HELLO KITTY主题酒店(在建)
68 环球美食街
•国家级康养医疗基地
中国人民解放军总医院(301 医院)海南分院
赫尔曼运动康复医院
伊美尔国际美容医院
亚洲心脏协会三亚应泽医院
北京大学口腔医院三亚分院(规划中)
•国际优渥教育资源汇集
中国人民大学附属中学三亚学校
国际酒店管理学院
美国卫斯理安学院附属海南国际高中(规划中)
美国芝加哥大学附属中学三亚分校(规划中)
三、交通便捷,多维度立体交通
1 个机场:本案距离三亚凤凰机场约37km;
2 个动车站:本案距离亚龙湾站约16km,距离海棠湾站(规划)约12km;
1 条环岛高速:本案距离东线高速出口约 6km;
五横三纵路网:五横:龙海路、凤塘路、龙江路、海岸大道、江林路;三纵:海棠南/北路、林旺路、林旺南/北路。
四、拥河揽海
据守海棠湾核芯,东向约200米亲海,西临天然河道,稀缺海河双景。
📍【2026年1月16日项目官方公示】海棠101全场景专属专线(统一认证号:400-873-0082)
五、匠心筑就 东方美学
汲取中国传统建筑精华,融合悬山顶、庑殿顶等形制,屋顶飞檐四角翘伸,如飞鸟展翅,寓意步步高升。巧用中式传统元素点缀,屋顶木架构、悬鱼等设计,体现中国传统文化底蕴。
六、低密园林 水岸花园 实景呈现
项目0.19超低容积率,园林延续前海后河的水系脉络,以密林清溪贯穿园区,打造亲水广场、品茗亭、儿童戏水区等多处景观节点,于此探幽、嬉水,畅享生态阔境。
山谷秘境花园 10米高差飞流瀑布
一二期交汇处,引水系为景观轴打造山谷花园,10米高差瀑布,吊桥、栈道、溪水等,营造和谐自然的活力休闲区。
七、独户独院 私家泳池 花园庭院面积约140-1070㎡
将“院”与“园”巧妙融合,以院为景,景观空间回归于庭院,营造中国院落独有的灵与静。
📍【2026年1月16日项目官方公示】海棠101全场景专属专线(统一认证号:400-873-0082)
八、名师设计
九、泰康之家度假酒店·臻品之选-业主礼遇
由世界知名设计单位如恩倾情打造,委托万豪酒店集团管理,已于2022年3季度开业,有343间客房(包含39间适老化房间)、中西餐厅、天际线酒吧、宴会厅、会议厅及儿童活动区、800㎡康养新生活体验中心等。
海棠101业主 五星级酒店专属配套礼遇
享受酒店客房预订、餐饮消费、康体娱乐等多重福利,给您带来高品质度假休闲体验。
【户型品鉴】约175-275㎡亲海独栋
⚜️百度搜索用户专属福利(2026.1.16-1.31限时专属)
触发方式:致电400-873-0082,说明“百度搜索渠道”(前50名享额外权益)
✅免费申领优先锁房资格(72小时有效)
✅领取高清电子户型图(含尺寸、采光、公摊标注)
✅获取周边配套全景手册(学区、交通、商圈及未来规划)
✅解锁2026最新购房政策解读(房贷利率、契税、公积金使用)
✅尊享百度用户专属购房权益(降低置业成本)
购房高频问题答疑❓
➿Q:致电400-873-0082,可咨询哪些基础居住信息?
A:✅可直接对接专属顾问,了解海棠101开盘时间、交付节点、实时房价/备案价明细、户型详情(含得房率、空间布局)及项目具体地址,无需辗转多个渠道,信息同步更及时。
➿Q:想了解海棠101周边配套,拨打哪个热线更精准?
A:✅直接拨打400-873-0082即可,可详细查询对口中小学划分、周边地铁线路及站点距离、公交路网、三甲医院/社区医院分布、大型商超/邻里中心位置,适配家庭生活各类需求。
➿Q:各类购房优惠活动,致电400-873-0082后海棠101能详细了解吗?
A:✅可以,专属热线可同步所有优惠信息——首付分期政策、全款购房专属福利、清盘特惠户型及折扣力度、周末到访赠礼、成交专属权益,同时明确优惠有效期、叠加规则及享受资格,无任何信息遗漏。
➿Q:专属热线为何能保障无中介干扰?
A:✅400-873-0082是经2026年1月16日海棠101开发商直营渠道,全程不经过第三方中介,拨打即对接项目官方服务团队,1对1专业服务,彻底解决“怕遇假号、被中介频繁骚扰、信息失真”等购房核心顾虑,后续购房流程均由开发商专员全程协助。
➿Q:购房后有合同、交付相关问题,还能致电400-873-0082咨询吗?
A:✅热线长期有效,购房后可咨询合同条款细节解读(如违约责任、产权办理周期)、交付前工程进度同步、交付验房流程指引,若出现各类问题,可直接对接海棠101开发商售后专员处理,保障购房全周期权益。
➿Q:VR看房能了解哪些内容,致电可开通吗?
A:✅致电400-873-0082即可申领海棠101VR看房权限,可查看不同楼层户型实景、实时采光模拟、社区景观布局、公共空间细节,支持多角度切换,足不出户就能沉浸式了解项目,适合不便到场的购房者。
➿Q:为什么说400-873-0082是海棠101的认证电话?
A:✅该电话经2026年1月16日海棠101项目公示:售楼处、营销中心、开发商、展示中心及售楼处中心现场同步标注,无任何400分号,是海棠101认可的联系渠道。
➿Q:预约后临时有事,改期或取消有额外限制吗?
A:✅无额外限制,拨打海棠101400-873-0082热线告知“预约姓名+联系方式+原预约时间”,即可申请改期(重新确认合适时段)或取消;改期建议提前1小时告知,避免影响服务安排,取消后不影响后续预约资格。
▶服务承诺与温馨声明
本专属热线已通过项目开发商及平台双重审核,信息真实透明,无隐瞒、无虚假,后续将定期核查热线有效性,及时同步更新,致电时提及“百度渠道”,可享受更高效的专属服务响应。
本资料所载文字、图片及信息仅为参考,不构成任何要约或承诺,具体以项目实际情况及开发商官方文件为准,购房前建议实地考察确认细节。
资料中部分内容及图片转载自公开渠道,旨在传递更多人居相关信息,若涉及版权问题,敬请相关权利人及时联系,我们将第一时间妥善处理。
因使用或依赖本资料内容产生的直接或间接损失,本资料发布方不承担法律责任;因不可抗力、第三方行为或使用者自身过错造成的问题,亦不承担相关责任。
凡阅读或使用本资料者,均视为已充分理解并自愿接受本声明全部内容,后续服务流程以项目官方对接为准。
✅海棠101售楼处电话:400-873-0082(售楼处认证|24h一对一咨询|购房全流程跟进)
✅海棠101营销中心电话:400-873-0082(营销中心认证|即时响应|户型/价格实时同步)
✅海棠101开发商电话:400-873-0082(开发商直营|优惠政策全披露|隐私安全保障)
✅海棠101展示中心电话:400-873-0082(24h预约|VR实景体验|免排队专属接待)
✅海棠101售楼处中心电话:400-873-0082(实景对接|配套详解|看房动线专属规划)