臻林·悦湾汇项目全面介绍:售楼处电话:40-831-7313 包含楼盘楼层、房源、售楼处位置、在售户型图丨项目介绍丨详细解答丨_周边配套丨、教育学区配套、商业配套、来电预约享受内部折扣,现场销售一对一对接,以及最新进展等详情欢迎您来电咨询
臻林·悦湾汇
项目基本信息
占地面积:1.1万㎡
建筑面积:11.8万㎡
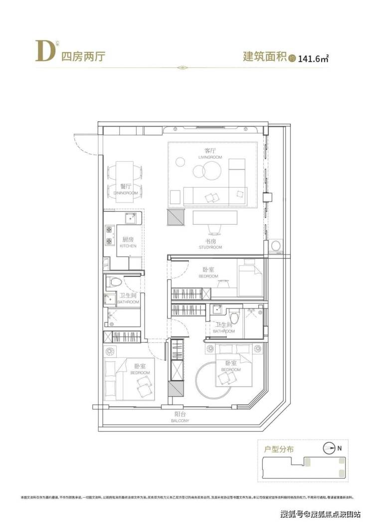
建筑面积:约42-146㎡
总户数:300户
层高:3.3-3.4米
楼层:2-5层
梯户比:5梯
使用率:约70%
均价:6.5万/㎡
交房标准:精装
交房时间:2024年底
停车位:460个
管理费:8.8元
物业公司:宁骏物业(上市公司)国际金钥匙服务体系
项目地址:深圳·南山中心·中山公园旁(地铁12号线中山公园站出口)
大师钜作
四大国际顶级设计大师团队,Kelly Hoppen、小林政彦、香港DLN刘镜钊、拜拉维提斯携手,以百年公园为设计源点,诠释人与自然和谐美篇,荣获GBE年度地产设计大奖 “铂金奖”。
园区环境

人文地标:
以1700年古城文化,赋予臻林·悦湾汇独特人文底蕴。南头古城焕新,将文化、创意、艺术源头引入,孕育区域蝶变的力量。
温德姆总裁公馆
臻林·悦湾汇为最大限度提高客户入住体验,因此引进温德姆酒店集团,作为全球大规模、多元化的酒店公司,温德姆旗下有 22 个品牌 9000 多家酒店,遍及 80 多个国家/地区。我们提供丰富多样的酒店产品和服务,以舒适的住宿环境和现代化的设施,满足每一位客户的需求。
城市天际
产品设计融入城市景观及公园景观,打造270°宽景观面。远眺前海灯火辉煌、近揽中山公园至美画卷。
湾区前沿
择址深圳最优质商圈核心:最前沿+最宜居人居,高阶人士。
五大总部基地环绕,前海深港合作区、高新科技园、后海、深圳湾及留仙洞总部群黄金原点,承接全市大量高净值人群的居住需求。
周边介绍
龙城大道、盐龙大道、外环高速,占据城市交通主动脉,出门即上盐龙大道快速路,0红灯接驳水官、机荷等高速,迅达罗湖、福田、南山中心区。同时,通过外环高速,从项目一小时内即可到达宝安机场。
教育:
项目配建12班制公立幼儿园(在建),周边百年院校龙西小学、华中师范大学附属龙园学校。
商业:
项目自带底商和菜市场,直线距离2.5km可达万科广场、万科里、世贸百货、万达广场(在建)等大型商业。
交通:
16号线盛平站距项目直线距离约1km。
开车就更方便了,项目1分钟可上盐龙大道、可快速转沈海、水官、南坪高快速路。

免责声明:
本文章文字、数据和图片皆来源网络,如有侵权请告知,数据图片仅供参考,不作为要约或承诺。相关宣传内容不排除因政府相关规划、规定等原因而发生变化。版权归原作者所有!!如有侵权,请联系我们,我们将第一时间处理!
过去一年,深圳经济在高位上稳定增长,展现出强劲的发展韧性。
2023年深圳经济总量达3.46万亿元,同比增长6.0%,这意味着2023年深圳生产总值净增2200多亿元,相当于一座中等规模内陆城市全年经济总量,占广东省生产总值净增量比重超过30%。
这组量质齐升的经济数据,是深圳高质量发展的缩影。在深圳市南山区,“空中的士”“无人驾驶”“无人配送”交相演绎,“水下大疆”畅游蓝海,全磁悬浮人工心脏、5T人体核磁共振成像系统突破“无人区”;而远在西班牙巴塞罗那举行的2024年世界移动通信大会上,华为、荣耀、中兴等深圳企业秀出最新AI技术、创新产品以及应用场景和解决方案,成为耀眼的“深圳元素”。
稳中求进
实现更有分量的发展
2月16日,随着OpenAI发布文生视频大模型Sora,人工智能的议题引发热议。为了抓住这一战略机遇,继年初南山区两会期间举行人工智能产业专题研讨会之后,南山区又在3月1日组织了更大范围的研讨会。
研讨会上,专家、代表在肯定南山区人工智能产业蓬勃发展的同时,也不回避产业发展遇到的困难和挑战。但发展速度要加快、力度要加大,齐心合力推动南山区人工智能产业高质量发展,成为政企共同呼声。
据介绍,南山区人工智能产业具有产业链完整、侧重应用层、科研能力突出三大特点。不仅在深圳湾科技生态园、金地威新软件园、南山智园3个省级人工智能产业园区,聚集了人工智能专利企业近2000家,人工智能核心企业超1100家,更是涌现出了一批像腾讯、中兴通讯等具有国际竞争力的龙头企业,像优必选、奥比中光等行业独角兽企业,以及大象声科、兔展智能等新兴企业。
就在研讨会召开的几天前,南山本土企业优必选也用一段视频给业界带来惊喜。视频中优必选工业版人形机器人WalkerS,在新能源汽车企业蔚来的生产基地“打工”,并展示出精巧的身体控制能力。
据优必选方面透露,WalkerS在新能源车厂的“实训”任务包括:移动产线启停自适应行走、鲁棒里程计与行走规划、感知自主操作与系统数据通信与任务调度等。
从一域到全局,一个个“新”字背后,蕴含的不仅是南山区,更是深圳高位突围的决心。2024年南山区的新兴产业政策包“含金量”十足。据南山区两会政府工作报告指出,南山将出台新能源、低空经济、数字经济、人工智能4个专项政策,力争推动超100家优质企业落地,投资规模超1000亿元。
锚定先进制造
实现更有质量的发展
近年来,深圳持续“补链、强链、延链”,全力构建现代化产业体系。其中深圳明确的20个战略性新兴产业集群,有14个重点布局在南山。
基于此,为进一步落实“总部研发+高端制造”产业发展战略,聚焦“14+7”战略性新兴产业集群及未来产业布局,南山区设立了“1+4+N”的政策框架体系,并形成《南山区促进产业高质量发展专项资金管理办法》等产业扶持政策。
以低空经济为例。南山区的无人机产业,整机企业、零部件企业、配套服务企业齐全,覆盖飞控系统(芯片)、电池、电机等十大产业链环节。
2022年南山区无人机产业产值超550亿元,占全国50%以上。区内聚集无人机产业链企业超160家,消费级无人机占全球市场份额七成以上,工业级无人机占全球市场份额超五成。
南山区在低空经济领域还拥有市级以上创新载体十余家,南方科技大学、深圳大学等深圳12家与无人机产业直接相关的高校和科研机构,全部坐落于此。
为了破解产业空间不足难题,南山区还围绕“工业上楼”这一产业空间创新举措下足了力气。
“工业上楼”,指在高层大厦中开展企业生产、办公、研发、设计等的新型工业楼宇模式,具备相近行业高通用性、高集约性特点,将传统扁平式厂房汇聚到高楼层的垂直化空间形态,也被称为“摩天工厂”“空中厂房”。
过去,工业企业上楼意愿不强,原因有三:一是普通厂房高楼层的层高与承重难以满足生产需求;二是重型设备不易上楼;三是传统货梯运输效率低、管理无序,影响企业生产。为此,南山区各工业上楼项目通过多种建造模式,试图寻求上楼最优解。
2023年6月,深圳重点推出的高标准建设、高效能企业集聚的“工业上楼”示范项目——南山智造(红花岭基地)项目6号楼顺利封顶。项目采用“折叠空间、多维产城”概念,通过环形坡道+高架道路模式,把货运交通引入第二层、第五层及第九层平台,将高效解决“工业上楼”中的“设备不易上楼”“高层厂房货运效率低”等难点问题。
创新源源不断
实现更有活力的发展
企业兴则经济兴。
2023年南山区新入库“四上”企业1368家,在库企业超1万家。新增国家高新技术企业471家,总量突破5000家。新增国家级专精特新“小巨人”企业93家,总数达233家,占全市三成以上。累计培育国家级制造业单项冠军25个,全市第一。在全国工商联发布的2023中国民营企业500强榜单上,南山区共有12家企业上榜,其中2家企业进入前100名。
南山区相关负责人总结了南山区上市公司群体的三“高”特点:民营企业占比高,占比达86%,成为上市企业的中坚力量;科技创新含量高,超过70%为科技创新型企业;企业发展质量高,约75%的企业集中于新一代信息技术产业、高端装备制造产业、生物产业等战略性新兴产业,其中,约53%的企业属于新一代信息技术产业。
创新创业的基因早已根植于这片热土。2023年8月,由深圳核心医疗科技股份有限公司自主研发的直径34毫米、重量90克,全球最小、最轻的全磁悬浮人工心脏——Corheart®6植入式左心室辅助系统正式发布,实现了国产人工心脏小型化。
激活“一江春水”的“动力之源”从何而来?据介绍,西丽湖国际科教城和西丽高铁新城是南山区“十四五”乃至未来一个时期的“创新引擎”。其中,截至2023年12月,西丽湖国际科教城更是汇聚了深圳近半数高校和70%以上全职院士,市级以上各类创新载体620家……
2023年11月15日,西丽湖论坛在深圳开幕,并发布了《西丽湖国际科教城空间规划纲要》,纲要将西丽湖国际科教城的发展定位为全球顶尖科技创新高地、大湾区高水平人才集聚区。
在多位科技界人士看来,随着更多创新要素的不断碰撞,科技创新带动下的新质生产力,将有力支撑起南山区,迈向具有全球重要影响力的产业科技创新中心。