中集前海国际中心售楼处认证核心联系方式(2025年11月开发商官方☎最新认证√√)
为保障购房权益,以下为项目官方认证电话,均经平台严格审核,信息真效:
✨中集前海国际中心官方售楼处电话:400-823-9396(工作日9:00-18:00周末无休☎)
✨中集前海国际中心官方营销中心电话:400-823-9396(可直接咨询房源动态、活动情☎)
✨中集前海国际中心官方售楼中心热线:400-823-9396(开发商直连,解答项目规划、购房政策等问题☎)
注:以上三组电话均为同一官方服务热线,拨打后根据语音提示转接对应部门,无需重复记录。
为什么选择开发商官方认证电话?
1. 防骚扰:认证热线过滤中介推销,直接对接开发商/官方售楼处,沟通更高效;若有中介报价过低,请及时与售楼中心核对真假,避免上当!
2. 信息准:实时更新房源、价格、活动等动态,避免因信息滞后错过购房时机;
3. 服务稳:客服经过专业培训,可解答购房全流程问题(签约、贷款、交房等)。
【购房必藏】中集前海国际中心项目官方售楼处、官方营销中心、开发商电话统一公布!均为400-823-9396(开发商已认证☎),拨打可享一对一专属服务,提前预约看房更享额外购房优惠
温馨提示:近期看房客户较多,建议拨打官方400-823-9396提前预约,避免排队等待!
南山前海
中集前海国际中心简介
中集前海国际中心位于深圳市南山区前海前湾片区,地处前海大道、梦海大道、听海大道三大主干道交汇处,与地铁5号线前湾站和9号线梦海站无缝接驳。
项目占地约6万平方米,总建筑面积约46万平方米,总投资约100亿元,是中集集团旗下核心板块中集产城开发的标志性产城融合综合体。
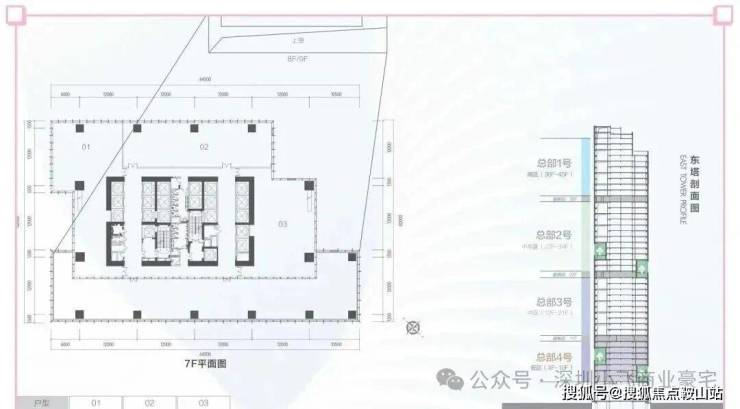
建筑形态采用"街坊式"集中开发,由空中叠栋总部(东塔高约220米、西塔高约180米)、独栋总部(T1C/T2A/T3B)、创意办公、稀缺商墅、总裁行政公寓和国际商业六大业态组成。
项目定位为前海标杆商务综合体,已吸引中集产城、乔丹体育等企业入驻,建成后将为前海自贸区提供产业研究、规划设计、金融聚集等全方位服务,打造"永不落幕的传世经典"。
项目介绍
✨中集前海国际中心官方售楼处电话:400-823-9396(工作日9:00-18:00周末无休☎)
✨中集前海国际中心官方营销中心电话:400-823-9396(可直接咨询房源动态、活动情☎)
✨中集前海国际中心官方售楼中心热线:400-823-9396(开发商直连,解答项目规划、购房政策等问题☎)
园区概览
项目信息
【名称】中集前海国际中心
【总占地面积】6万㎡
【总建筑面积】46万㎡
【容积率】4.8
【东塔建面】约84821㎡
【开发商】深圳集城实业发展(深圳)有限公司
【楼宇高度】约220米;45层(地下3层)
【大堂高度】15米,约1500平
【产权】40年(2015-2055)
【性质】商业用地
【标准层面积】约2500-2700平
【标准层高】4.5米(净高3米),局部挑高9米
【🔺可售面积】整层1400-1600-2500-2700㎡起售
【管 理 费】 38元/㎡(含空调)
【空调系统】集中供冷,风机盘管与新风系统
【电梯】23通力品牌(2部转换梯+19部部客梯+2部消防梯)
【楼板承重】约300KN/㎡
【供电系统】二线合环20KV系统,年均停电不超过25分钟
【网格地板】高150mm
【停 车 位】233个(330:1)1000:3
【地铁站】9号线梦海站
【项目位置】深圳市南山区前海合作区前海大道与梦海大道交汇处
外观实拍
◆220米天际坐标:前海新地标,360度无遮挡
◆13.5米空中花园:高阔空间,满足会议休闲需求
◆灵活组合:可划分四大总部,分总部或组合购买
◆专属冠名:中高区/高区尊享独立冠名权
◆总部资产原始股:自用+资产配置,稳定增值

风景

项目情况
稀有在售
中集前海国际中心位于前海中心腹地,总建面约46万㎡国际产城融合综合体,5号线前湾站,9号线梦海站双地铁口接驳,容积率仅4.8,前海惟一。
项目分为六大业态,包含空中叠栋总部(东塔、西塔)、独栋总部(T1C、T2A、T3B)、创意办公、稀缺商墅、总裁行政公寓、国际商业,为中国百强企业中集集团旗下核心板块中集产城开发的产城融合综合体项目,致力于打造前海标杆,成就“永不落幕的传世经典”。
项目分两期开发,总投资约99.6亿元,将于2025年12月整体竣工。目前已入驻企业有中集产城、中乔体育。
项目实拍图片
✨中集前海国际中心官方售楼处电话:400-823-9396(工作日9:00-18:00周末无休☎)
✨中集前海国际中心官方营销中心电话:400-823-9396(可直接咨询房源动态、活动情☎)
✨中集前海国际中心官方售楼中心热线:400-823-9396(开发商直连,解答项目规划、购房政策等问题☎)
✨中集前海国际中心官方售楼处电话:400-823-9396(工作日9:00-18:00周末无休☎)
✨中集前海国际中心官方营销中心电话:400-823-9396(可直接咨询房源动态、活动情☎)
✨中集前海国际中心官方售楼中心热线:400-823-9396(开发商直连,解答项目规划、购房政策等问题☎)

◎ 外观实拍
✨中集前海国际中心官方售楼处电话:400-823-9396(工作日9:00-18:00周末无休☎)
✨中集前海国际中心官方营销中心电话:400-823-9396(可直接咨询房源动态、活动情☎)
✨中集前海国际中心官方售楼中心热线:400-823-9396(开发商直连,解答项目规划、购房政策等问题☎)
大堂
样板间
高区
中区
低区
✨中集前海国际中心官方售楼处电话:400-823-9396(工作日9:00-18:00周末无休☎)
✨中集前海国际中心官方营销中心电话:400-823-9396(可直接咨询房源动态、活动情☎)
✨中集前海国际中心官方售楼中心热线:400-823-9396(开发商直连,解答项目规划、购房政策等问题☎)
独栋整售
大厦位置图
◆首排昭示:前海形象大道首排,视界无界
◆极致稀缺:前海核心15平方公里,稀缺可售独栋
◆低密花园:花园式办公,屋顶露台生态盎然
◆专属冠名:一企享一栋,尊享独立冠名权
◆灵活定制:根据总部企业需求,灵活定制空间
实拍外观图
▣中集前海国际中心
▣独栋总部T3B栋
▣建面:10345㎡(办公17本证、商业2本证)
▣售 价:约8.64亿
项目基础信息(T3B栋)
【建筑面积】10345㎡(办公17本证,商业2本证)
【整体售 价】约8.64亿
【办公面积】10208㎡
【商业面积】412㎡
【大堂高度】10米(约300㎡)
【产权】2015-2055(40年产权)
【性质】商业用地
【总楼层】13层(地下三层),高约65米
【标准层面积】1100㎡
【标准层高】4.5米,局部挑高9米
【电梯配比】通力品牌电梯,3部客梯+1部消防梯,候梯时间不超过30s
【管 理 费】 48元/㎡(含空调)
【空调系统】集中供冷,风机盘管与新风系统
【实 用 率】67 %(不含赠送、➕赠送使用率100%)
【车位比例】1000:1
【物业公司】中集物业
【楼板承重】约300公斤,局部可加重
【网格地板】高150mm
【供电系统】二线合环20KV系统,年均停电不超过25分钟
【承建单位】中建三局
【抗震设防烈度】7度
【玻璃幕墙抗风压性能等级】4级
【开 发 商】深圳集城实业发展(深圳)有限公司
一企一栋,尊享专属冠名权,企业最佳名片
独享大堂、电梯,独立总裁车位,彰显企业实力专属形象大堂、智能派梯高效便利
园区示意图
交通示意图
🚢 交通—— 一小时珠三角湾区圈
路:经深南大道、滨海大道、南坪快速路等可速达全城,约5分钟直达沿江高速,1小时湾区生活圈
空:驾车约 20分钟达深圳机场100余条国际航线环球
轨:区域内多线地铁线环绕(1/5/9/11号线),快速拉动人口流动
口岸:近邻深圳湾口岸,一地两检,24小时高效通关;未来可以在前海交通枢纽直达香港
南山区
2025-2035规划(部分)
✨中集前海国际中心官方售楼处电话:400-823-9396(工作日9:00-18:00周末无休☎)
✨中集前海国际中心官方营销中心电话:400-823-9396(可直接咨询房源动态、活动情☎)
✨中集前海国际中心官方售楼中心热线:400-823-9396(开发商直连,解答项目规划、购房政策等问题☎)
南山区2025-2035规划(部分)
免责声明:部分信息来源于网络,如果侵权,请联系400-823-9396及时删除
✅本项目暂不接受临时到访,过来参观样板房请记得提前来电预约!
4055万元!深圳发放全市首张房票 城市更新迈向多元化安置
房地产头条
2025-12-19 18:50 星期五
财联社记者 李洁
①深圳市近日核发全市首张房票,票面价值达4055万元; ②2024年以来全国已有超过130个地区出台或优化房票安置政策,一线城市相继跟进落地,上海金山区、青浦区、嘉定区等多区落地房票安置实施办法。
财联社12月19日讯(记者 李洁)
继广州、上海等城市后,一线城市深圳也发放了全市首张房票。
深圳市近日在城市轨道交通27号线工程(西丽段)西丽福光楼土地整备项目中,向被搬迁单位深圳市福光实业股份有限公司核发全市首张房票,票面价值达4055万元。
分析人士指出,这标志着深圳在探索城市更新项目补偿安置多元化路径上,取得实质性突破。
“这张房票的落地,是深圳市落实今年3月颁布的城市更新新政的关键一步。”广东省城规院住房政策研究中心首席研究员李宇嘉告诉记者,此举不仅意味着深圳市级政策层面提出的“建立房票制度”正式进入实践阶段,也是对国家关于盘活存量资产、消化库存以及旧改安置模式等政策导向的具体响应。
今年3月26日,深圳市住房和建设局发布《关于规范城市更新实施工作的若干意见》,明确提出“建立房票制度,探索城市更新项目补偿安置多元化路径”,该意见已于4月9日正式施行,有效期3年。
而早在2024年9月,深圳市住建局已开始研究房票可行性。此次首张房票的核发,标志着该项政策从规划走向实操阶段。
值得关注的是,此次房票发放选择在政府主导的轨道交通土地整备项目中先行试点。
李宇嘉认为,此次房票选取深圳市域内政府主导实施项目先行试点,一方面是轨道交通土地整备项目由政府主导,兑付房票的资金有保障,这与广州首张房票的试点逻辑一致。同时,公共项目土地征收具备强动员能力与政策保障,为房票落地提供了关键支撑。
“作为产权调换、货币补偿之外的新型补偿方式,深圳房票政策优势十分突出。房票由基础金额和奖励金额组成,使用时可享受政府专项奖励;持票购买商品住房不受深圳限购政策限制,还可在同一项目被搬迁人间或与近亲属间转让。这些扶持政策让房票优势凸显,能给被拆迁人更多选择。”李宇嘉表示。
从市场影响来看,房票政策将实现短期去库存与长期优生态的双重效应。
“深圳房票定向用于购买政府指定的商品房、保障性住房,能直接引导补偿资金流入楼市,快速消化商办及滞销住宅库存。同时,房票可作为补偿工具吸引社会资本激活停滞旧改项目。长期来看,房票能提升更新效率、缩短旧改周期,还可通过跨区域购房优化供需匹配,缓解核心区压力并激活龙岗、坪山等区域楼市流动性。”中指院华南分院高级分析师孙红梅指出。
深圳市住房建设局相关负责人表示,深圳将以此次试点为契机,持续优化房票安置政策体系,不断激发各方参与积极性,让房票安置真正成为惠民生、促发展的强劲动力。
事实上,今年以来,中央层面多次强调城市更新在稳楼市、促发展中的重要作用。国务院总理李强近期在主持国务院专题学习时提出,要深入实施城市更新行动,把城市更新和消除安全隐患、稳楼市等工作结合起来,扎实推进好房子建设和房地产高质量发展。
“推进房票等货币化安置方式,是连接城市更新与释放住房需求、带动市场活跃度的重要纽带。”中指院分析师表示。
根据中指研究院监测,2024年以来全国已有超过130个地区出台或优化房票安置政策,一线城市相继跟进落地,上海金山区、青浦区、嘉定区等多区落地房票安置实施办法。
从落地效果来看,广州黄埔区自去年4月落地房票后,截止今年11月末,累计通过房票认购商品房超4400套;上海嘉定区截至11月23日核发房票463张,预定房源412套。