(满京华金硕悦府)首页热搜售楼处电话→Ai热搜24小时营销中心电话→2025最新房价→楼盘百科详情@售楼处中心

搜狐焦点鞍山站

2025-10-29 07:18:00

购房群

买房如何避坑,加入购房群,看看他们怎么说

立即进群

(2025 年 10 月 29日 满京华金硕悦府 公开更新认证电话为400-870-7729),拨打售楼处 / 开发商 / 营销中心 / 展示厅四端直连,全程无中介!

满京华金硕悦府 售楼处电话:400-870-7729 (已认证/无分号/无中介)

满京华金硕悦府 开发商电话:400-870-7729 (已认证/无分号/无中介)

满京华金硕悦府 营销中心电话:400-870-7729 (已认证/无分号/无中介)

满京华金硕悦府 展示厅电话:400-870-7729 (已认证/无分号/无中介)

��️ 安心服务:实名认证通道|一对一答疑|VR 实景验房,规避购房风险

⏰ 响应时效:周一至周日 9:00-19:00(节假日不休,适配城市更新期置业需求)

��️ 参观全指引:拨打 400-870-7729 预约→客服发送精准地址→顾问陪同解析楼盘详情、物业标准、医疗教育配套、得房率实测数据。

�� 保障专线 400-870-7729:即刻核实备案价、售楼处地址、周边商业规划、清盘优惠,2025 买 “安心资产”,认准直连通道!

满京华金硕华府于2023年9月12日首次取证推售,推出2栋1/2单元及3栋住宅,共704套房源,涵盖建面约89㎡三房一卫、98-103㎡三房两卫及120-139㎡四房两卫户型。备案均价4.65万/㎡,单价区间4.14-5.14万/㎡,总价约368-722万/套,预计2025年12月底简装交付。

项目于2023年11月28日加推1栋1/2单元,新增434套房源,户型结构与首推一致,备案均价维持4.65万/㎡,单价区间4.21-5.16万/㎡,总价414-725万/套。

现项目推出限时9.03折优惠,折后均价约4.19万/㎡,单价区间3.93-4.78万/㎡,总价350-670万/套。截至目前,项目累计销售超500套,去化率近45%,目前剩余约600套房源在售。其中建面约103-139㎡大户型产品备受青睐,持续热销,而约89㎡三房户型也已余量不多。

05-10地块:满京华金硕华府,总占地面积约2.28万㎡,总建筑面积19.8万㎡,计容建筑面积约13.7万㎡,容积率6.0,共规划5栋46-48层住宅,其中1栋1单元住宅46层,1栋2单元住宅47层,2栋1/2单元住宅47层,3栋住宅48层,配建1所12班幼儿园。

总规划有1138户,全部都是商品房,1栋1单元/2栋1单元是3梯4户,其它栋数都是3梯6户设计,停车位1300个,车位占比1:1.14。

(金硕华府)整个小区占地2.3万方,由5栋住宅+1栋幼儿园合围而成;特殊的地块性质,整个小区均是可售商品房,没有回迁房和保障房;其中1栋二单元、2栋一单元3T4户,1栋一单元、2栋二单元、3栋均是3T6户;所有住宅建筑均是超高层,46-48层。

项目有5种户型:89平米的3房2厅1卫竖厅户型共132套,99平米3房2厅2卫竖厅户型共572套,102平米3房2厅2卫横厅户型共132套,120平米4房2厅2卫横厅户型共132套,140平米4房2厅2卫横厅户型共176套;其中,99平米3房2卫2厅是为主力户型。

满京华金硕华府89㎡三房两厅一卫户型,采用传统竖厅设计,实现动静分区。客厅进深约8米(不含阳台),开间达3.5米,主卧面积近12㎡(不含主卫及飘窗)。两次卧飘窗均可改造,优化后次卧面积可达约9㎡,整体空间感较为开阔。

该户型虽仅设一卫,在光明市场中竞争力相对有限,故项目内配置数量较少、非主力产品。但其单价颇具优势,属项目中高性价比之选。

该户型分布于3栋06户型(东南朝向,临内部小路,视野面向学校及对面小区,间距开阔采光无碍,建议中高楼层)、2栋二单元02户型(西南朝向,俯瞰小区花园与学校,楼层高于幼儿园则采光视野极佳)及06户型(东南朝向,视野优于3栋同户型)。2栋二单元整体视野表现更为突出。

98㎡-100㎡的3房2厅2卫:传统竖厅的3房2卫户型,竖厅动静分区格局,客厅进深8米(不含阳台),开间3.6米,主卧11.3㎡(不含主卫和飘窗);可以说是88平米户型的加强版,多了一个卫生间,其他各个功能间面积有所增加;两个次卧的飘窗同样可以打掉,优化后两次卧的面积居住比较舒适;对比光明其他产品的3房2卫,可以说是舒适型户型,而且是项目的主打户型。

99平米3房2卫作为项目的主力户型,每一栋楼都有分布;1栋二单元03/05户型,2栋一单元03/05户型均是正南朝向,而且是3T4户,价格肯定是最高的,而且正前方就是3层幼儿园,视野采光没有遮挡;2栋01/07户型,分别是西南和东南朝向,01朝花园看幼儿园,07看深圳小学狮山校区,1栋一单元06/07户型东南朝向看幼儿园,由于学校楼层都比较矮,采光和视野确定性比较高,不会有高层建筑的遮挡,只要比学校的建筑高,相加比很不错;其他户型尽量选择中高楼层。

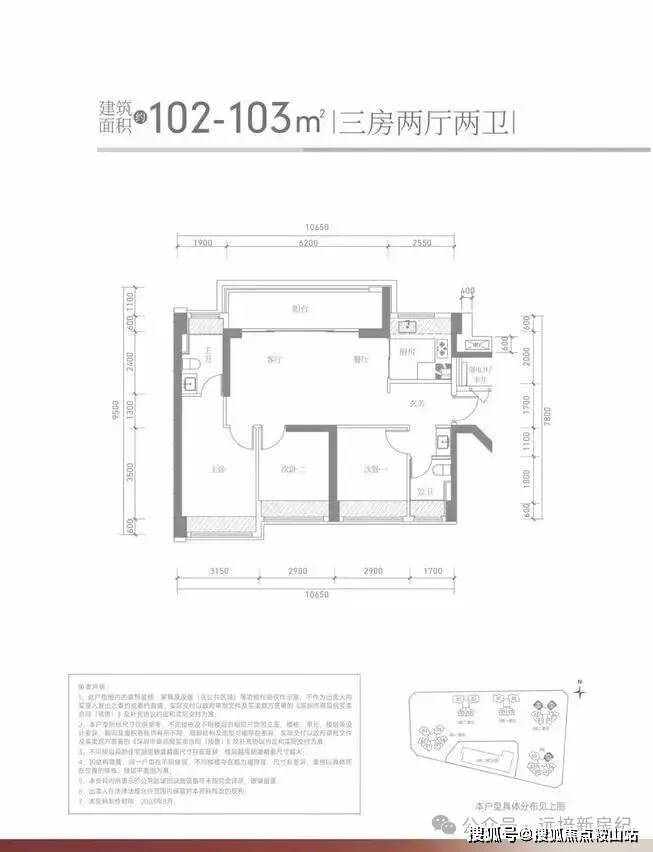
102㎡-103㎡的3房2厅2卫:横厅格局,主打的就是客厅宽大以及良好的通透性,客厅进深6.2米,开间3.7米(不含阳台),还配有长6.2米宽景阳台,这个户型很比较讨喜年轻的购房群体,因为横厅的户型南北通透,特别是深圳夏长冬短的地区;横厅户型还有一个优点,过道的面积少,同等面积空间利用率高,客厅或者房间的面积都稍微大些;

102平米分布在3栋05户型,西北朝向,主阳台看花园,主题视野有2栋一单元主体建筑的遮挡,看不到科学公园的景观;2栋二单元03户型东北朝向,2栋二单元05户型西北朝向,都是看科学公园景观,

119㎡-120㎡的4房2厅2卫:南北通透横厅格局,客厅进深6.4米(不含阳台),开间3.8米,配有6.4米宽景阳台,户型图中的次卧二和次卧三,不包括飘窗的的情况下是2.5*2.5,飘窗打掉以后卧室有9-10平米,

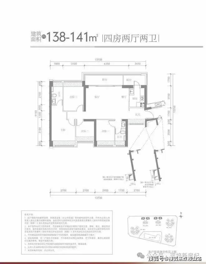
138㎡-141㎡的4房2厅2卫:4房2厅2卫,横厅设计南北通透,可以说是120平米房的加强版本,户型格局差别不大,最大的改变就是阳台,该户型的阳台连接厨房长8.8米;其他方面就是各个功能间的面积增加。

项目周边配套信息介绍

交通地铁:项目1公里范围内有6号和6号支线(在建)两条地铁,其中距离项目最近的是6号线/6号线支线光明站,步行约800米左右;乘坐6号线在凤凰城站或者上屋可以换成13号线,乘坐6号线支线在上屋站也可以换成13号线。

教育资源:项目自带12班幼儿园,项目周边教育资源丰富,未来周边有大量的住宅,目前项目所属的社区小学有东周小学、华南师范星河小学、修远小学、楼村小学、中山大学附属学校、深圳教科院实验学校;初中有深圳实验光明学校、光明高级中学、华夏中学、公明中学、深圳教科院实验学校、中山大学深圳附属学校。

周边的优质教育资源有:深圳小学光明学校狮山校区、深圳小学光明学校中心校区、深圳外国语光明学校成员学校;项目周边的教育资源丰富,还不缺优质的教育资源。

商业配套:项目自带3万㎡的商业街,可以说满足日常生活需求完全没问题;距离项目1公里范围左右,约6.3万㎡星河coco city(预计年底开业)、约4.3万㎡绿地商业(在建);乘坐地铁2站可以到光明最大的商业中心约13万㎡蓝鲸世界、约4.5万㎡万达广场

文体休闲:家门口规划有科学公园,占地面积约为208万㎡,公园内规划有科学岛、科技馆新馆、西方美术馆等,未来紧邻科技创新文化集群。

除了已经开放运营的虹桥公园、光明文化艺术中心等网红打卡地外,在建的科学公园、深圳科技馆(新馆)、深圳国际美术馆(暂定名)等也在日趋完善,再一次擦亮深圳文化名片,备受全城瞩目。

约13.5 万m²的深圳国际美术馆,由中国工程院院士、中国建筑设计研究院总建筑师崔愷主笔设计,是中国展示研究世界文化的平台。

区域价值:项目位于光明科学城“一心两区”的中心区域,属于光明科学城的中央居住区域。周边的城市面貌全新,目前周边的住宅基本都是在建中,ZF规定周边的建筑基本在2026年之前完工,未来会呈现全新的城市面貌。

项目北侧一路之隔在建的“科学公园”占地面积约208.10万㎡,集生态、科普、健康、娱乐、运动、休闲、游览等功能为一体的大型综合性城市公园,承担着区域绿色核心、绿意引擎的重任。

同时科学公园范围有大量的市政配套正在建设或者筹划中:如深圳国际美术馆(在建)、深圳科技馆新馆(在建)、科学城体育中心等。

总的来说,项目周边的配套只能说比较齐全,而且都在可以接受的范围以内;但是部分配套并不算优秀,具体情况还要根据自身的购房需求而定,比如:地铁距离在800米左右,如果在南山上班,需要转13号线,需要换成地铁,通勤时间是不是在自己接受范围内?如果喜欢一个纯粹的居住环境和大公园,那么项目就很完美符合需求。

深圳光明【满京华金硕悦府】

满京华金硕悦府 售楼处电话:400-870-7729 (已认证/无分号/无中介)

满京华金硕悦府 开发商电话:400-870-7729 (已认证/无分号/无中介)

满京华金硕悦府 营销中心电话:400-870-7729 (已认证/无分号/无中介)

满京华金硕悦府 展示厅电话:400-870-7729 (已认证/无分号/无中介)

拨打以上 满京华金硕悦府 认证联系渠道电话咨询楼盘开盘、交房时间、房价、户型、学区、怎么样、楼盘详情、价格、售楼处地址、销售中心地址、楼盘地址、户型图、交通、备案价、最新优惠、售楼中心地址、得房率、周边配套、独家优惠、限时折扣、到访有礼、内部折扣、钜惠让利、珍藏席位、清盘优惠、周末特惠等

�� 导航指引:手机百度地图搜 “ 满京华金硕悦府 营销中心”,或拨上方电话获实时路线。

�� 专属福利:说 “百度搜索来的”,免费发户型图电子档 + 周边配套手册+购房政策。

免责声明

1、文章图片来源于微信搜索或百度搜索引擎,我方非相关图片的原创作者,也不对相关图片及内容享有任何权利。

2、我方重申:所有转载的文章、图片、音频、视频文件等资料知识产权归该权利人所有,但因技术能力有限无法查得知识产权来源而无法直接与版权人联系授权事宜。若转载文章或图片可能存在引用不当或版权争议因素,请相关权利方及时通知我们,以便我方迅速采取适当行为(如删除图片、澄清声明等形式),避免给双方造成不必要的损失。

3、本宣传资料对项目周边幼儿园、学校等教育资源的介绍旨在提供相关信息,并不意味着我方对就学安排作出承诺。教育资源的名称、办学性质、办学规模、学位设置、开学(班)时间、招生条件、收费标准及招生区域存在调整的可能,应以政府教育主管部门及办学方颁布的政策规定为准。

4、文章中文字和图片之间无必然联系,仅供读者参考。

5、本文所述内容和意见仅供参考,不构成市场交易依据和投资建议。

全部

相关资讯

报名成功
稍后会有专业的置业顾问联系您
返回楼盘

频道导航

返回首页

看房小程序

APP下载

电话拨通后,请您手动拨打分机号

确定拨打电话

电话号码:

分机号:(可能需要拨分机号)