松茂御城(松茂御城售楼处)2025首页网站-松茂御城欢迎您-楼盘详情-备案价-容积率-户型图@销售中心

搜狐焦点鞍山站

2025-08-23 15:00:28

购房群

买房如何避坑,加入购房群,看看他们怎么说

立即进群

✨松茂御城✨✽✽✽✽

💎松茂御城售楼处电话☎:4009099980【售楼处认证】⭐⭐⭐⭐

⭐在售户型图⭐项目介绍⭐最新房源⭐周边配套详细解

⭐*开发商营销中心诚挚邀请,一键预约,尊享内部折扣!匠心独运的精品项目,恭候您的品鉴与选择!

✅为给您更好的看房体验请提前来电预约(给您预留现场销售和停车位)

✅注意:本项目不收任何费用,售楼中心〢欢迎来电咨询〢

松茂御城售楼处电话☎:400-909-9980【售楼处认证】⭐⭐⭐⭐

松茂御城营销中心电话☎:400-909-9980【营销中心认证】⭐⭐⭐⭐

松茂御城销售中心电话☎:400-909-9980【销售中心认证】⭐⭐⭐⭐

松茂御城二期。预计8月28日拿证,首推1栋B/G/H/E座,共约333套,面积81㎡-135㎡

松茂御城二期 准现楼发售】

近地铁·学府旁·低密品质大城

约81-135㎡N+1 全功能空间

项目基础数据

开发商:深圳市松茂房地产集团有限公司

总建面:约30万㎡

容积率:约4.55

绿化率:约40%

车位数:2222个

物业费:3.8元/㎡/月

物业公司:深圳市海天泰物业管理有限公司

项目地址:深圳市光明区·13号线月亮路站西侧

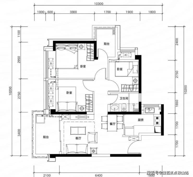
超高得房率与合理户型设计

松茂御城二期的最大亮点无疑是其高得房率和创新户型设计。

不同于许多同区域其他楼盘,松茂御城二期的户型设计紧贴市场需求,尤其在光明当前市场上,户型实用性和空间的利用度几乎无可匹敌。

81-82㎡三房两厅两卫户型,采用巧妙的布局设计,最大化空间的使用效率。

G05户型:约82㎡ 三房两厅两卫:

89㎡四房两厅两卫户型,能够满足多孩家庭的居住需求,实际使用面积可与常规100㎡以上户型媲美,充分满足了购房者对空间的高需求。

B02户型:约89㎡ 四房两厅两卫

这一设计优势使得松茂御城二期与同类楼盘相比更具吸引力。

以89㎡四房为例,其空间利用率更高,远超其他仅能实现三房的同面积楼盘,特别适合有多代同堂需求的家庭。

交通配套

距离在建的13号地铁月亮路站约400米,1站到凤凰城,3站到光明城站,计划在2025年底通车运营。

周边有光明大道、松白路、龙大高速等,自驾出行方便。

教育资源

项目自带9班幼儿园,周边有多所名校,教育资源丰富。

商业配套

自带4.6万㎡的社区商业,旁边润宏城规划了万象商业,稍远一点还有光明大仟里(约15万㎡)、蓝鲸世界(约10万㎡)、万达广场(约6万㎡)三大成熟商圈,购物方便。

休闲配套

周边生态景观优美,有明湖城市公园、鹅颈水湿地公园、东坑水湿地公园等,茅洲河水岸公园也在升级改造中。

✨松茂御城✨✽✽✽✽

松茂御城售楼处电话☎:400-909-9980【售楼处认证】⭐⭐⭐⭐

松茂御城营销中心电话☎:400-909-9980【营销中心认证】⭐⭐⭐⭐

松茂御城销售中心电话☎:400-909-9980【销售中心认证】⭐⭐⭐⭐

🔥可来电话预约销售顾问,专业一对一热情服务让您用专业眼光去购房!

免责声明1、内容部分来源网络,因编辑需要文字和图片之间亦无必然联系,仅供读者参考。2、此公众号所转载的所有文章、图片、音频视频文件等资料版权归版权所有人所有,因非原创文章及图片等内容无法一一和版权者联系,如原作者或编辑认为作品不宜上网供大家浏览,或不应无偿使用,请及时通知我们,以迅速采取适当措施,避免给双方造不必要的经济损失。3、本网页如无意中侵犯媒体或个人的知识产权,请来电告之,我们将立即予以修改或删除。

房产信息:

长实“以价换量”卖楼 上半年物业销售收入逾73亿港元

财联社8月15日讯(记者 王海春)长实集团(01113.HK)公布了2025年中期业绩。

财报显示,今年上半年,该公司收入约253.86亿港元,同比增长15.3%;受投资物业估值大幅缩减影响,股东应占净利润约63.02亿港元,同比减少26.2%。

与 2024年同期相比,长实集团2025年上半年物业销售收入,取得幅度不小的增长。

报告期内,长实集团物业销售收入约73.66亿港元,较2024年同期的46.35亿港元增长58.92%。其中,内地市场增幅明显,实现物业销售收入约38.27亿港元,同比增长117.32%

该公司介绍,今年上半年集团位于上海的御沁园第5B-2a期所有住宅单位,已于期内完成销售,北京逸翠园第2期的住宅单位销售仍在进行中。

一个值得注意的现象是,虽然上半年长实集团物业销售收入较去年同期有所增加,但其销售收益则出现减少。

“这主要因为在市场疲弱情况下,公司为促进各项目销售而设立多项折扣优惠,期内收益率因而较低。”长实集团表示,今年上半年,香港住宅物业市场仍充满挑战;年初香港下调物业印花税税率,银行物业按揭息率也有所降,不过市场气氛依然审慎。

在此背景下,长实于报告期内根据物业市场变化,折价推售旗下所开发住宅物业项目。

事实上,自2024年以来,长实便采取了降价策略,其频繁折价出售旗下多个项目的举动,也成为市场关注的焦点。

其中,2024年入市的香港黄竹坑Blue Coast项目,曾以2.19万港元/平方呎的价格销售,较周边二手房价格相当于打了7折。

此外,长实在北京的御翠园项目于今年五月推售新一批房源,项目高层项目均价降至7万元/平方米,本次销售价较备案最高价相当于打了7折。今年七月,位于东莞的海逸豪庭项目,以5折价格抛售房源;七月底,位于惠州的泷珀花园所推部分小户型房源,以66折的价格销售。

对于公司折价销售的举动,在长实集团2025中期业绩会议上,长实执行委员会及财务委员会委员兼企业业务发展部总经理马励志认为,由于整体供应量大,价格上涨动力仍然不足。

“发展商仍专注于清理库存,因而此时推出的房源,价格仍然较为优惠。”马励志称。

该公司表示,集团在香港的住宅项目启德花语海,将在今年下半年推出预售;另外,新加坡住宅发展项目Perfect Ten预计于下半年销售,Perfect Ten项目收益,将于2025年下半年合约销售完成之后确认入账。

当被问及对未来几年的盈利预期时,长实集团执行委员会委员兼会计部总经理文嘉强认为,“未来几年物业发展业务的盈利贡献,预计不会很大。”

项目储备方面,于报告期结算日,长实集团拥有可开发土地储备(包括合作发展项目之发展商权益,但不包括农地及已完成物业)约6700万平方呎,其中600万平方呎、5800万平方呎及300万平方呎分别位于香港、内地及海外。

“集团将继续奉行审慎策略,物色优质土地储备用作未来发展。”长实方面称。

全部

相关资讯

报名成功
稍后会有专业的置业顾问联系您
返回楼盘

频道导航

返回首页

看房小程序

APP下载

电话拨通后,请您手动拨打分机号

确定拨打电话

电话号码:

分机号:(可能需要拨分机号)