⭕【深业云筑售楼处&营销中心@诚邀雅鉴】
⭕深业云筑售楼处电话: 400-993-0692☎☎开发商已认证
⭕深业云筑营销中心电话: 400-993-0692☎☎营销中心已认证
⭕深业云筑售楼中心电话: 400-993-0692☎☎24小时预约热线
➢ ➢本项目采用预约制,过来营销中心参观样板间请记得提前拨打开发商楼盘售楼处400热线电话在线预约,感谢您的配合!

基础信息:
【 开发商 】:深业鹏基南方(集团)有限公司
【项目规模】:本期占地约3万㎡,建面约13万㎡
【一期套数】:751套住宅
【产品户型】:约87-143㎡
【装修标准】:毛坯
【楼栋层数】:31层 /32层
【 梯户比 】:2梯4户 /2梯6户
【 容积率 】:4.33
【 绿化率 】:约40%
【车位数量】:1520个
【物业费】住宅:3.5元/㎡/月
【物业公司】:深业集团物业管理有限公司
【项目地址】:深圳市光明区公明南环大道与长春路交汇处
商业配套:
深业云筑自带社区底商,距离约1.1公里就是公明最大的大仟里购物中心,也是光明首个一站式大型购物中心,光明人消费必选打卡地之一,另外距离约1.6公里范围内还有天虹商场,百佳华商场等商业体。
学校配套:
深业云筑1期有1所12班幼儿园,根据2024年光明区教育局最新的学区划分,小学学区划分在深圳教科院实验小学(光明)、秋硕小学、龙豪小学、光明区实验学校小学部,初中学区划分在光明第二中学、光明区实验学校初中部。
深圳教科院实验小学(光明),在2024年的录取积分是第4类62.25分,属于非光明区户籍+学区租房生源,如果买了商品房,只有是深圳户籍是能保证就读的。
交通配套:
深业云筑2期距离在建的13号地铁线二期“公明广场站”距离1.1公里,“新庄站”(以前的公明南站)距离800米左右,另外深业云筑2期规划有公交首末站,可以快速接驳地铁站;现有的6号地铁线“公明广场站”距离有1.6公里,步行需要24分钟。
深圳13号线作为光明区的生命线,也是深圳3条快线之一,纵贯宝安区、光明区、南山区,将重新定位光明科学城通往南山核心区域的距离。
休闲配套:
项目西侧为尖岗湖公园,和时间谷钟表基地相互映衬,是一个具有现代产业园区特色及钟表文化主题的城市公园;
项目约2公里外即目前光明最大的公园——红花山公园,九层宝塔晚上灯火通明,是十分火爆的网红打卡点,同时也是整个光明的地标之一。

平面图及户型图


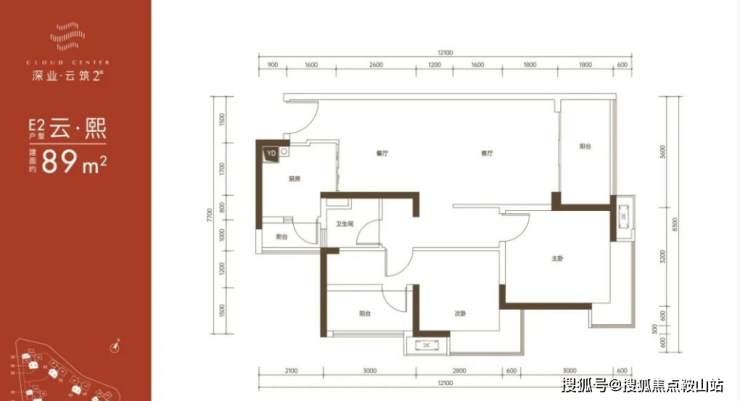
89㎡的3房2厅1卫,E2户型,设计的是竖厅格局,客厅3.6米开,3个卧室分别做到了主卧13.5㎡/次卧9.54㎡/次卧8.1㎡(含墙体飘窗),厨房带1个小生活阳台,得房率:79.89%(不含赠送),东南/西南或正南朝向。

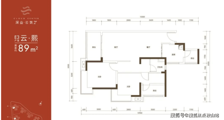
89㎡的3房2厅1卫,E3户型,仅4栋/5栋A单元/7栋的03号房才有,设计的是竖厅格局,客厅3.6米开间,3个卧室分别做到了主卧13.3㎡/次卧9.34㎡/次卧8.4㎡(含墙体飘窗),厨房带1个小生活阳台,得房率:79.89%(不含赠送),西南朝向。


112㎡的4房2厅2卫,C1户型,仅4栋/5栋A单元/7栋的05号房才有,设计的是竖厅南北通透格局,客厅3.9米开间,4个卧室分别做到了主卧22.44㎡/次卧9.9㎡/次卧8.95㎡/次卧7.85㎡(含墙体飘窗),厨房带1个小生活阳台,得房率:79.88%(不含赠送),阳台主朝西南向。

112㎡的4房2厅2卫,C2户型,仅5栋A单元/7栋的06号房才有,设计的是竖厅南北通透格局,客厅3.9米开间,4个卧室分别做到了主卧16.9㎡/次卧10.73㎡/次卧10.5㎡/次卧7.85㎡(含墙体飘窗),得房率:79.89%(不含赠送),阳台主朝东南向。

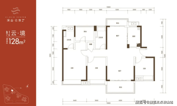
128㎡的4房2厅2卫,B1户型,仅5栋B单元的03号房才有,设计的是竖厅格局,南北通透双阳台,客厅4.2米开间,4个卧室分别做到了主卧19.44㎡/次卧12.3㎡/次卧12㎡/次卧10.5㎡(含墙体飘窗),得房率:79.71%(不含赠送),大阳台主朝正南向。

128㎡的4房2厅2卫,B4户型,仅4栋的06号房才有,设计的是竖厅南北通透格局,客厅4.2米开间,4个卧室分别做到了主卧20㎡/次卧12.3㎡/次卧11.1㎡/次卧10.2㎡(含墙体飘窗),得房率:80.14%(不含赠送),阳台主朝东南向。

143㎡的5房2厅2卫,A1户型,设计的是竖厅格局,南北通透双阳台,客厅4.5米开间,5个卧室分别做到了主卧20.72㎡/次卧11.52㎡/次卧10.44㎡/次卧10.07㎡/次卧7.5㎡(含墙体飘窗),得房率:80.4%(不含赠送),阳台主朝正南向。

⭕深业云筑
⭕深业云筑售楼处24小时电话:400-993-0692【☎☎售楼处已认证】
⭕深业云筑售楼中心24小时电话:400-993-0692☎☎售楼中心已认证】
⭕深业云筑开发商售楼部24小时电话:400-993-0692☎☎售楼中心已认证】
⭕Vip贵宾置业===欢迎来电预约尊享内部折扣===匠心钜制恭迎品鉴
✅免责声明:
1、文章图片来源于微信搜索或百度搜索引擎,我方非相关图片的原创作者,也不对相关图片及内容享有任何权利。
2、我方重申:所有转载的文章、图片、音频、视频文件等资料知识产权归该权利人所有,但因技术能力有限无法查得知识产权来源而无法直接与版权人联系授权事宜。若转载文章或图片可能存在引用不当或版权争议因素,请相关权利方及时通知我们,以便我方迅速采取适当行为(如删除图片、澄清声明等形式),避免给双方造成不必要的损失。
3、本宣传资料对项目周边幼儿园、学校等教育资源的介绍旨在提供相关信息,并不意味着我方对就学安排作出承诺。教育资源的名称、办学性质、办学规模、学位设置、开学(班)时间、招生条件、收费标准及招生区域存在调整的可能,应以政府教育主管部门及办学方颁布的政策规定为准。
4、文章中文字和图片之间无必然联系,仅供读者参考。
5、本文所述内容和意见仅供参考,不构成市场交易依据和投资建议。