最近好几个共产房都有动静,其中海淀的金隅尚林家园也在万众期待中迎来网申,项目户型、产权占比等信息被释放出来。海淀低总价新房的标签使得这个楼盘被很多朋友关注,焦点君今天就跟大家详细聊聊金隅尚林家园到底怎么样。
基本信息走一波
位置:海淀区西三旗建材城中路东侧
网申时间:2020年1月3日上午10点至1月18日上午10点,共计15天
价格:销售均价43600元/平(含全装修费用)
户型:64-89平1-3居,主力户型为80平方两居和89平三居
小区体量不大,只有315套房源,一共4栋住宅楼。产权比例方面,购房人产权占比为70%,北京市海淀区保障性住房发展有限公司(政府产权份额代持机构)持有30%份额。接下来给大家划重点,本项目的申购对象为海淀区户籍无房家庭,在海淀区工作的本市其他区户籍无房家庭和在海淀区工作的非本市户籍无房家庭。此外,还有一点值得注意,单身家庭申请购买的,不能选择三居室户型。有资格的家庭可于网申期间,在住建委官网进行网上申购。(微信搜索“goufang02“,添加购房置业小秘书入群,房产咨询,有问必答!)
价格对比
就在焦点君提笔写这篇文章的时候,北京市规划和自然资源委员会又挂出7宗住宅用地,其中仅有的1宗共产房地块就位于海淀安宁庄。由此,焦点君整理了一下海淀目前已知的共产房,来做个对比:

加上已经挂出的,海淀一共有4个共产房,价格在3万7~4万5之间,安宁庄地块的2个项目价格最贵,为44800元/平,本次网申的金隅尚林家园稍便宜一些,且周边有地铁,性价比还是可以的。以80平两居计算,总价在349万左右,共产房首套首付30%,那就是首付105万左右就能买一套海淀的两居新房,上车门槛并不高。
项目周边概况
金隅尚林家园位于海淀西三旗版块,直线距离地铁8号线西小口站约800米,附近还有多条公交线路供出行选择;如果自驾的话,可以走G6京藏高速、北五环路,交通十分便利。这个地段交通便利,配套也不会差,近点的商业有新都生活广场、龙旗购物中心,餐饮、超市、药店等生活所需一应俱全。此外,项目旁边不远还有东小口森林公园,是饭后和家人散步的好去处。 总的来看,项目的地段还是比较不错的,周边配套能够满足日常生活所需,生活起来很方便。(微信搜索“goufang02“,添加购房置业小秘书入群,房产咨询,有问必答!)
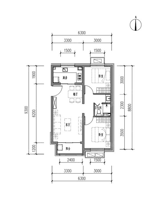
户型情况
项目一共9个户型,选择空间还是挺大的。由于篇幅原因,焦点君筛选了一个两居户型给大家分析下:
点评:79平南北通透两居设计,卫生间干湿分离,不过是暗卫。客厅外有封闭阳台,便于晾晒衣服和储存物品;餐厅紧挨着厨房,端菜端饭很方便。整体来看,这个户型浪费面积少,比较方正,且为南北通透设计,住起来 比较舒服的。
总结
最后来总结一下,金隅尚林家园地处海淀西三旗,不管是交通还是配套都可圈可点。如果你是纯刚需自住,可以踏踏实实放心买,毕竟海淀这个价格的新房不多了,有资格的朋友要抓住机会了。
(微信搜索“goufang02“,添加购房置业小秘书入群,房产咨询,有问必答!)
延伸阅读: