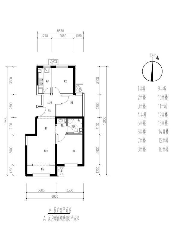
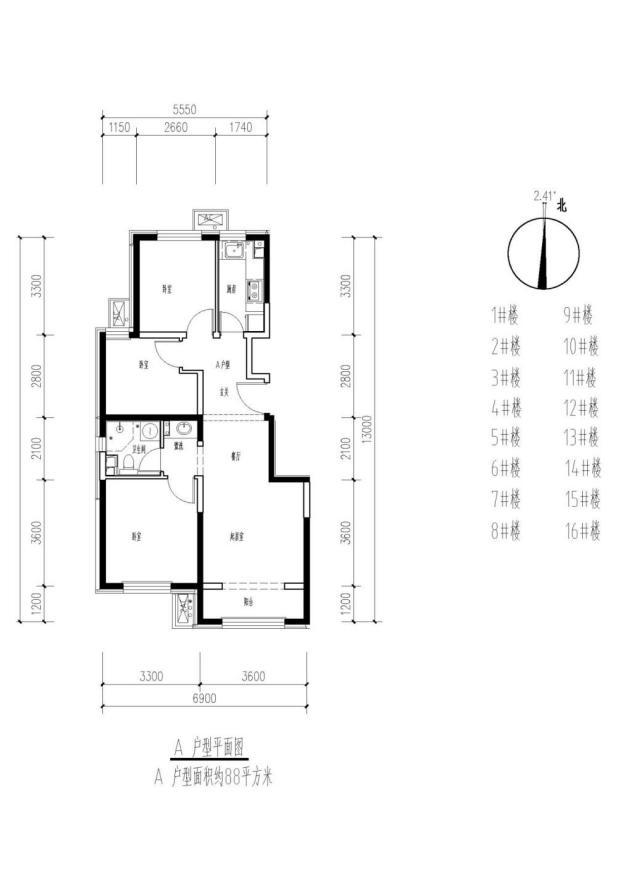
梧桐港嘉苑(剩余房源)项目总建筑面积约122191平米,其中共有产权住房地上建筑面积约67506平米,共16栋楼。项目共有产权住房总套数763套,为二次开通申购,截至2021年9月,剩余房源222套,其中建筑面积约78平方米的两居室3套,建筑面积约88平方米的三居219套。含全装修费用销售均价36000元/㎡(根据具体楼层、朝向在±5%的范围内调整销售价格)。
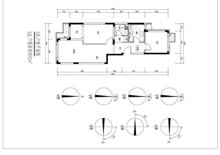
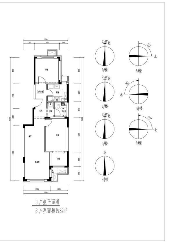
梧桐湾嘉苑(剩余房源)项目规划总建筑面积约133156平米,其中共有产权住房地上建筑面积约75279平米,共12栋楼。项目共有产权住房总套数866套,为三次开通申购,截至2021年9月,剩余房源123套,均为建筑面积约82平方米的两居室。含全装修费用销售均价36000元/㎡(根据具体楼层、朝向在±5%的范围内调整销售价格)。
两项目均由北京景盛诚泰置业有限公司开发建设,项目邻四方新区功能区和亦庄经济技术开发区,距离市中心约16公里,距北京副中心约11.5公里。
一河两园悦揽生态大境 滨水环境舒适宜居
周边的绿地资源丰富,环境优美,北侧邻富力又一城公园,东侧有红军公园,南侧更是与萧太后河马家湾湿地公园仅有一路之遥。
全龄教育资源环绕
邻芳草地国际学校富力校区,周边学校有豆各庄中心幼儿园、芳草地国际学校朝丰分校、北京市排名前列七一中学朝阳豆各庄分校。(具体入学情况需依据相关政策确定)。
繁华商圈,惬意生活
惠多港购物中心(已建成),预计2022年10月开业,位于梧桐港项目北侧,黄厂地铁站附件。是一座集购物中心、西欧风情小镇奥特莱斯、大型会员仓储超市和公寓为一体的商业综合体项目。梧桐湾北侧富力又一城社区临街底商,以及天达路华联超市、京客隆超市、永辉超市等生活超市,满足日常生活中购物、吃饭、娱乐的各类生活休闲需求。

效果图来源于网络
五环+地铁7号线 立体交通路网
梧桐湾嘉苑(剩余房源)项目距离东五环直线距离约1.3公里,地铁7号线黄厂站约0.9公里;梧桐港嘉苑(剩余房源)项目距离东五环直线距离约0.5公里,距离地铁7号线黄厂站约0.5公里。通过地铁可快速到达欢乐谷景区、大望路和国贸CBD商圈以及通州环球度假区等热点区域。同时项目周边也有457路、348路、411路等多条公交线路,为出行提供更多便利。多维交通路网,通行全城畅通无阻。
本宣传资料所涉及的户型信息仅供参考,最终以双方签订合同为准。
1、本资料为要约邀请,不视为要约,所涉面积均为建筑面积,所载文字以及相片、地图、户型图、示意图、标注图片等仅供参考用途,具体以实物政府主管部门批准文件及买卖双方签订的商品房买卖合同约定为准。
2、本页中对项目周边环境、交通及其他配套设施的介绍,旨在提供相关信息,不意味着本公司对此做出了承诺和保证,以上信息来源于网络,信息采集时间为2021年8月,相关内容如有变化恕不另行通知。
3、部分素材来源于网络,其著作权归原作者所有;如果原作者表明其身份要求本公司停止使用该素材的,请及时与本司联系,我们将进行删除。
4、价格有效期:2021年9月1日-2022年3月1日。