本期案例是正在筹建中的位于广州市天河区大观中路的窝趣轻社区,项目原先是广州市鑫源印刷有限公司,因为看好长租公寓行业,信任窝趣全链条运营能力,加盟了窝趣轻社区。项目总面积3281平方米,窝趣设计了202平方米的公区和106个房间,预计2020年4月开业。

(项目改造前外观)

(项目改造后效果图)

(项目改造进行中)
窝趣重点分享该项目公区的设计与改造。如今的白领公寓都配置了一定面积的公区,且公区的同质化是比较严重的,如果一味模仿别人的设计,不去探索设计原理因地制宜的变通,则仅实现了美观,实用性却不强。窝趣公寓公区的改造通过不断探索创新,追求利用有限的空间承载更多可能,创新才能促进行业发展。



(项目一层公区改造前)


(公区设计规划后的效果呈现)
窝趣大堂公区设计策略:
1. 满足刚需
窝趣认为大堂作为租客公共客厅,首先一定要满足日常生活、社交及娱乐需求。
区域规划很重要,有舍有得,有分有合,权衡收益实现坪效与舒适平衡。

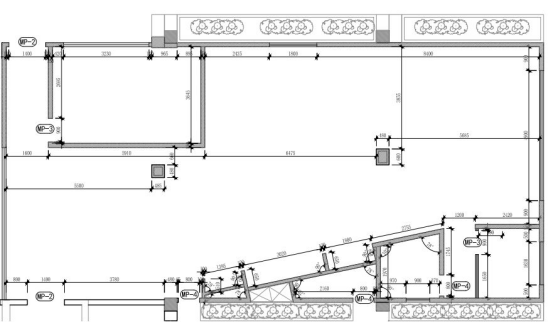
(项目原始一层平面图)
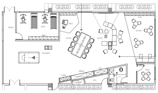
(窝趣大堂公区模块)

(根据原始平面进行分区域规划设计)

(项目公区平面设计图)
大桌、一组沙发、影视功能必不可少。大桌既能为窝友供学习、工作的空间,也能组织沙龙等活动。桌子可分可合,灵活变化。沙发是休闲生活的必搭品,如看电影、洽谈等。
2.空间灵活开阔
窝趣轻社区公区的整个共享区域尽量不要有视线遮挡,开阔敞亮带来更好的视觉感。将功能重叠性较高的区域或者相关性较高的区域尽量设计在一起,且考虑各空间的灵活变通。
大桌区与影视区都是高度共享区域,且在一些场景下如举办活动时可灵活组合使用,所以设计在相邻的一个大空间中;而神秘商店的销售主要靠人流量,且人们在活动交谈时需求量较大,所有应该与大桌区与影视区紧密相连。

(功能叠加才能提高坪效)

(大桌区、影视区、神秘商店效果图)
3.一半共享一半私享
白领公寓在发展的初期都强调社交、共享,而窝趣认为应更多关注公区精神层面的价值,消费者内心本质需求。窝趣提出“一半共享,一半私享”的概念,在共享区感受社交热度,在私享区回归自我本心。
窝趣轻社区公区的共享和私享一定要划分开“动”、“静”两个区域,私享区不能完全开敞,是一个可以让人安静的待着的角落,可以阅读、私聊或发呆,像自己家客厅。

(“动”、“静”两个区域尽可能减少互相直接的打扰。)

(私享区域效果图)
窝趣将私享区设计在靠窗的角落,远离娱乐区,更安静舒适。且用软隔断及材质做区域分区,强调私享的独立区域。
4. 无固定前台设计
将窝趣轻社区接待服务升级,取消原来1.0产品的固定前台,仅设置管家室。利用公区已有资源进行接待工作,从单纯的接待发展为休闲漫谈及导流。流动性强、节约人力及空间。租户在公区更自在。
5. 增值创收
窝趣尽可能的利用公寓公区的优势,创造利润,也能给租客带来生活便捷。公寓里有很多东西都能够创收,比如咖啡机、自动售卖机、公共的收纳柜、抓娃娃机等,都很实用。但设计时一定要注意度的把握,不要硬植入。
实际设计中要重视墙面的利用,且提前预留插座电位。且根据后期发展需要,可能会增加创收项目,设计初期就应科学的留出一些实墙面,若忽略,则在后期可能会破坏美观。
6. 轻硬装重软装
在窝趣轻社区公区设计中,硬装要做到简洁大方且百搭,一方面节约成本,一方面以应对未来的变化。其色彩、风格及差异化应更多的在软装上体现。

(初稿整体设计)
上图是项目排名前列稿效果图,硬装墙面色彩颜色过于丰富,线条切割面太多不够整体。花线条复杂让整体空间更显凌乱。用轻硬装重软装的思路调整后效果图如下:

硬装墙面大面积以统一的浅色乳胶漆为主,不做过多装饰及过多色彩,只在必要的区域做小面积的材质变化及色彩变化,天花也更整洁统一,让空间更显明亮宽敞。

(终稿局部设计)
用软、硬装结合打造空间情趣化。软装设计注重强调品牌色,但仍需色彩冷暖结合,公区色彩设计主张温馨。同中有变的空间色调能够塑造出非同一般的视觉张力。
7. 关注健康生活
公区面积允许条件下应该加入健身空间,引导租户健康生活。

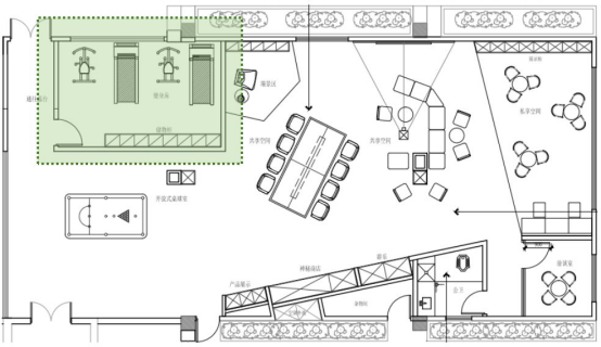
(健身房平面设计图)

(健身房效果图)
健身区不需要大块的空间,用一些角落区域甚至线性排布都能完成设施摆放。健身房的设计以简洁、活力为主。不投入过多成本,满足健身需求即可。让租户在下班或者周末闲暇时间,足不出户就把运动计划完成了,还避免了风吹日晒的烦恼。
除了通过加盟的合作方式,享受窝趣全链条的运营,亦有模块化解决方案。模块化解决方案中的W-CONSULTING (项目规划与设计服务),为合作伙伴带来更良好的费用控制、更科学的进度控制、更有效的质量控制、更规范的合同管理。