揭秘观承望溪全能“神户型”,让居住更美满

购房群

买房如何避坑,加入购房群,看看他们怎么说

立即进群

你的理想居住空间有多少种模样?

咫尺湖泊的舒适惬意,闻得到绿意葱茏的林木气息,明亮的厅堂以及洒满阳光的房间……无论如何,它是能带来美好生活体验的。这次万科在观承望溪打造的130平“神户型”,就对居住空间进行了独特而又均好的设计。

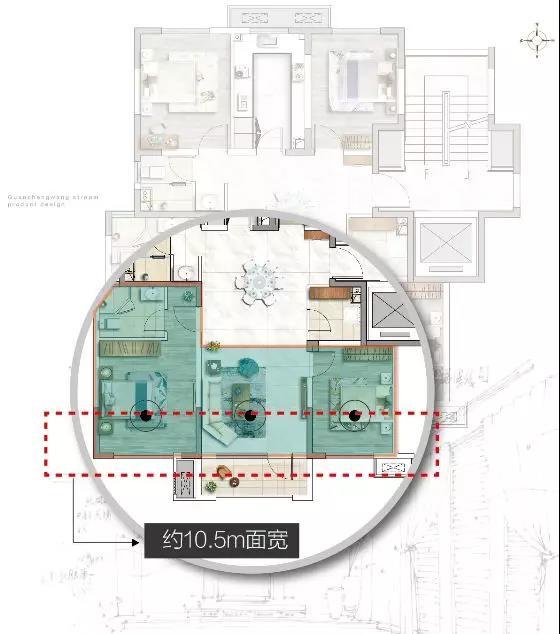
建筑师在规划小区的时候,首先考虑的,不是如何让房子住的舒服,而是人如何把总建筑面积做到较大值。想要把建筑面积做到较大而且同时满足光照标准,较简单粗暴的方式,就是减少面宽,增加进深。从这个角度来说,面宽是影响房屋品质的重要因素。

观承望溪深刻洞察人居自然环境特殊性和居住体验感受,深谙宽绰的面宽对于采光性和通透度的重要意义。因此将130㎡的方正户型反复考量之后,打造了约10.5米的南向横厅,更是把横厅的特点发挥到了优质。主卧、客厅、次卧一字型排开,三面朝南,阔绰的尺度使得每个房间日照时长多一小时。

有了面宽,意味着每个户型面积的充分利用。所以四个卧室建面均大于10平米,这意味着每个房间都足够大的空间,任何一个房间都足够放下双人床+衣柜,给予生活更多从容自在。

卫生间的设计也很贴心,两个卫生间都是明卫,洗手台设计在卫生间外面,明确区分开不同的功能区,也避免了家人"抢"卫生间的尴尬状况,就连次级卫生间也可以干湿分离,这是市面上大多数户型很难做到的。

南向阳台也确实让人很感动,阳台还是半的。阳台与南向客厅相接,延展开一幅清雅静逸的生活画卷,抬眼即是满目风景,二人对坐畅聊、品茶,方寸之间再添生活雅趣。

厨房的U型设计很讨巧,对比L型厨房的小空间,U型厨房做饭的人员不用受到空间限制,各个区域也能得到明显的而划分,两边可以分别设计水槽、炊具、油烟机的位置;厨房不再是单一的烹饪场所,更是家人一起烹饪交流的温馨空间。

客厅东向还有一个小仓储,可以做衣帽间、储物室,而且还保留了上下水条件,未来也可以和卧室打通做套间,形成双套间卧的格局。不管是二人世界、新添成员、二孩来临、三代同堂……都留出了大量自我发挥的空间。

居住在这里,在功能分区明晰的空间内,生活起居互不相扰,既有独立空间又可形影不离。总体来说,这个户型是目前北五环较好的四居了,所有的幸福时刻,皆可于此见证。

在观承望溪,看阳光从书页上跨过,听鸟儿在窗外低语。和家人一起享受纯墅区的社区生活环境以及友善、高智的邻里圈层。于繁华中回归生活本真,静静享受属于东方人的住宅智慧,体悟幸福的人生本味。

观承望溪2020线上展厅全线开启,足不出户,线上选房,24小时不打烊,欢迎围观,特别推出精工洋房总价675万起,限量房源,可遇难求!

全部
报名成功
稍后会有专业的置业顾问联系您
返回楼盘

频道导航

返回首页

看房小程序

APP下载

电话拨通后,请您手动拨打分机号

确定拨打电话

电话号码:

分机号:(可能需要拨分机号)