想打造一个既温馨又舒适的家,就把它交给专业的人来装,让舒适成为一种心动,让回家成为一种享受,下面一起看看设计师装修将50平一居室爆改两居室的效果案例图,近期装修的朋友可以参考下!
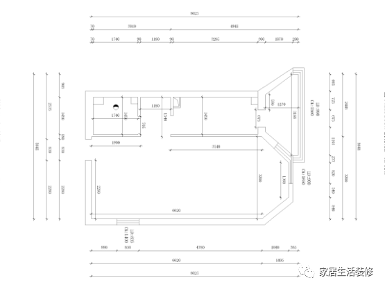
原始户型结构图:

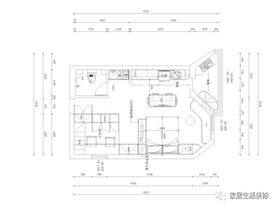
改造后户型结构图:

【装修面积】:50㎡
【装修地址】:北京昌平
【装修户型】:两室一厅
【装修风格】:现代简约
【设 计 师】:美宅客胡雄勃
【设计理念】:用较少的投入,来较大化的美化和利用现有空间,一切随心,有心去感悟空间
【设计说明】:本案例业主是一对新婚夫妇,带着一个小孩,一位老人 ,由于现有的房子是一居室,想改造成两居室,还有厨卫是对门的,担心对风水不好,还有家有老人,为了考虑到个人隐私的问题,业主建议靠墙做个玻璃隔断,
在与设计师沟通下,对户型结构进行简单调整,将空间合理利用起来。
客厅温暖的阳光照进客厅,尤其是在周末的时候,躺在沙发上娱乐,看书,或者茶几上放一盘水果,跟家人一起聊天,都是不错的选择,躺在沙发上享受下午的阳光是多少人向往的美好生活。

1
客厅
客厅旁边的餐桌,因为业主是做艺术的,所以靠墙体挂了一些自己喜欢的装饰画,具有艺术本身的美感,白色餐桌搭配了黑色的椅子和黑色餐桌底盘布,自然美观营造了一个家庭温馨的氛围。

这张图也是餐桌的一部分,餐桌的右边放一个书架,书架上面放一堆小音箱,夜晚来临时跟爱人在低缓、悠扬的歌声中,点上蜡烛共进晚餐,满满的都是幸福感。

1
厨房
由于考虑到小户型,设计师配了能放餐具的橱柜,简单大气,有了这些收纳餐具的小橱柜,再也不怕小户型厨房乱糟糟的,左边做了一些小框架,前面也说了业主是搞艺术的,业主希望在家的每个角落都能看到装饰画。

1
卧室
卧室采用客厅的颜色搭配,因为业主很年轻,不喜欢太沉重的颜色,户型小,如果装太沉重的颜色,柜子上面建档放几个小花瓶,,显得整个卧室很温馨,简单大气上档次。


1
卫生间
卫生间业主不希望全部是白色瓷砖,担心脏了不容易清洁,所以设计师在设计的时候靠墙体容易脏的地方采用了类似地中海瓷砖,来点不一样的风格。
