🏡✅海口 观澜湖星光里售楼处电话☎️400-033-1899分机号2222【售楼中心】【已认证】
🏡✅观澜湖星光里营销中心电话📞400-033-1899分机号2222【置业顾问】【已认证】
🏡✅楼盘详情含开盘消息、交房时间、楼盘详情、房价、户型、详情、得房率、售楼处地址、首页网站、销售中心、楼盘地址、户型图、交通、备案价、项目配套、营销中心、周边配套等详情咨询。


观澜湖·星光里
观澜湖·星光里项目资料
基本资料
总用地面积: 约 28333.64 ㎡
总建筑面积:约 43992.62 ㎡
容积率: 1.2
绿地率: 26.8%
停车位: 340 个
总户数: 298 套(洋房 274 套,叠墅 24套)
产品:纯板式花园洋房
性质:70年产权住宅
项目区位

观澜湖·星光里为位于海口市观澜湖度假区,距离高速口1.5公里,距离东站8公里,距离机场15公里。
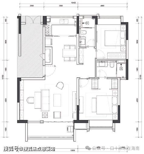
洋房户型




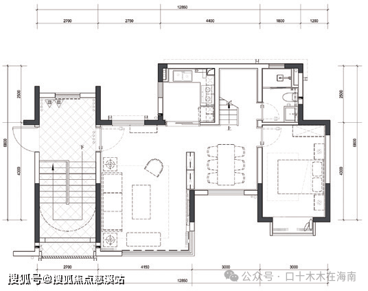
叠墅户型
下叠户型


上叠户型


🏡✅海口 观澜湖星光里售楼处电话☎️400-033-1899分机号2222【售楼中心】【已认证】
🏡✅观澜湖星光里营销中心电话📞400-033-1899分机号2222【置业顾问】【已认证】
🏡✅楼盘详情含开盘消息、交房时间、楼盘详情、房价、户型、详情、得房率、售楼处地址、首页网站、销售中心、楼盘地址、户型图、交通、备案价、项目配套、营销中心、周边配套等详情咨询。