天津金茂泮湖满庭售楼处电话400-033-1899转接6789【售楼中心】
天津金茂泮湖满庭售楼处电话400-033-1899转接6789【售楼中心】
天津金茂泮湖满庭售楼处电话400-033-1899转接6789【售楼中心】
金茂·泮湖满庭是T字型地块,T字两边是老社区。
虽然外部有泮湖公园这样的景观资源,北侧靠水;但内部的T字形态其实是有劣势的,金茂尽量扭转这方面的劣势,如在宣传中说是T台秀。
因为T字形态是长和扁,实际设计过程中很难在楼与楼之间做出大组团,所以金茂通过高差递减、北高南低来化解这一尴尬,形成有山地感的立体景观格局。
主入口开在了北侧,一路之隔就是规划的泮湖公园,拥有约1.6万㎡的湖泊。
进入大门后是归家大堂+业主会所,会所预设功能较齐全,涵盖了运动、健身、会客、甚至私宴厅。布局如下:

02
整个小区共规划556户,小高层+洋房,带精装修;
北侧一排4栋18F到顶的小高层,其中中户100㎡和边户120㎡;
其他11栋楼是7-11F到顶洋房,产品104-143㎡。
03
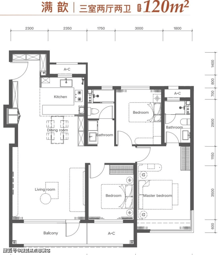
小高层100和120㎡ 三室两厅两卫
只讲下创新点的地方,小高层户型中户和边户S墙体设计,客厅预留了放置冰箱的空间;
入户厨房位置对客厅的墙体可以做成中式岛台,与客厅联动;
客厅延伸出去的阳台相当于连接了次卧的设备间赠送,演变成一个大阳台,像100㎡户型阳台就可以做到6.6米;120㎡就是7.7米。


天津金茂泮湖满庭售楼处电话400-033-1899转接6789【售楼中心】
天津金茂泮湖满庭售楼处电话400-033-1899转接6789【售楼中心】
天津金茂泮湖满庭售楼处电话400-033-1899转接6789【售楼中心】