丰隆城市中心售楼处电话:☎400-9016-520✔✔
丰隆城市中心营销中心热线☎400-9016-520✔✔(官方预约看房热线)
目前高铁新城其实还有不少项目在售,但是纯新盘上,目前最快的也就是拿地两年多的高融置业高铁新城65号地块。
项目案名正式发布,为丰隆海纹中心!最近项目的批后规划也正式公布了!

丰隆海纹中心,即,苏地2021-WG-65号地块,位于相城区高铁新城水景路西、富翔路南,是2021年11月24日,高融置业以底价32162万元竞得,成交楼面价1244元/平。丰隆城市中心售楼处电话:☎400-9016-520✔✔

项目的地块用途为商住混合用地,占地面积51691平,容积率5.0。根据要求,其住宅部分为公寓式住宅,且平均建筑高度需满足100米以上,住宅装标为2500元/平。
平面图上来看,项目将打造一栋50F超塔,为办公和酒店和5栋45F住宅。丰隆城市中心售楼处电话:☎400-9016-520✔✔
丰隆城市中心售楼处电话:☎400-9016-520✔✔
丰隆城市中心售楼处电话:☎400-9016-520✔✔
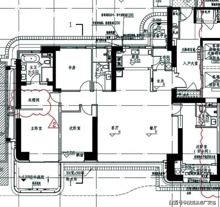
本次公示的是1#的平面图,一梯两户设计,只有种4房3卫设计。
八、十、十二层平面图
丰隆城市中心售楼处电话:☎400-9016-520✔✔
4房2厅3卫
丰隆城市中心售楼处电话:☎400-9016-520✔✔
4房2厅3卫设计,南向约7米大横厅,主卧开间3.8米,南向双卧室套房设计,主卧室带衣帽间和四段式卫浴间,南次卧则是带暗卫和封闭阳台。北向厨房带工作间,且为双入户设计,两条归家动线!值得关注的是,南向超大空中庭院,这也是个第四代住宅!
丰隆城市中心售楼处电话:☎400-9016-520✔✔
丰隆城市中心售楼处电话:☎400-9016-520✔✔
与上个户型基本一样,主要差别就是空中庭院是在主卧里面!
根据此前官宣,该项目将由CDL新加坡城市发展集团打造。这也是丰隆城市中心的开发商。
丰隆城市中心售楼处电话:☎400-9016-520✔✔
从官方发布的消息来看,丰隆超高层综合体项目位于苏州高铁新城中部片区,由新加坡丰隆集团子公司新加坡城市发展有限公司开发建设,计划总投资30亿元人民币,集高端酒店、写字楼、住宅于一体,其中包括一座高度约280米的超高层建筑。项目预计于2029年初完工,致力于建设成为苏州高铁新城的新地标。
丰隆城市中心售楼处电话:☎400-9016-520✔✔
从湖西到奥体再至月亮湾,五大纯新盘扎堆入市,形成难得一见的市场盛况。
然而,在这场群雄逐鹿的市场格局中,真正引发行业震动与高端客群疯抢的,竟然是金鸡湖右岸的——丰隆城市中心。
丰隆城市中心售楼处电话:☎400-9016-520✔✔
实景图
火到什么程度呢?
自2025年2月以来,项目持续领跑金鸡湖右岸楼市,月均销量稳定保持在50+套(数据来源:开发商统计),一些高性价比的小户型全靠拼手速!
以至于卖到现在,约62㎡房源仅剩最后4套在售,热销态势全市罕见!
如果你对这个盘还不熟悉的话,那我必须告诉你它的含金量有多高:
70年产权精装现房、步行约500米直达湖岸线、在售少量62-107㎡臻稀湖景小户、210万起高性价比总价、头部景城学区加持…
所以此盘一经爆出,一大批湖东高净值客户纷纷入手。
其中,很大一部分客户是基于收藏角度购入。
因为他们深知在金鸡湖右岸C位地段+头部教育资源景城学校加持下,它的下限会非常稳;
还有一部分是深谙时尚脉搏的精英人士自住。
他们看中的是丰隆城市中心无缝融入都会的摩登生活圈:举步即达激发灵感的当代美术馆,转身邂逅五星级豪华酒店的风尚场域,他们共同编织出了苏州TOP级的潮流生活场。丰隆城市中心售楼处电话:☎400-9016-520✔✔
丰隆城市中心售楼处电话:☎400-9016-520✔✔
实景图
别说我没提醒各位!现在丰隆城市中心现房精装房源真的不多了!赶紧扫码约看房!这类产品真的属于错过再无!
实景图② 家门口百亿配套的价值赋能:
再看丰隆城市中心的配套底盘,更是非一般区域可比——
周边久光百货、时代广场、在建的苏州中环广场等百万方地标级商圈环伺,同时自带商业综合体丰隆汇、中国首家M SOCIAL苏州千绣悦酒店,形成 “5分钟顶级生活圈”。
此外,项目出门就是轨交8号线站点,实现真正的 “地铁上盖”,一站即可换乘1号线与6号线。

金鸡湖,是苏州的城市名片,也是无数人梦寐以求的居住之地。然而,真正位于金鸡湖畔的湖居产品却凤毛麟角。
丰隆城市中心总共有4幢楼,T1和 T2是住宅,T3是公寓,T4为办公。
目前推出的是T2,也是金鸡湖旁为数不多的70年住宅的实景现房!
还是一个纯正地铁盘,出门20米就是轨交8号线,一站即可换乘1&6号线。
毕竟是丰隆,周边配套也都是王炸级。
苏州之眼、苏州文化艺术中心、月光码头、苏州当代美术馆等地标建筑就在附近。
商业方面,有时代广场、诚品书店、ICC、在建的中环广场...散个步的距离也能到达。

教育上,丰隆城市中心现房交付,可就读苏州园区头部教育资源——苏州景城学校。
而且丰隆城市中心自带的配套也很有料,中国首家M SOCIAL苏州千绣悦酒店,全球第五家M SOCIAL品牌,也入驻苏州园区,据说各大演艺明星来苏州开演唱会指定酒店。而且酒店配套的五星健身房、泳池等也广受好评。
示意图
日常步行几分钟可达右岸飞翔雕塑、摩天轮、苏州当代美术馆等城市级地标。
实景图
更值得关注的是,根据2025年教育部门公示,项目已纳入景城学校施教区范围,作为园区头部优质教育资源,将进一步强化资产抗跌性。
综上,依托右岸C位地段及5万+/㎡历史高点,丰隆城市中心资产价值具备强有力支撑,安全边际十足。
总结而言,就是现在入手丰隆城市中心,既是对政策红利的锁定,更是以低成本布局金鸡湖右岸的罕见良机。
一、从政策视角来看,“真金白银” 让利,置业门槛大幅降低!
目前苏州住房公积金利率仅2.6%,触达历史低位;与此同时,贷款额度却升至历史高点,家庭最高可贷225万;
双管齐下,多数购房者无需组合贷即可覆盖需求,一来大幅减轻资金压力,二来闲置的公积金可以物尽其用。
就拿丰隆城市中心建面约62㎡、总价约210万起的热销户型来说,最低15%首付约32万,贷款178万,月供仅约7100元。
项目一室房源租金最低4000元/月(截至2025年6月贝壳平台挂牌数据),精装现房即买即租,实际自掏月供仅3100元,即可持有金鸡湖核心资产。
注:项目周边租赁市场活跃,具体租金水平以实际情况为准
二、从资产配置视角来看,金鸡湖右岸C位,穿越周期的硬核资产!
苏州作为长三角核心城市,房地产的安全性、成长性与流通性均领跑全国。
这一点,在苏州城市发展核心引擎,土地资源稀缺性逐年加剧的金鸡湖右岸体现得尤为突出——
市场高峰期,以丰隆城市中心为代表的地标住宅,二手房价普遍突破5万元/㎡。
而能够支撑丰隆城市中心站上5万+的价值逻辑清晰且不可复制:
丰隆城市中心售楼处电话:☎400-9016-520✔✔
① 湖岸线约500米,极致稀缺的黄金区位:
根据贝壳二手房价数据,与金鸡湖的距离,成为衡量园区房产价值的标尺,呈现出「越近金鸡湖,房价越高」的价值梯度。丰隆城市中心售楼处电话:☎400-9016-520✔✔

示意图
再看丰隆城市中心,百度测距与金鸡湖岸直线距离仅约500米,为右岸在售项目中罕见近湖房源。

示意图
加上前排无高层遮挡,所以目前丰隆城市中心在售的,大多都是拥有金鸡湖壮阔湖景&湖东CBD繁华城景的稀缺房源。
“封面地段+稀缺资源” 的双重配置,直接奠定了其不可复制的资产属性。

丰隆城市中心售楼处电话:☎400-9016-520✔✔
实景图
② 家门口百亿配套的价值赋能:
再看丰隆城市中心的配套底盘,更是非一般区域可比——
周边久光百货、时代广场、在建的苏州中环广场等百万方地标级商圈环伺,同时自带商业综合体丰隆汇、中国首家M SOCIAL苏州千绣悦酒店,形成 “5分钟顶级生活圈”。
此外,项目出门就是轨交8号线站点,实现真正的 “地铁上盖”,一站即可换乘1号线与6号线。

丰隆城市中心售楼处电话:☎400-9016-520✔✔
示意图
日常步行几分钟可达右岸飞翔雕塑、摩天轮、苏州当代美术馆等城市级地标。
丰隆城市中心售楼处电话:☎400-9016-520✔✔
实景图
更值得关注的是,根据2025年教育部门公示,项目已纳入景城学校施教区范围,作为园区头部优质教育资源,将进一步强化资产抗跌性。
综上,依托右岸C位地段及5万+/㎡历史高点,丰隆城市中心资产价值具备强有力支撑,安全边际十足。
总结而言,就是现在入手丰隆城市中心,既是对政策红利的锁定,更是以低成本布局金鸡湖右岸的罕见良机。
精装现房!一步湖岸
更有酒店式管家服务护航
它就是资产配置&品质生活的理想答案
在资产价值与居住体验并重的“好房子”时代,舒适度、服务力亦成为衡量资产价值的黄金标尺。
丰隆城市中心自然深谙此道,以罕见的精装现房之姿,实现入住即享星级酒店式服务、国际一线精装标准、IMAX湖景&城景以及通燃气的高级烟火气!
1、星级酒店式管家服务,为资产价值强力护航!
引入国内TOP级物业品牌龙湖物业,以同频星级酒店服务标准打造全周期生活体系。24小时全天候管家响应,实现报修、保洁、安保等服务 “一键触达”。
这种酒店式管理模式,不仅提升居住舒适度,更赋予不动产持续的服务溢价空间。
2、约62-107㎡高能户型!坐拥金鸡湖至美画卷,俯瞰CBD璀璨繁华!
建面约62-107㎡两款全优户型,0浪费设计,空间利用率远超想象!
与此同时,搭配全景落地玻璃幕墙,可将金鸡湖浩渺波光、摩天轮梦幻霓虹、CBD璀璨天际线尽收眼底,推窗即享IMAX级景观盛宴!
62㎡精致一居,独立玄关、独立厨房、独立卫浴,加上全景落地窗,私密通透兼得,小空间大自在。

丰隆城市中心售楼处电话:☎400-9016-520✔✔
约62㎡样板间实景图 非交付标准
107㎡奢阔两居,从容应对单身、新婚、育儿等不同人生阶段,成长空间一步到位。

丰隆城市中心售楼处电话:☎400-9016-520✔✔
丰隆城市中心售楼处电话:☎400-9016-520✔✔
约107㎡样板间实景图 非交付标准
3、国际一线精装现房,全屋高配!通燃气更是区域少见!
虽说是几年前的产品,但因其极具国际视野的前瞻性精装标准,哪怕放在当下看依旧品质在线!
全屋配置三菱中央空调、威能地暖、霍尼韦尔新风系统三大件;
厨房采用西门子燃气灶/消毒柜,这也是区域内少有的通燃气70年产权公寓,打破传统精装公寓 “去生活化” 痛点,满足烹饪需求,更让湖居生活兼具品质与温度。
丰隆城市中心售楼处电话:☎400-9016-520✔✔
约62㎡样板间实景图 非交付标准
卫生间配备全套德国杜拉维特卫浴套件,呈现星级卫浴体验;生活阳台配备干衣机;
最为关键的是所见即所得,“拎包入住”即享国际品质生活!
丰隆城市中心售楼处电话:☎400-9016-520✔✔
约107㎡样板间实景图 非交付标准
最后再来总结一下丰隆城市中心的价值点:
地段上,金鸡湖右岸封藏级地段,头部景城学区+约500米直达湖岸线,成为目前板块内在售项目zui近湖的一个;
产品上,高品质精装现房所见所得,约62-107㎡小户总价可控,加上政策友好,堪称资产配置优选项;
预期上,承载园区下一个30年发展的金鸡湖右岸,正以肉眼可见的速度集结一众地标集群重塑园区天际线,地段价值具备长期优势,二手市场活跃度极高。
入眼的是T2栋的公区大堂,空间感还是很震撼的。
丰隆城市中心售楼处电话:☎400-9016-520✔✔
丰隆城市中心售楼处电话:☎400-9016-520✔✔
再来看现房内部,实景就很南洋风。
2房户型实拍丰隆城市中心售楼处电话:☎400-9016-520✔✔
丰隆城市中心售楼处电话:☎400-9016-520✔✔
1房户型实拍
部分房源还能望见金鸡湖等地标景色,视野优秀~
丰隆城市中心售楼处电话:☎400-9016-520✔✔
丰隆城市中心售楼处电话:☎400-9016-520✔✔
并且项目很多的精装细节,放到现在水平也依旧在线:
全系标配了三菱中央空调+威能地暖+霍尼韦尔新风系统;厨房选用的是西门子,卫浴是杜拉维特;
丰隆城市中心售楼处电话:☎400-9016-520✔✔
丰隆城市中心售楼处电话:☎400-9016-520✔✔
丰隆城市中心售楼处电话:☎400-9016-520✔✔
厨房通燃气,还在旁边配置了燃气干衣机,烘干效率远超电烘干机,这在苏州公寓当中也很难得的~
丰隆城市中心售楼处电话:☎400-9016-520✔✔
房地产的基本常识包括哪些
1.房地产
房地产又称不动产,是房产和地产的总称,具体地是指土地及其附着物。房产总是以地产联结为一体的,具有整体性和不可分割性
2.房地产产权
是指产权人对房屋的所有权和对该房屋所占用土地使用权。具体内容是产权人对房地产的占有、使用、收益和依法处分的权利。
3.土地使用权
是指土地使用权拥有者对土地使用的权限,包括开发权、收益权、处置权。政府以拍卖、招标、协议的方式,将国有土地使用权在一定年限内出让给土地使用者。土地使用权期满后,如该土地用途符合当时城市规划要求的,土地使用者可申请续用,经批准并补清地价后可以继续使用。
4.房地产市场
主要包括房地产买卖、租赁市场。含一级市场、二级市场和三级市场:
一级市场是指国家土地管理部门(市国土管理局)按土地供应计划,采用协议、招标、拍卖的方式,以土地使用合同的形式,将土地使用权以一定的年限、规定的用途及一定的价格出让给房地产发展商或其他用地者的市场。
二级市场是指房地产发展商根据土地使用合同的要求将建好的房屋连同相应的土地使用权转让给单位和个人的市场。
三级市场是指单位、个人之间的房地产权转让、抵押、租赁的市场,它是在二级市场基础上的第二次或多次转让房地产交易活动的市场。
5.土地类型
土地按其使用性质划分为:居住、商业、工业、仓储、综合用地、公共设施及自由集资、微利房用地。
6.三通一平
是指在发展基础上的水通、电通、路通及场地平整。
7.七通一平
是指上、下水通,排污通、排水通、路通、通讯通、煤气通、电通及场地平整。
8.土地管理局
代表国家行使土地所有者的权利,以及对房地产市场、房地产行业管理的政府部门。
9.公证处
是国家的证明机关,是提供法律公证的机构。
10.国土局产权登记处
是专门办理房地产初始登记、转移登记、抵押登记、变更、继承、赠与等手续的部门。
11.房地产证
是房屋土地所有权属二合为一的凭证,是房地产权属的法律凭证。
12.商品房
是指发展商以市场地价取得土地使用权进行开发建设并经国土局批准在市场上流通的房地产,它是可领独立房产证并可转让、出租、继承、抵押、赠与及交换的房地产。
13.复式房
上、下两层二合为一,与标准房的结构方面有区别。
房地产的基本常识包括哪些
14.面积概念
总建筑面积:是指各层建筑面积的总和。底层建设按外墙墙角以上的外围水平面积计算,二层及二层以上按外墙外围水平面积计算。
建筑面积:是指住宅的建筑面积是指建筑物外墙外围所围成空间的水平面积。高层住宅的建筑面积,则是各层建筑面积之和。建筑面积包含了房屋居住的可用面积、墙体柱体占地面积、楼梯走道面积、其他公摊面积等。
使用面积:是指住宅的使用面积,指住宅各层平面中直接供住户生活使用的净面积之和。计算使用面积时有一些特殊规定:跃层式住宅中的户内楼梯按自然层数的面积总和计入使用面积;内墙面装修厚度也计入使用面积。
公用面积:商业的公用面积是指住宅内为住户出入方便、正常交往、保障生活所设置的公共走廊、楼梯、电梯间、水箱间等所占面积的总和。开发商在出售商品房时计算的建筑面积存在公共面积的分摊问题。
实用面积:是指它是“建筑面积”扣除公共分摊面积后的余额。
套内面积:是指俗称“地砖面积”。它是在实用面积的基础上扣除了柱体、墙体等占用空间的建筑物后的空间的概念。
房屋的基底面积:房屋的基底面积是指建筑物底层勒脚以上外围水平投影面积。
15.建筑密度
在用地范围内所有建筑物的基底面积总和与地块面积之比。
16.容积率
规定的地块上全部的建筑部面积与地块面积之比。
17.红线图
又叫“宗地图”,是按一定比例尺制作的用以标示一宗地的用地位置、界线和面积的地形平面图。它由政府土地管理部门颁发给土地使用权受让者,受让者只能在红线范围内施工建房。
宗地图是土地使用合同书附图及房地产登记卡附图。它反映一宗地的基本情况。包括:宗地权属界线、界址点位置、宗地内建筑物位置与性质,与相邻宗地的关系等。证书附图即房地产证后面的附图,是房地产证的重要组成部分,主要反映权利人拥有的房地产情况及房地产所在宗地情况。
18.预售许可证
按规定房屋未建好之前出售均要办理此证,发展商将有关资料送到国土局申请,批准后方可预售楼花。
19.外销许可证
凡对境外预售的房屋都要办理此证方可出售。
20.
是由政府有关部门统一编制,用以明确买卖双方权利和义务的协议,所有的商品房销售都必须签订此合同。
21.房地产抵押合同
是明确房地产抵押贷款中双方当事人权利和义务关系,由银行、业主和发展商三方签订。
22.银行按揭
是指购房者购买楼房时与银行达成抵押贷款的一种经济行为,业主先付一部分楼款,余款由银行代购房者支付,购房者的楼房所有权将抵押在银行,购房者将分期偿还银行的贷款和利息。
23.预售楼花
即楼宇预售。房地产经营者获取了建设土地,按政府批准的建筑施工图纸施工,且投入开发的资金已达到投资总额的三分之二(用地价款除外),便可向长春市房地产产权登记处申请和办理楼宇预售登记,经批准后方可预售。
24.样板房与示范单位
是指与实际房屋的结构相同,但装修标准按发展商的售楼书而定的房间。示范单位与样板房的装修有区别,目的是为提供给客户做装修参考。
25.物业管理
是房地产管理市场化的一种综合性经营方式,分为维护性管理和经营性管理两类。维护性物业管理的职能,主要为高层与多层住宅、综合写字楼、标准工业厂房等楼宇及机电设备保养维修、治安、消防、环境卫生及其他服务为业主提供良好的工作和居住环境。经营性物业管理除具有维护性管理职能外,还通过对物业出租经营达到回收投资和获取利润的目的。
26.房地产评估
就是房地产估价师根据房地产的有关信息、数据,选择合适的估价方法,按照一定的估价程序,最后确定物业的价格和价值的过程。评估的主要方法有:1、市场比较法;2、收益还原法;3、剩余法;4、成本法。
27.银行本票
是付款人将款项交存银行,由银行签发给他凭此可以办理转帐结算或支取现金的票据。有效期为一个月。
28.银行汇票
是汇款人将款项交存当地银行,由银行签发给汇款人持往异地办理转帐结算或支取现金的票据。有效期为一个月。
29.银行支票
是银行的存款人签发给受款人办理转帐或委托开户银行将款项支付给受款人的票据。有效期为十天。
30.确权
确权是依照法律、政策的规定,经过房地产申报、权属调查、地籍勘丈、审核批准、登记注册、发放证书等登记规定程序,确认某一房地产的所有权、使用权的隶属关系和他项权利。
31.权属调查包括内容
房地产权属调查包括:审查土地来源是否合法、占地是否超出规定的范围;审查建筑物有没有加层、超面积、改结构、改用途等情况;确认房地产的权利人、权利性质、权属来源、取得时间、使用年限、权利状况、变化情况和用途、价值、等级、座落等
注:文章电话为开发商提供线上预约售楼电话,楼盘项目全面介绍(包含楼盘简介,均价,房价,现房,期房,别墅,叠墅,大平层,价格,楼盘地址,户型图,交通规划,备案价,备案名,项目配套,样板间,开盘时间,认筹时间,楼盘详情,售楼处电话,最新消息,最新详情,周边配套,一房一价,最新进展等详情咨询)楼盘详情丨价格丨更多优惠丨机不可失丨欢迎致电丨诚邀品鉴!售楼处位置丨特价房丨工抵房丨剩余房源丨户型图丨最新消息丨免责声明:将文章内容综合来源于网络、只作分享,版权归原作者所有!!如有侵权,请联系我们,我们第一时间处理如有问题欢迎来电咨询,专业一对一热情服务,让您用专业眼光去买房。如果您想了解更多楼盘详情,欢迎提前预约拨打营销中心电话: 400-9016-520✔✔