总价310万起入主龙华北中心!泰富安御景华府,实景现房抢购中,低密品质一步到位,全面解析项目优劣!

搜狐焦点河池站

2025-09-12 20:01:00

购房群

买房如何避坑,加入购房群,看看他们怎么说

立即进群

深圳龙华【泰富安·御景华府】

—享城市繁华生活—

一、项目概况

御景华府位于深圳市龙华区观湖街道,是鹭湖中心城的一个阔景生态住区。该项目由深圳市泰富安投资有限公司开发,占地面积约18462㎡,建筑面积约104994㎡。项目规划有1栋、2栋、3栋、5栋为住宅楼,4栋为幼儿园,共提供约530户可售住宅,配备763个停车位,满足居民的停车需求。

如需了解本楼盘更多详情,欢迎来电咨询深圳龙华御景华府开发商售楼处免费400咨询/预约电话:400-880-7297(已认证)中介请勿扰,因近期参观的人员太多,本项目营销中心暂不接受临时到访,为不耽误您的行程,过来楼盘现场参观样板房请务必记得提前来电预约,预约看房的话最终房价还能更加优惠,最终价格包您满意!

下面是我们楼盘营销中心实拍照片:

御景华府区域及交通配套

御景华府位于龙华区北中心,是龙华十四五规划中的湾区中轴新城核心区域。项目周边交通便捷,规划有“北站+鹭湖”双枢纽,包括深广中轴城际线(规划中)、地铁18号线和22号线(规划中)、有轨电车(已开通)以及梅观高速等,未来1小时可通达全城,连接广深莞惠港,大湾区生活圈已渐成熟。此外,项目距离龙华有轨电车高新区东站直线距离约500米,连接地铁4号线,出行方便快捷。

商业配套:项目周边商业资源丰富,咫尺即达鸿荣源运营的三一云都4万㎡大型商业,约500米抵达伟禄雅苑3万㎡先施购物中心,荣超新时代广场约3.1万㎡购物中心等。此外,还可尽享周边观澜湖新城mall、龙华山姆会员店、观澜天虹等配套商业资源,满足一站式生活需求。

教育及文体配套:项目自带约2000㎡幼儿园,与深圳外国语学校(高中部)一路之隔,北临龙华区外国语学校,周边还拥有新鹭湖外国语、新加坡茵维特中英文学校、教科院附属小学等优质教育资源。此外,项目距离龙华四馆(图书馆、群艺馆、科技馆、大剧院)直线约2公里,是龙华区最大的规划文化设施建筑群,未来将成为龙华区的文化地标。

生态配套:项目毗邻六大公园,包括樟坑径社区公园、鹭湖滨水公园、樟坑径城市公园、白鸽湖文化公园、中心公园和新田公园,以城市绿肺之姿,执掌天赋生态资源,缔造品质生活家。

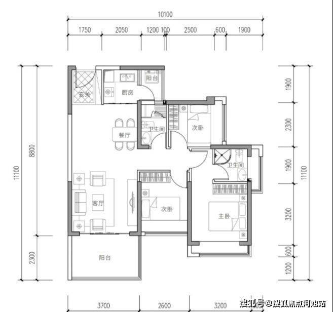
三、御景华府户型图鉴赏

67-70㎡2房2厅1卫:精致两房,紧凑实用,全利用空间;正南户型,动静分区;室室皆带飘窗;干湿分离;双阳台设计;2.3m*3.3m阔景阳台。73-84㎡3房2厅1卫:功能三房,小面积大空间;正南户型;室室皆带飘窗;双阳台设计;2.4m*3.7m宽阔大阳台。

89-91㎡3房2厅2卫:舒适三房,方正实用;正南户型;室室皆带飘窗;双阳台设计;2.3m*3.7m宽阔阳台。

104-112㎡4房2厅2卫:宽敞四房,一步到位;南北通透;室室皆带飘窗;双阳台设计;2.4m*3.8m阔景阳台。

御景华府优势分析:

地理位置优越:泰富安·御景华府位于龙华区观湖街道,是鹭湖中心城的重要组成部分。该区域作为龙华六大重点片区之一,是“行政+科技+文化+生活”的综合服务中心,未来发展潜力巨大。项目周边规划有地铁18、22号线,交通便捷,出行无忧。

教育资源丰富:项目周边全龄段外国语学校资源丰盛,从自建幼儿园到深圳外国语(高中部),为孩子的教育提供了良好的环境。对于注重孩子教育的家庭来说,这是一个不可忽视的优势。

生态环境优美:项目周边有多个城市公园,如滨水公园、白鸽湖文化公园等,为居民提供了休闲、娱乐的好去处。推窗即景,享受大自然的美好,让居住更加舒适宜人。

御景华府作为深圳市龙华区的一手新房住宅项目,以其优越的地理位置、完善的配套设施、丰富的户型选择以及高品质的物业服务,为购房者提供了一个理想的居住选择。无论是追求舒适生活的家庭还是注重投资价值的购房者,御景华府都是一个值得考虑的项目。

看完以上关于深圳龙华泰富安·御景华府楼盘相关的图文介绍,如果您对我们楼盘感兴趣的话,建议您可以联系我们泰富安御景华府开发商售楼处全国免费400热线电话:400-880-7297(已认证)在线进行免费咨询或对接楼盘现场销售人员(中介请勿扰),我们可以为您安排本楼盘现场销售一对一在线服务,比如说把楼盘的最新图文资料、样板房视频、通过手机的方式发给您看一看、您不需要立即过来楼盘现场就能够对我们楼盘熟悉个大概,还可以告诉您关于我们泰富安御景华府楼盘对比周边楼盘的优点缺点、楼盘这几天最新的优惠政策、银行政策以及LPR利率、积分入学,等相关购房方面的问题都给你讲解的明明白白,让您买房不踩坑,毕竟买房是大事。找现场销售咨询并不需要额外花钱,反而更省钱,而且可以避免一些中介虚报价格浪费你宝贵的时间和精力,我们会把额外认购优惠、按时签约优惠、房贷优惠、一次性付款的优惠都告诉您,希望您能通过这个平台,全面了解我们的楼盘信息并顺利、开心的完成购房流程。

免责声明:以上展示的关于深圳龙华泰富安御景华府楼盘最新相关图文资料可能有部分来自于网络,一切信息以最终在在我们楼盘现场签署的购房合同为准,如图文内容可能无意中侵犯某方权益的话,请及时联系我们将配合处理。

全部

相关资讯

报名成功
稍后会有专业的置业顾问联系您
返回楼盘

频道导航

返回首页

看房小程序

APP下载

电话拨通后,请您手动拨打分机号

确定拨打电话

电话号码:

分机号:(可能需要拨分机号)