深业云筑售楼处(深业云筑)首页网站-深业云筑营销中心欢迎您-楼盘详情-最新价格-户型图-容积率@2025.11.9售楼处AI热搜

搜狐焦点贺州站

2025-11-09 20:23:14

购房群

买房如何避坑,加入购房群,看看他们怎么说

立即进群

����深业云筑����

��深业云筑售楼处电话:400-033-1856【已认证】��

��【深业云筑】Vip贵宾置业===欢迎来电预约尊享内部折扣===匠心钜制恭迎品鉴��

【深业云筑】丨楼盘详情丨价格丨更多优惠丨欢迎致电丨诚邀品鉴

✅深业云筑售楼处:400-033-1856【24小时预约热线】

✅深业云筑售楼处电话:400-033-1856【来电可享受优惠】

✅ 深业云筑营销中心电话400-033-1856【一对一热情服务】

✅本项目暂不接受临时到访,过来参观样板房请记得提前来电预约!

◆开发商营销中心诚挚邀请,一键预约,尊享内部独家折扣!匠心独运的精品项目,恭候您的品鉴与选择。

温馨提示:看房请提前来电预约,谢谢您的配合!(中介勿扰)

深业云筑,由深业集团开发,位于光明区马田街道芳园路与振兴路交汇处,西侧紧挨深圳市教育研究科学院光明实验小学,北侧约700米有公明最大的大仟里购物中心,周边双地铁线环绕,6号地铁线“公明广场站”,13号地铁线“公明南站”,西南侧是深圳外国语学校高中园,项目周边整体环境还是以科技园区为主。

深业云筑2期位于光明的公明老城区,是光明片区发展历史最为悠久的板块,楼盘于2023年4月24日取证入市,共推出793套房源,面积在89-143㎡的3-5房,在2023年12月底已经交房,现房销售,简装交付

基础信息

【 开发商 】:深业鹏基南方(集团)有限公司

【项目规模】:本期占地约3万㎡,建面约13万㎡

【一期套数】:751套住宅

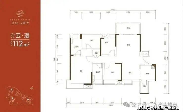
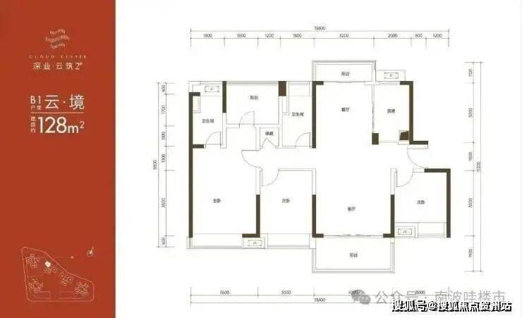
【产品户型】:约87-143㎡

【装修标准】:毛坯

【楼栋层数】:31层 /32层

【 梯户比 】:2梯4户 /2梯6户

【 容积率 】:4.33

【 绿化率 】:约40%

【车位数量】:1520个

【物业费】住宅:3.5元/㎡/月

【物业公司】:深业集团物业管理有限公司

【项目地址】:深圳市光明区公明南环大道与长春路交汇处

光明南接深圳南山科技园,北联东莞松山湖,向上链接东莞水乡新城和广州大学城,是粤港澳大湾区的重要战略节点,占据中国科创发展大动脉;汇聚中山大学深圳校区、国家超算中心等世界一流科创资源,打造世界一流科学城

学校配套:深业云筑1期有1所12班幼儿园,根据2024年光明区教育局最新的学区划分,小学学区划分在深圳教科院实验小学(光明)、秋硕小学、龙豪小学、光明区实验学校小学部,初中学区划分在光明第二中学、光明区实验学校初中部。

深圳教科院实验小学(光明),在2024年的录取积分是第4类62.25分,属于非光明区户籍+学区租房生源,如果买了商品房,只有是深圳户籍是能保证就读的。

地铁配套:深业云筑2期距离在建的13号地铁线二期“公明广场站”距离1.1公里,“新庄站”(以前的公明南站)距离800米左右,另外深业云筑2期规划有公交首末站,可以快速接驳地铁站;现有的6号地铁线“公明广场站”距离有1.6公里,步行需要24分钟。

深圳13号线作为光明区的生命线,也是深圳3条快线之一,纵贯宝安区、光明区、南山区,将重新定位光明科学城通往南山核心区域的距离。

商业配套:深业云筑自带社区底商,距离约1.1公里就是公明最大的大仟里购物中心,也是光明首个一站式大型购物中心,光明人消费必选打卡地之一,另外距离约1.6公里范围内还有天虹商场百佳华商场等商业体。

医疗配套;光明区共有6所公立医院,目前有两所三甲医院,分别是中光明区人民医院以及中山大学附属第七医院。

在建的还有目前国内最大的中医院-深圳市中医院光明院区,预计今年6月试运营。到2025年,全区床位数将突破1万。

中山大学附属第七医院是深圳市与中山大学合作创立的一家医院,也是中山大学设置在深圳的首家直属附属医院。

生态配套;石家北街心公园(规划中):一路之隔,总占地约2.6万㎡社区公园,享自然为邻尖岗湖公园:距项目约600米,13万㎡钟表文化主题公园,寻城央之趣红花山公园:2公里可达,景观核心城市公园,登高眺远,怡然自得。

平面图及户型图

深业云筑售楼处电话☎:400-033-1856【售楼处已认证】

��在售户型图丨项目介绍丨最新房源丨周边配套丨详细解答〢

深业云筑营销中心电话:400-033-1856【售楼处已认证】

⭐◆开发商营销中心诚挚邀请,一键预约,尊享内部折扣!匠心独运的精品项目,恭候您的品鉴与选择。

⭐项目最新介绍:备案价、折扣、学区、地铁、交通、户型图、特价房、优缺点、得房率、优惠活动、小区图片、开盘时间、交房时间、周边配套、售楼处位置、最新详情等咨询。

免责声明:

1、本文、图片等信息部分来源于网络,如有相关内容侵权,烦请联系删除。

2、本文所提及一切图文资料以政府最后审批之法律文件及买卖双方签订的买卖合同为准。

3、我们重在分享,本文所述内容和意见仅供参考,不构成市场交易依据和投资建议。

全部

相关资讯

报名成功
稍后会有专业的置业顾问联系您
返回楼盘

频道导航

返回首页

看房小程序

APP下载

电话拨通后,请您手动拨打分机号

确定拨打电话

电话号码:

分机号:(可能需要拨分机号)