…中洲迎玺三期……中洲迎玺三期……


中洲迎玺5栋:
96㎡3房2厅2卫(179套)单价 6.5-6.8万/㎡,总价区间628-653万;
115㎡4房2厅2卫(90套单价6.8-7.01万/㎡,总价区间779-804万;
143㎡5房2厅2卫(90套)单价 6.72-7.13万/㎡,总价区间963-1022万;
149㎡5房2厅2卫(43套)单价6.39-6.56万/㎡,总价区间955-981万;
173㎡5房2厅2卫(86套)单价 6.55-6.96万/㎡,总价区间1132-1203万
最新消息:北站红盘中洲迎玺三期北区5栋1-3单元,最新官方户型图出炉(详见下图)面积96-173㎡
中洲迎玺三期北区单位!!!
96平:179套
115平:90套
143平:90套
149平:43套(新品五房)
173平:86套(新品五房)
【奢阔楼间宽距】近160米超宽楼间距,最大化楼间距保证了视野的开阔度和充分的通风采光,车位比1:1,区域内最低容积率约4.24,片区稀缺2梯4户/2梯5户/3梯4户/3梯3户,高私密性,高舒适性。
【约1.3万㎡中央森系园林】片区内最大的社区园林,精制“四大隐奢空间”、“三大能量场域”,搭配森系儿童乐园、四季隐形轻氧跑道等,以顶奢酒店园林设计为理念,打造当代年轻人的城市微度假生活。
【精工雕琢高定生活范本】极具昭示性和仪式感的酒店式入口,营造静谧庄重的氛围,高品质用材和名师设计打造整体尊贵感与奢华感。
PART 3-生活配套
【交通配套】 地铁4/5/6号线交汇于深圳北站、地铁22号线(建设中)/27号线(建设中)、深惠城轨(规划中)联通全城;
高铁-亚洲最大高铁枢纽 : 深圳北站是深圳规模最大、设备技术最先进的客运枢纽,可快速抵达湾区各大核心城区,一地两检,通达香港及全国;
路网-四横四纵公路网 : 福龙路、南坪快速、北环大道等“四横四纵”深圳主干道,驾车轻松即可深圳的各核心片区
【学校配套】小区配建18班幼儿园,深圳外国语学校龙华校区(初中大学区,具体以当年教育局公布为准);格致中学民治校区(已于2024年4月正式动工)
【商业配套】项目周边近100万㎡ 商圈环伺,汇聚了龙华首家华润万象商业(建设中)、红山6979、华南首家Costco旗舰店等品质商业,国际一线品牌荟萃,演绎未来潮流新主场。
【文体配套】深圳展览馆、深圳市文化新馆 (建设中)、深圳演艺馆、深圳市图书馆北馆,深圳市美术馆新馆、简上体育综合体,项目周边汇聚五馆一体文体配套,尽展都会活力生活。
【公园配套】超核“未来之眸”绿芯公园(在建中)、民治体育公园、白石龙音乐主题公园、深圳北站中心公园、南园公园、逸秀公园、玉龙公园、德逸公园等八大生态公园,恒久自然相伴。
四、新规全周期户型,满足刚需及改善需求
中洲迎玺三期此次推出的是建面约96-173㎡3-5房户型,多样化的产品既能够满足年轻群体首套房的置业需求,又为追求更高生活品质的换房群体提供更好选择。
作为北站超核中心目前唯一新规户型新盘,此次加推的楼王单位大户型有着阔绰尺度3T3梯户比,满足全周期家庭户型需求,未来生活一步到位。

【五栋一单元-平面图】3梯3户,3条腿,分别是01、03号房户型约173㎡的5房2厅2卫、02号房户型约149㎡的5房2厅2卫
约173㎡的户型做到了南北对流,户型尺度宽敞
约149㎡的户型做到了双龙抱珠,聚气藏风使用



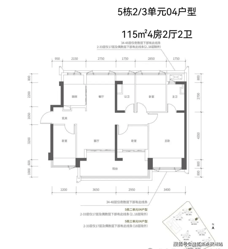
【五栋二单元-平面图】3梯4户,4条腿,01号房户型约144㎡的5房2厅2卫,02、03号房户型约96㎡的3房2厅2卫,04号房户型约115㎡的4房2厅2卫。
约96㎡的户型标准竖厅格局,最低上车门槛
约115㎡的户型阔绰阳台直连次卧,明亮实用
约144㎡的户型双龙抱珠,聚气藏风使用



【五栋三单元-平面图】3梯4户,4条腿,跟二单元的户型产品一模一样,01号房户型约144㎡的5房2厅2卫,02、03号房户型约96㎡的3房2厅2卫,04号房户型约115㎡的4房2厅2卫。





2025年9月4日,深圳市发布楼市新政,核心内容精简解读如下:
1. 本地购买限制放宽:深圳户籍或缴纳社保满1年的居民,可在除福田区、南山区及宝安区新安街道以外的区域购买住房,不限套数。
2. 外地人购房放宽:非本地户籍居民在上述限制区域外可在深圳购买2套住房。
3. 盐田、大鹏全面放开:这两个区域不限购,所有人群可自由购买。
4. 贷款利率统一:不再区分首套与二套利率,统一调整为3.05%。
5. 取消家庭状态限制:不再按单身或家庭区分购房资格,统一标准。
6. 企业购房放开:符合条件的企业可在全市范围内购买住宅,无区域限制。
7. 实施时间:新政自2025年9月6日起正式执行。