一、核芯价值:南市核芯+巫家坝红利
世茂璀璨世家雄踞官渡自贸区官南大道中段,占位巫家坝先享区核芯,扼守官南大道与飞虎大道中轴,坐拥万达、会展、巫家坝三大板块交汇红利。项目总占地177亩,在售地块占地51亩,容积率3.86,绿地率41%,是南市罕见的千亩级醇熟大城,由全国八强世茂集团匠筑,实景现房交付,即买即住即办证。

二、产品特色:南向板宅+品牌臻装
项目主打2T4户南向/东南向板宅,总高26-34层,在售建面约111-143㎡三房户型,2500元/㎡高标准精装交付,品牌明细全部写入合同,品质有保障。全明通透格局,户户朝南采光,空间尺度阔绰,无浪费面积,无论是刚需安家还是改善置换,都能完美适配,现房状态下实地看房更放心。
三、全维配套落地:交通+教育+商业+生态+医疗全解析
✅交通配套:三横三纵一轨路网,近邻地铁2号线小街站(约500米),全城畅达; ✅教育配套:片区规划10所幼儿园、5所小学、4所初中,15年全龄教育全覆盖; ✅商业配套:毗邻爱琴海、万达、南亚5大商圈,玫瑰湾金街近在咫尺,日常购物无忧; ✅生态配套:距巫家坝5070亩中央公园约900米,多座市政公园环绕; ✅医疗配套:6大医院环伺,近邻三甲同仁医院,健康护航。

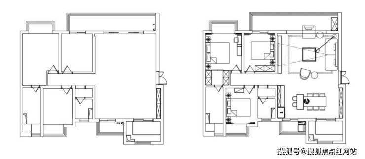
四、臻品户型鉴赏:尺度解析+选购要点
建面约111㎡三房:经典刚需户型,方正通透,明厨明卫,三口之家首选,低门槛入手南市现房;建面约143㎡三房:阔绰改善户型,大面宽采光,空间奢阔,动静分区合理,居住舒适度拉满。两款户型均为南向设计,采光通风俱佳,精装交付拎包入住。
1. 建面约111㎡三室两厅两卫:刚需爆款户型,高性价比之选

这款户型是刚需家庭的首选,整体格局周正,南向通透设计,采光通风效果拉满,告别阴暗潮湿。做到标准三室两厅两卫,空间规划零浪费,每一寸面积都物尽其用。动静分区合理,休憩区与活动区完全分隔,日常居家互不干扰,起居更静谧。主卧配套独立卫浴,保障主人私密生活;双卫设计,完美化解早高峰洗漱拥堵难题,大幅提升居住幸福感。餐客一体连通观景阳台,纵向延展视觉空间,室内更显开阔敞亮,三口之家居住温馨舒适,年轻人首次置业也无压力。
2. 建面约128㎡三室两厅两卫:端头横厅户型,采光视野双优

作为项目端头爆款户型,128㎡三房采用约5.6米大横厅设计,采光面全面拓宽,室内通透明亮,窗外视野无遮挡。全明格局搭配南向阔景阳台,清风穿堂而过,四季鲜氧萦绕,居家尽享自然惬意。U型厨房布局,洗、切、炒、煮动线流畅,下厨操作一气呵成,轻松解锁居家美味。主卧套房设计,自带观景飘窗与独立卫浴,兼具舒适度与私密性;次卧空间宽敞规整,可灵活打造为儿童房、老人房,适配家庭不同阶段需求,适合追求品质生活的刚改家庭。
3. 建面约143㎡四室两厅两卫:全明改善户型,阖家宜居首选
这款四室户型是改善家庭的一步到位之选,大面宽、短进深设计,全屋全明通透,空间阔绰不压抑。四房格局规划科学合理,可轻松容纳三代同堂,老人房、儿童房、书房、客房一应俱全,兼顾日常生活、休闲娱乐与居家办公。餐客大通厅设计,搭配阔景阳台,既是家人休闲互动的核心区,也是待客会友的社交场。双卫干湿分离设计,日常使用便捷卫生,细节之处尽显人居匠心,无需后期换房,实现改善置业一步到位。
五、硬核项目优势:核心竞争力
1、品牌房企:世茂集团全国八强,双上市公司,37年深耕,品质值得信赖;2、实景现房:即买即住即办证,规避期房风险,所见即所得;3、南向板宅:全南向通透格局,采光充足,居住舒适度高;4、醇熟配套:南市核芯,商圈、公园、地铁全落地,无需等待;5、高端物业:世茂物业全国TOP12,一级资质,贴心服务。
免责声明:部分信息来源于网络,若侵权请联系删除。本宣传资料不构成邀约邀请,周边规划、配套、投资前景等信息以政府最终批文为准,买卖双方权利义务以买卖合同及实际交付为准,开发商保留宣传资料修改权利,敬请留意最新资料。