昆明汉华天马山国际温泉度假区户型图|汉华天马山国际温泉度假区在售房源|售楼中心地址

搜狐焦点红河站

2025-06-19 14:02:00

购房群

买房如何避坑,加入购房群,看看他们怎么说

立即进群

087163630707

汉华天马山国际温泉度假区

售楼处电话:0871-6363-0707【售楼中心】

金牌置业顾问:13577156905

售楼中心地址:0871-6363-0707(致电发送详情地址)

预约来电看房享售楼处内部专享特惠,免费专车接送看房

项目情况

占地面积:10400亩

建筑面积:66369㎡

容积率:1.19

绿化率:40.1%

产权年限:70年

交付标准:毛坯、精装

在昆明这片充满诗意与浪漫的土地上,汉华天马山国际温泉度假区宛如一颗璀璨的明珠,镶嵌在山水之间,为忙碌的都市人提供了一处远离喧嚣、回归自然的心灵栖息地。

汉华天马山坐落于优美的自然环境之中,青山连绵起伏,绿树成荫,仿佛是大自然精心雕琢的画卷。山间云雾缭绕,如梦如幻,让你仿佛置身于仙境之中。

度假区内,清澈的溪流潺潺流淌,溪边花草繁盛,四季都有不同的色彩与芬芳。在这里,你可以远离城市的喧嚣,尽情呼吸清新的空气,感受大自然的宁静与美好。清晨,伴着鸟儿的欢唱醒来,推开窗,便能将壮丽的山景尽收眼底;傍晚,漫步在山间小径,看夕阳的余晖将山峦染成橙红色,享受这难得的静谧时光。

作为度假区的核心亮点,这里拥有珍稀的天然温泉资源。温泉水富含多种对人体有益的矿物质和微量元素,具有极高的康养价值。当你踏入温泉池,温热的泉水包裹着身体,疲惫与压力瞬间消散。无论是在寒冷的冬日,还是在温暖的夏日,泡温泉都是一种享受。你可以在私密的汤池中独自放松,也可以与家人朋友共享欢乐时光。

度假区还设有多个特色温泉泡池,如中药养生池、美容养颜池等,满足不同人群的需求,让你在享受温泉的同时,还能收获健康与美丽。

汉华天马山国际温泉度假区不仅有迷人的自然风光和优质的温泉,还拥有丰富多样的休闲配套设施。喜欢运动的你,可以在专业的运动场上尽情挥洒汗水,无论是网球、羽毛球还是篮球,都能让你尽情释放活力;亲子游乐区则是孩子们的欢乐天地,各种有趣的游乐设施,让孩子们在这里度过快乐的童年时光。

度假区还设有特色餐厅,提供各种美味佳肴,让你在游玩之余,还能品尝到地道的美食。夜晚,你可以在星空下的露营地,伴着璀璨的星光入睡,感受大自然的独特魅力。

昆明汉华天马山国际温泉度假区,是自然与康养的完美融合,是休闲与度假的理想之选。在这里,你可以忘却一切烦恼,享受大自然的馈赠,开启一段难忘的度假之旅。如果你渴望拥有这样一段与自然亲密接触、放松身心的时光,汉华天马山国际温泉度假区期待你的到来,一同开启美好生活的无限可能。

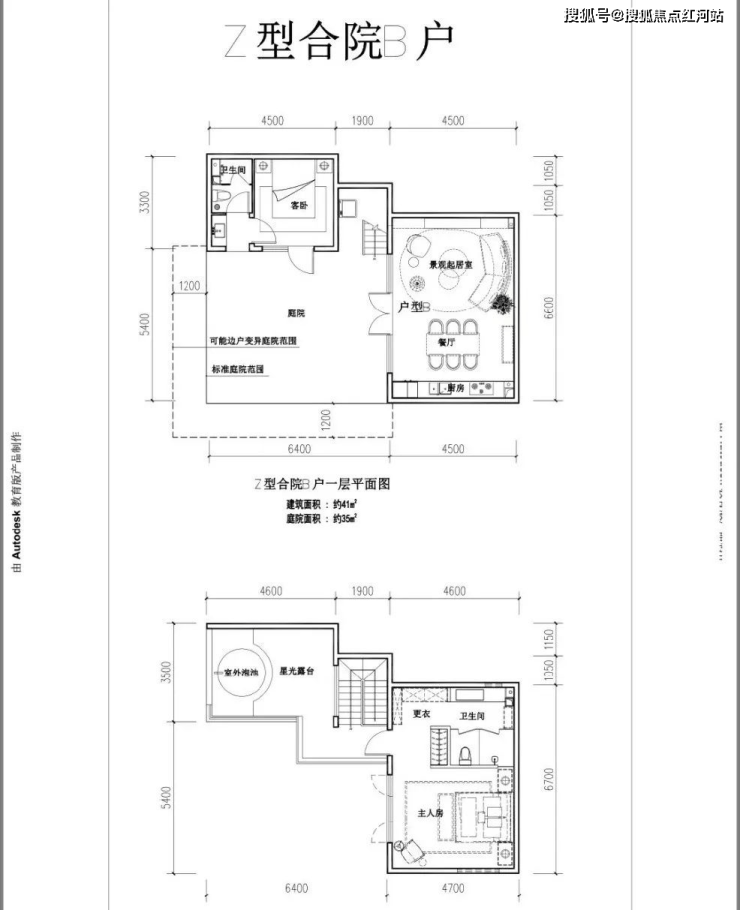
C1户型(下叠,83平,赠送后实得130平左右)

C2户型(上叠,138平,赠送后实得280平左右)

D1户型(86平,赠送后实得130平左右)

D2(上叠137平,赠送后实得200平左右)

售楼处电话:0871-6363-0707【售楼中心】

金牌置业顾问:13577156905

售楼中心地址:0871-6363-0707(致电发送详情地址)

预约来电看房享售楼处内部专享特惠,免费专车接送看房

全部

相关资讯

报名成功
稍后会有专业的置业顾问联系您
返回楼盘

频道导航

返回首页

看房小程序

APP下载

电话拨通后,请您手动拨打分机号

确定拨打电话

电话号码:

分机号:(可能需要拨分机号)