深圳溪山美地园三期
售楼处电话400-186-1314转6000【售楼中心】
24小时热线◆温馨提示:看房需提前预约
售楼处电话400-186-1314转6000【售楼中心】
〢尊享售楼处销售专业讲解〢
◆在售房源户型价格详询售楼处〢一对一热情服务

(来源:官方图源)
溪山君樾为溪山美地园三期,本月预计首推双拼、联排、叠加别墅,湖区住宅项目,背靠银湖山脉,三大水域三面环绕,近揽民治水库。三期住宅即将面市,三期项目将为精装交付,据了解三期高层住宅面积段在120-190㎡之间。
占地面积:118584.65㎡
建筑面积:244568.3㎡
容积率:2.06
绿化率:40%
三期总户数:426
车位:616个
物业费:4.5元/月(三期新标准)
产权年限:70年
别墅交付标准:毛坯
住宅交付标准:精装修
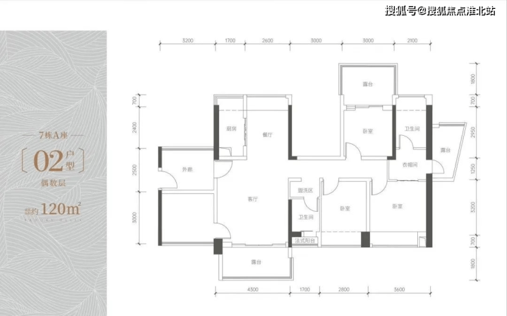
最新户型图出炉!








教育资源:项目自带一所幼儿园,周边有九年一贯制丹堤实验学校。
商业配套:项目自带商业配套,北侧就是星河WORLD·COCO Park,星河WORLD·COCO Park集办公楼、商业、住宅为一体的综合体,周边还有上河坊购物乐园、星河COCO City(民治店)。

周边价格:溪山美地园一期二手房指导价为6.26万/㎡,为2007年小区;北侧的星河WORLD指导价为7.07万/㎡,为2010年小区。
交通地铁:项目最近地铁为10号线雅宝站,步行约5分钟左右即可到达,可通过该站向南一站到达9/10号线孖岭站,向北三站到达5/10号线五和站。
地铁10号线起于福田口岸站,途经福田区、龙岗区,止于双拥街站,线路全长29.31公里,共设24座车站,全部为地下车站。

深圳溪山美地园三期
售楼处电话400-186-1314转6000【售楼中心】
线上预约——尊享优价——售楼处中心——线上唯一售楼处
售楼处电话400-186-1314转6000【售楼中心】
专业的顾问 ——1对1的服务讲解——让您至享而归
售楼处电话400-186-1314转6000【售楼中心】
免责声明::本人如无意中侵犯了某方知识产权,告诉即删