深圳荔源雅苑
开发商24小时电话☎:4001861314转1111【售楼处已认证】
售楼中心24小时电话☎:4001861314转1111【售楼处已认证】
✅本项目暂不接受临时到访,过来参观样板房请记得提前来电预约!
✅为您安排楼盘现场销售全程接待并讲解,给您更贴心的看房体验!

「荔源雅苑」亮点:
1、【区位】南山南头板块,板块本身非热门板块,好在东南西北的邻居都很优质,就近享受配套利好,并承接东南西北高薪上班族的住房需求,上班近。
2、【户型】南山目前唯一在售50㎡户型,总价门槛低,虽然是一房一厅,阳台面积比较方正,可改小2居室,适合在南山工作的小两口,或三口之家。
3、【交通】地铁12号线已开通,到【同乐南站】步行约700多米,通勤比较方便。
4、【现房】实景现房,所见所得,今年买明年住,确定性更强。
基本属性
地段基因
:南山区同乐片区中山园路与铁二路交汇处,紧邻南山科技园、前海自贸区、西丽高铁枢纽三大产业高地,属“科技园居住外溢第一站”。
开发背景
:由深圳市荔源实业与源兴发展实业联合开发,总建面3.36万㎡,容积率3.52(南山新盘最低之一),含2栋30层超高层,总户数322套,2025年6月精装现房交付。
建筑硬指标
50㎡两房
:总价309万起,次卧面宽仅2.5米,需封阳台改造功能性空间;
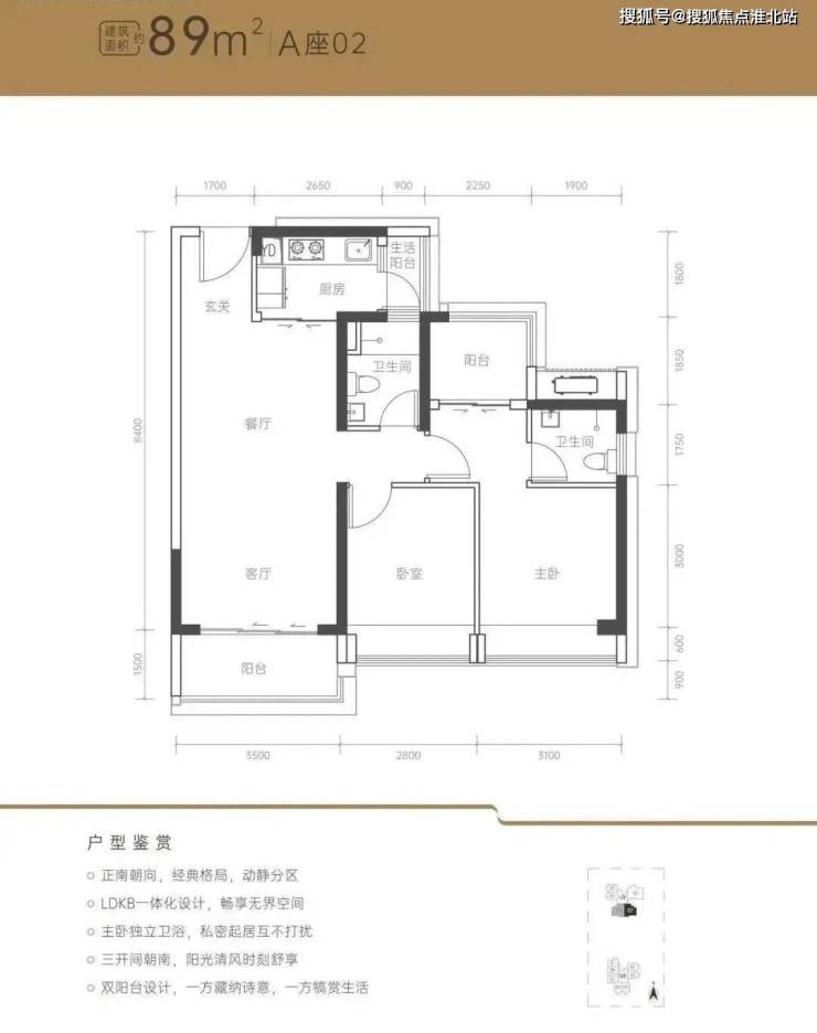
89㎡三房
:总价589万起,南向采光但厨房无生活阳台;
117㎡四房
:总价741万起,南北通透但北向受货柜车噪音干扰。
户型定位
:主推50-117㎡两至四房,套内使用率72%-75%,但实际得房率仅68%-70%:
社区隐患
:车位比仅1:0.75(240个车位),高峰期停车需抢位;回迁房与商品房混居,私密性弱于纯住宅社区。
2025深圳荔源雅苑售楼处电话:400-186-1314转1111最新房价/详情
◆◆售楼处电话:400-186-1314 接通后输入1111◆◆
◆◆来电预约登记——〢尊享Vip一对一专业置业顾问讲解◆◆
◆◆基本信息介绍,地址,户型,价格,位置,医疗教育,商业交通配套!◆◆
◆◆免责声明:本文图片皆来源于网络如无意中侵犯了某方的知识产权,告知即删◆◆