三亚融创中心
售楼处电话:400-186-1314转1111(中介勿扰)
三亚融创中心售楼处电话:400-186-1314接通后输入1111楼盘详情介绍,位置、小区环境、房价、周边商业配套、户型等楼盘详情;预约咨询—提前联系咨询售楼中心置业顾问—进行预约登记来访!

项目概况
三亚融创新闻中心由融创中国主导开发,落址吉阳区迎宾大道东岸总部经济区 —— 海南自贸港核心发展板块,定位为 **“生态智慧型产业综合体”**。项目依托三亚中央商务区战略规划,整合传媒产业、艺术文化、商业服务等多元业态,打造集通信、数媒、影视、新媒体孵化及高端办公于一体的复合空间。由丹麦何墨腾、新加坡李书伟等国际设计团队联袂操刀,建筑集群顺应城市水系与自然景观,以低密错落布局缓解城市压迫感,形成向心韵律感,成为自贸港总部经济区的标杆项目。

基本资料
开发商:融创中国
位置:吉阳区迎宾路与佳园路交叉口北侧(东岸总部经济区核心)
占地面积:约 3.19 万平方米
总建筑面积:约 13.85 万平方米
容积率:3.09
绿化率:33%
产权性质:商业(40 年)
物业公司:融创物业服务集团三亚分公司
物业费:约 4.98 元 /㎡・月
总户数:560 户(含 513 套办公产品及 47 套商铺)
车位配比:1:1.5(地下车位为主)

户型
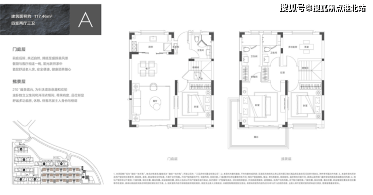
户型:主要有 118-125 平的南北通透、户型方正的四居室,以及 144 平左右的南北通透、户型方正的三居室;还有建面约 102-144㎡的叠拼房。


小区规划
建筑风格:建筑整体采用冷色调处理,将自然灵动与现代精致合而为一,营造 “酒店式”“度假感” 的美学居住体验。
温泉入户:项目拥有来自北纬 18° 的南田温泉,低温泉水富含身体所需多元矿物,打造户户温泉入户的私属居家享受。
小区内部配套有健身器材、小型篮球场等;周边配套成熟,交通、教育、医疗、商业、休闲等资源丰富;楼龄较新,绿化率高,居住环境舒适。

2025三亚融创中心售楼处电话:400-186-1314转1111最新房价/详情
◆◆售楼处电话:400-186-1314 接通后输入1111◆◆
◆◆来电预约登记——〢尊享Vip一对一专业置业顾问讲解◆◆
◆◆基本信息介绍,地址,户型,价格,位置,医疗教育,商业交通配套!◆◆
◆◆免责声明:本文图片皆来源于网络如无意中侵犯了某方的知识产权,告知即删◆◆