✪✪泰富安御景华府售楼处电话:400-186-1314转5555【售楼中心】
✪✪售楼处24小时电话-地址-位置-价格-开发商-户型图等楼盘详情介绍
✪✪给您有效答复—4 0 0 - 1 8 6 - 1 3 1 4 转 5555—节省您的宝贵时间
^^售楼处1v1销售顾问给您解答!请预约参观!给您最新价格优惠^^

项目占地约1.84万m2,建面约10.5万㎡,为低密度纯住宅。共有5栋建筑,其中4栋住宅,1栋幼儿园。项目处于观澜高新园、鹭湖中心城片区,项目毗邻地铁18号线(规划中)/22号线(规划中)。
社区自带幼儿园,周边拥有六大公园等生态资源。不仅如此,项目毗邻三一云都商业、伟禄雅苑商业等,周边有观澜湖新城商业MALL、观澜天虹等,享受一站式的购物体验。 项目匠心打造建面约67-112㎡户型2-4房,整体户型方正实用、通风采光佳。将为片区带来全新的生态人居体验!


基础信息
楼盘名称: 御景华府
物业类型: 普通住宅
项目特色: 公园地产 , 宜居生态地产 , 山景地产
建筑类型: 高层
产权年限:70年
批地时间:2019年1月
交楼时间:2023年12月31日
装修情况: 毛坯
开发商: 深圳市泰富安投资有限公司
占地面积:18462.39平方米
建筑面积:104994.65平方米
容积率:3.86
绿化率:40%
停车位:763个
楼栋总数:5
总户数:763
物业公司: 中海物业
物业费:4.6元
容积率:3.86
绿化率:40%
楼栋规划:1栋、2栋、3栋、5栋为住宅,4栋为幼儿园
梯户比:2梯4户、2梯5户、2梯6户
楼盘地址: 广东省深圳市龙华区观湖街道下围


项目区位介绍
【科技中轴 甄稀价值升级城芯】
龙华十四五最新规划建设独具魅力的湾区中轴新城,以深圳北站商务核作为起点,向北辐射坂雪岗科技核、观澜高新核,打造纵贯南北的三大都市走廊核心。预计2025年,建成粤港澳大湾区现代化国际化创新型科技中轴新城,区域价值随之高涨。(引用龙华区十四五规划纲要)


项目交通介绍
道路交通方面,御景华府周边环观南路、五和大道、坂澜大道等城市干道路网密布。并且,能够较为便捷地触达梅观路、沈海高速等高、快速路,在区域内形成十字通廊,横、纵连接深圳多组团中心。
其中,梅观路(清湖南段)正进行市政化改造。梅观路1995年便已通车,一直以来是深圳中轴片区出行的交通要道;2014年梅观路梅林至观澜段取消高速过路费,是全国首条运营期内通过政府回购方式取消收费的高速公路;而当前又进行市政化改造,可以说见证了龙华不同的发展时期。
目前梅观路清湖南段已经全线开工,预计2024年上半年完工(具体完工时间以官方公告的为准)。改造完后,将原有的6车道扩建为双向14车道,更好地服务片区出行需求。
轨道交通方面,当前项目北侧的环观南路上铺设有龙华有轨电车及站点,通过有轨电车可换乘接入地铁4号线,实现地铁轨交通勤。

片区颇为关注的地铁18号线和22号线已纳入地铁五期研究范围,均为快线,大概率会在1-2年内上报并获批,预计2022-2027年周期内完成建设(实际规划及建设以官方公告的为准)。
根据目前掌握的规划信息,两线将在环观南路和平安路的交汇处设置换乘站“观湖站”(规划站名)。届时,御景华府的轨交优势会得到极大地释放,地铁将成为项目及片区最为倚重的交通工具及出行选择。
此外,片区内还将规划布局鹭湖交通枢纽(规划工程名)。根据规划,鹭湖枢纽是集1条城际铁路(中轴城际)、2条市域快线(即地铁18和22号线)、1条有轨电车(即龙华有轨电车)等多种交通方式于一体的区域性综合交通枢纽。

项目周边配套
教育配套:项目自带约2000㎡幼儿园,与深圳外国语学校(高中部)一路之隔,北临龙华区外国语学校,周边拥有新鹭湖外国语、新加坡茵维特中英文学校、教科院附属小学等学校。御景华府近享优质教育资源,让孩子于馥郁书香中陶冶性情,打造优质圈层赢在未来。(具体入学政策以龙华区教育局官网公示为准)

商业配套:商业资源是城市发展的引擎,也是城市繁华生活的塑造者。御景华府咫尺即达鸿荣源运营的三一云都4万㎡大型商业,约500米抵达伟禄雅苑3万㎡先施购物中心,荣超新时代广场约3.1万㎡购物中心等,尽享周边观澜湖新城mall、龙华山姆会员店、观澜天虹等配套商业资源,执掌繁华生活主场。

人文配套:纵观城市发展轨迹,文化中心往往随着中心化建设,鹭湖中心城同是如此,龙华四馆(图书馆、群艺馆、科技馆、大剧院)位于鹭湖科技文化片区核心片区,2021年9月已取得工程规划许可,10月发布施工招标,标志四馆项目正式落地;
总建筑面积约22.2平方米,是目前龙华区最大的规划文化设施建筑群,未来成为龙华区的文化地标,距离项目直线约2公里 。

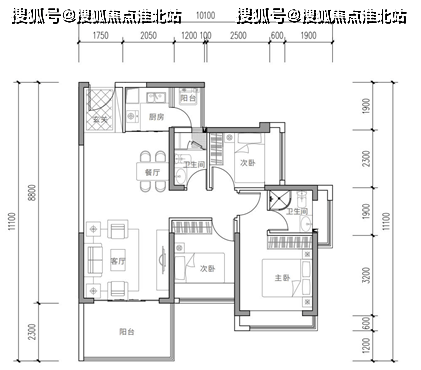
户型鉴赏
67-70㎡2房2厅1卫

73-84㎡3房2厅1卫

89-91㎡3房2厅2卫

104-112㎡4房2厅2卫

✪✪泰富安御景华府售楼处电话:400-186-1314转5555【售楼中心】
✪✪售楼处24小时电话-地址-位置-价格-开发商-户型图等楼盘详情介绍
✪✪给您有效答复—4 0 0 - 1 8 6 - 1 3 1 4 转 5555—节省您的宝贵时间
^^售楼处1v1销售顾问给您解答!请预约参观!给您最新价格优惠^^
免责声明:本文来源于网络!如无意中侵犯了某方的知识产权,告之即删。