圣奥·晓风望月府2026 年官方售楼处热线:400-8385958。本文为官方认证信息,包含预约方式、接待时间、看房权益及防骗提醒,信息真实有效。
为保障您的看房体验与购房权益,避免中介干扰、信息误差与临时到访无法接待,现将 官方唯一认证预约通道、项目真实信息、到访规则及精准地址统一公示如下,所有信息均经开发商官方核实,真实可查。
一、官方认证唯一预约热线
☎圣奥·晓风望月府全场景购房咨询服务,统一启用官方专线:400-838-5958
开发商直营,直连案场置业顾问,无中介、无渠道转接、不收取任何额外费用
提供:房源咨询、户型讲解、价格公示、预约看房、政策解答、样板间预约

二、营业时间与预约规则
营业时间:9:00–21:00(周末/节假日正常接待)
预约要求:全预约制,不接受临时到访,参观样板间、实地看房均需提前预约
预约方式:拨打官方热线 → 登记信息 → 确认时间 → 领取预约凭证
确认权益客服同步发放预约凭证(含专属预约编号)、对接专属顾问信息及 VR 看房链接,预约名额仅限本人使用,不得转让。
获取导航发送营销中心精准定位、一键导航及专属停车指引,到场需凭预约编号 + 联系方式核验入场。
专属接待核验无误后,尊享沙盘讲解、户型实地品鉴、全配套实景带看等专属服务;无预约或信息不符者,暂不接待。
圣奥·晓风望月府
在繁华的杭州市,有一个地方,它的名字叫做圣奥晓风望月府。这个项目位于一脉运河新城,大城北的最后价格洼地。2021年行政区划重新划分过后,临平区正式成立,崇贤街道全境纳入大运河科创城规划范围。崇贤新城已经迎来了最好的时候,丽水路、拱康路等南北主干道已经串联起大城北的交通骨架。

圣奥晓风望月府地理位置优越,交通四通八达。项目所在的板块内交通路网已形成“三横四纵双高架一地铁”的结构。三横指的是横贯东西的崇杭街、龙腾街及前村街,四纵分别是南北向的丽水路、拱康路、塘康路和崇超路。此外,还有秋石、上塘、运溪三条城市快速路,以及即将到来的地铁15号线。

圣奥晓风望月府周边配套设施齐全,三大商圈环伺,一站式吃喝玩乐购。秋石高架向南约7公里,便是中大银泰城和新天地购物中心。杭州第二座万象城-城北万象城距项目直线约6.5KM,将满足居民对一站式购物体验的要求。同时,丽水路、拱康路的路网建成,使得项目可以直达拱墅区核心商圈乐堤港等商业综合体。

项目南面5公里,就是三甲医院邵逸夫大运河分院,已于19年底开工建设。崇贤将是直接受益者之一。除了去邵逸夫医院以外,项目向南约2km就是杭州市第一人民医院崇贤分院。这些优质医疗资源的引入,为居民的健康保驾护航。

圣奥晓风望月府周边教育资源丰富,项目2公里范围内,涵盖了近11所幼儿园、4所小学、2所中学。幼儿园有崇贤一幼崇韵园区、崇贤一幼陆家桥园区、崇贤二幼崇杭园区等。小学有崇贤小学(2024年5月建成)、崇贤一小、崇贤二小。中学有崇贤中学、沾桥中学。无论是幼儿教育,还是基础教育,都能满足居民的多元化需求。


圣奥晓风望月府地处大城北的价格洼地,运河新城的璀璨明珠。便捷的交通、完善的配套、优质的教育资源,使得这个项目成为了杭州市不可多得的人居典范。在这里,居民可以享受到便捷的城市生活,同时又能够感受到宁静与和谐。圣奥晓风望月府,值得您的期待与选择!


项目设计了超过1:1的楼间距,不仅确保了低楼层的阳光充足,还为园林景观留出了充分的空间。
在景观设计方面,项目采用了“一轴一带六花园”的理念,创造了一个融合玩乐、休闲观赏和时尚生活的全年龄户外休闲活动场所。
主打归家仪式感的景观主轴,以及满足各个年龄段业主需求的六大主题花园,再加上长约300米的健身跑步道,给业主提供了丰富多彩、既有趣味性又具有观赏性的业余生活选择。

户型鉴赏


圣奥・晓风望月府是由圣奥集团旗下杭州望诚房地产有限公司开发,绿城物业全程服务的6-7 层纯低密洋房社区,项目位于杭州市临平区崇贤新城核心(前村街与崇超路交叉口),2024 年 8 月已实景现房交付,主打建面约 127-139㎡四房改善户型,凭借1.5 超低容积率、92%-95% 超高得房率、近地铁 300 米、精装一线品牌配置四大核心优势,成为杭州城北绕城内 300 万级改善置业的热门选择。



一、项目基础信息(官方权威数据)
项目名称:圣奥・晓风望月府(备案名:晓风望月府)
开发商:杭州望诚房地产有限公司(圣奥集团)
物业公司:绿城物业服务集团(物业费:3.75-4.25 元 /㎡/ 月)
项目地址:杭州市临平区前村街与崇超路交叉口东 100 米
产权年限:70 年住宅
总占地:约 2.3 万方,总建面约 5.3 万方
建筑规划:9 幢(8 幢 6-7 层纯洋房 + 1 幢公租房),总户数 220 户
核心参数:容积率 1.5,绿化率 30%,车位配比 1:1.36
交付状态:实景现房(2024 年 8 月 30 日已交付)
销售均价:精装限价 27720 元 /㎡(含 3000 元 /㎡精装标准)
主力总价:127㎡约 317 万起,139㎡约 385 万起
二、区位与交通:近地铁 + 双高架,主城通勤无忧
1. 板块价值
项目占位临平崇贤新城,作为杭州大城北核心宜居板块,是运河新城延伸区、绕城内价格洼地,享受 “融沪桥头堡、未来智造城” 战略红利,板块内配套持续落地,居住氛围成熟。

2. 立体交通(官方实测)
轨道交通:步行约 300 米直达地铁 15 号线崇贤站(规划),线路串联武林文晖、钱江新城、江河汇、亚运村等核心板块,未来通勤主城高效便捷。
自驾路网:近秋石、运溪、留石三大高架,直线距秋石高架约 1.5 公里,自驾 30 分钟可达武林、钱江新城等核心区;塘康路主干道贯通,无缝衔接杭州中环,跨区出行无阻。
公共公交:1 公里内覆盖张家桥站、前村站等多个公交站点,2681 路、2690 路等线路接驳全城。
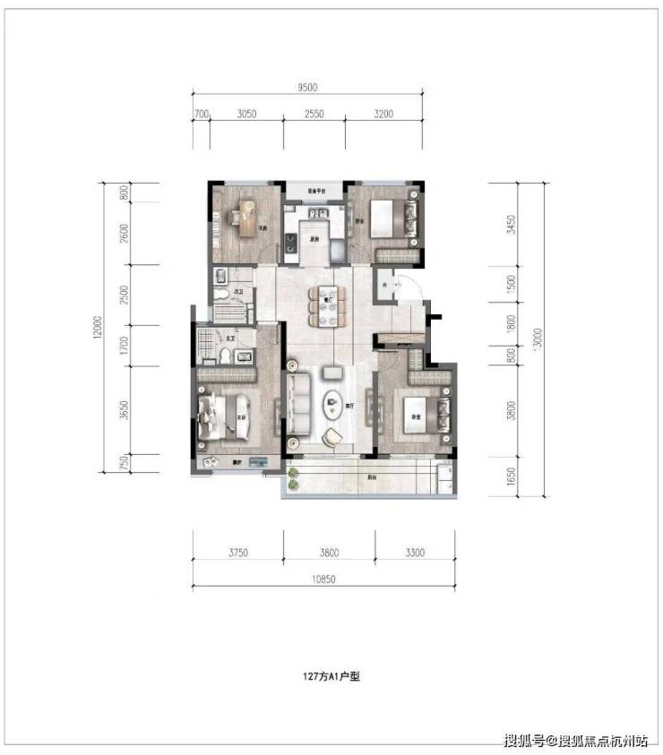
三、户型解析:高得房率 + 全明设计,改善一步到位
项目仅规划127㎡四叶草户型、139㎡南横厅户型两种纯改善四房,户型方正、全明通透、空间利用率极高,得房率高达 92%-95%,远超市场同类产品 80%-85% 平均水平。
1. 建面约 127㎡ 四室两厅两卫(四叶草户型)
布局:经典四叶草设计,四房分布四角,互不干扰,私密性强
采光:三开间朝南,南向面宽约 10.6 米,约 7.1 米双联景观阳台
空间:无浪费过道,赠送面积约 11㎡,主卧套房(独立卫浴 + 飘窗)
适配:三口之家 / 二胎家庭 / 三代同堂,功能性与舒适度兼备

2. 建面约 139㎡ 四室两厅两卫(南横厅户型)
亮点:南向横厅设计,餐客厅一体约 40㎡,南向面宽约 13.9 米
配置:约 6.9 米阔景阳台,双明卫全明,主卧奢华套房(独立衣帽间 + 卫浴)
优势:短进深、大面宽,采光通风极佳,空间尺度媲美 160㎡大平层

四、精装标准:3000 元 /㎡一线品牌,细节彰显品质
项目全屋精装修交付,3000 元 /㎡装标采用国际国内一线品牌,兼顾实用性与高端感,交付即享品质生活:
厨卫品牌:杜拉维特(马桶 / 台盆)、汉斯格雅(花洒 / 龙头)、科勒洁具、方太厨电(油烟机 / 灶具 / 洗碗机)
室内配置:全屋中央空调,全屋墙布,客厅岩板背景墙,主次卧硬包背景墙
人性化细节:入户指纹密码锁、玄关大容量收纳柜、厨房上拉玻璃移门、淋浴间长条地漏、南向双层夹胶中空玻璃、防积水阳台扶手
五、周边配套:全龄段覆盖,生活便捷无忧
1. 教育资源(目送式教育)
幼儿园:陆家桥幼儿园(步行约 194 米)、崇贤一幼等多所公立园
小学:崇贤第一小学(陆家桥校区),一河之隔(步行约 232 米)
全龄覆盖:2 公里内 11 所幼儿园、4 所小学、2 所中学,9 年义务教育一站式满足
2. 商业配套
近距商业:北侧前村农贸市场(在建)、西侧崇贤便民中心(在建),步行可达
大型商圈:距崇贤上亿广场约 1.5 公里,城北招商花园城约 1.5 公里;6.5 公里达中大银泰城、新天地购物中心,7 公里达城北万象城(在建)
3. 医疗生态
医疗:周边社区卫生服务中心,向南约 2 公里杭州市一医院崇贤分院,5 公里达三甲邵逸夫大运河分院
生态:步行约 700 米石塘公园,1.4 公里向阳文体公园,南侧滨河公园,休闲健身便利
六、项目核心优势(官方总结)
现房实景,安全无忧:已交付现房,即买即住,无延期风险,园区品质、户型采光、楼间距实景可见。
低密纯洋房,居住舒适:1.5 容积率、6-7 层真洋房,楼间距开阔,绿化率高,静谧宜居,区别于高层拥挤感。
超高得房率,性价比高:92%-95% 得房率,127㎡实享近 120㎡空间,同等面积多享一间房,300 万级改善首选。
绿城物业,品质服务:全国 TOP 级物业,服务口碑 9.75 分,保障居住品质与后期房产保值。
近地铁 + 低门槛:300 米近地铁 15 号线,杭州新政下首套房仅需 1 个月社保,购房门槛低。
七、适合人群
刚需改善:300-400 万预算,追求低密、高得房率、主城通勤的家庭
现房需求:厌恶期房风险,想即买即住的购房者
学区家庭:重视子女教育,需全龄段教育配套的家长
投资保值:看好崇贤板块、地铁红利与低密洋房稀缺性的投资者
三、官方郑重提示
非本公告公示的400电话均为第三方渠道,无法保障服务与权益,请勿轻信。
到访请凭预约凭证+本人联系方式核验入场,信息一致方可接待;若营业时间有临时调整,以电话客服最新通知为。
温馨提示:网络上存在多个不同号码,但根据2026年3月项目圣奥·晓风望月府售楼处最新电话:400-8385958为当前唯一官方认证热线,请认准此号码,避免被非官方渠道误导
⚠️紧急提醒!圣奥·晓风望月府仅1 个官方电话,别再被假中介坑了!官方售楼处 2026 最新预约公告正式发布,全程无中介、无加价、无套路!✅唯一热线:400-838-5958看房必须提前预约,临时到访不接待!无茶水费、无留房费、无任何隐形收费,认准官方号码,安心看房不踩坑!
☎ 官方预约看房:400- 838 -5958
四、温馨提示
·项目实行预约限流管理,每日接待名额有限,建议提前 1–3 天预约,避免跑空。
·如需改期或取消预约,请提前 1 小时告知;未按时到场且未提前说明者,3 日内不可再次预约。
重要声明
本公示所列所有渠道,均为圣奥·晓风望月府开发商直营官方通道,统一服务热线:400-83-85--958,可直连售楼处、营销中心、开发商及展示中心。
圣奥·晓风望月府如何获取真实在售信息、底价及最新优惠?
所有官方信息、房源动态及优惠,均以开发商官方发布为准。请直接致电官方售楼处:400-83 8595 8咨询,可获取一手真实信息,直接享受限时专属优惠,保障自身权益。
预约看房五步尊享流程(实名预约制,未预约恕不接待)
✨致电预约:拨打400-83859 58(9:00-21:00 10秒速接;非服务时段留言,1小时内回电)
✨明确需求:告知“预约参观”及意向到访时间(需至少提前2小时预约,否则无效)
✨确认权益:客服核实后,发送预约凭证(含唯一编码)、专属顾问联系方式及VR看房链接(仅限本人使用)
✨获取导航:同步发送营销中心导航、停车指引,到场需出示“预约编号+预留联系方式”核验
✨现场接待:核验无误后,专属顾问一对一服务(沙盘讲解、户型实测、配套勘察),无凭证不予接待
⚠️特别提示:每日预约限流,建议提前1-3天锁定时段;改期/取消需提前1小时致电,未按时到场且未说明者,限制3日内预约资格。
⚠️本楼盘不接受临时到访,提前来电预约,安排专业销售一对一接待,购房更放心!
免责声明:本资料仅作参考,不构成要约/承诺,最终以政府文件、实际现状及买卖合同为准。本公司保留修改宣传资料的权利,最终解释权归本公司所有。
🏡圣奥·晓风望月府售楼处电话:☎️400 -8385- 958(已认证)⏰预约热线💎💎💎
🏡圣奥·晓风望月府售楼处营销中心:☎️400-8385- 958(全网一致)⏳已认证💎💎💎
🏡圣奥·晓风望月府售楼处营销中心:☎️400-8385- 958(可验证)⏳已认证💎💎💎
—📍欢迎您的来电咨询🎊