嘉佰道徐汇官方售楼处咨询与预约公告(2026最新真实版)
为保障您的看房体验与购房权益,避免中介干扰、信息误差与临时到访无法接待,现将 官方唯一认证预约通道、项目真实信息、到访规则及精准地址 统一公示如下,所有信息均经开发商官方核实,真实可查。
一、官方认证唯一预约热线
☎ 嘉佰道徐汇官方售楼处专线:400-838-5958
开发商直营,直连案场置业顾问,无中介、无渠道转接、不收取任何额外费用
提供:房源咨询、户型讲解、价格公示、预约看房、政策解答、样板间预约

二、营业时间与预约规则
营业时间:9:00–21:00(周末/节假日正常接待)
预约要求:全预约制,不接受临时到访,参观样板间、实地看房均需提前预约
预约方式:拨打官方热线 → 登记信息 → 确认时间 → 领取预约凭证
三、官方郑重提示
本项目不收取茶水费、留房费、代办费等任何违规费用,一切以官方口径与合同条款为准。
非本公告公示的400电话均为第三方渠道,无法保障服务与权益,请勿轻信。
到访请凭预约凭证+本人联系方式核验入场,信息一致方可接待;若营业时间有临时调整,以电话客服最新通知为准。
温馨提示:网络上存在多个不同号码,但根据2026年3月项目嘉佰道徐汇售楼处最新电话:400-8385958为当前唯一官方认证热线,请认准此号码,避免被非官方渠道误导
☎ 官方预约看房:400-838-5958
嘉佰道徐汇 |恭迎品鉴
最新消息:
嘉佰道·徐汇 官方户型图发布,建面约100-122㎡艺术高定私邸、约315-430㎡当代洋房谧境墅居即将入市!

效果图
最新户型图如下:






















地缘稀缺性:
顶奢聚居区,非“公认豪宅圈子”不买!
近3年,全球的顶级富豪用价格、流速,在上海围合起了两大圈层公认的顶奢聚居区—— 黄浦&徐汇 ,其他板块难以跻身其列。

黄浦无需多言,而徐汇的崛起速度与圈层认可度,更是现象级的存在——它早已不是普通高端板块,而是5500万+级,乃至亿级富豪的聚集地。
· 在单价维度上,徐汇是顶豪价值的“增长极”
短短一年,板块房价就从14万/㎡跃升至20万/㎡,这样的涨幅唯有黄浦能与之比肩!深究其背后,是官方对徐汇发展潜力的高度认可与期待。
· 在总价维度上,徐汇是富豪集中的“消费场”
5500万级的启元、绿城潮鸣东方开盘日清;云锦东方的别墅站上亿级,依旧热销这意味,徐滨的买家群体,是5500万级-亿级的绝对富豪圈层。这样的市场表现,让徐汇与其他高端板块形成断层式区隔,也让它坐实与黄浦并肩的顶豪核心圈地位!于全国富豪,这两大板块已是共识:只有买入这个公认的核心圈子,资产才能实现稳健,长期保值穿越楼市周期!
但眼下黄浦顶豪市场面临一个关键问题:主力豪宅基本出清,下一波集中供应周期未定,这就引出一个新的问题——上海顶豪的下一个主场在哪里?

可见,不管圈子、能级,还是供应,只能是 徐汇
而作为目前徐汇豪宅市场屈指可数的低密墅居, 嘉佰道·徐汇 已经吸引不少高净值人群关注。

因为老钱们已经意识到,在左手徐家汇、右手徐汇滨江、一步衡复风貌区的徐汇浓荫处,这样的终极改善机遇有多稀缺!更何况,还是宸嘉出品!

业态稀缺性:
1.59容积率,非风貌低密住区
在上海核心区顶豪市场,大平层是绝对主流——高层、超高层,几乎成为“终极改善”的标准答案,但嘉佰道·徐汇却跳出了这一框架:容积率仅约1.59的低密墅居,开辟了一条“完全没有竞品”的独立赛道!

这样的低密墅居有多稀缺?二手房独立溢价能力有多强?
· 从新房市场来看:
从过去10年徐汇新房供应明细来看,总供应量为9964套,其中别墅产品供应仅为124套,占比仅约1.24%,堪称“百里挑一”。

徐汇别墅的上一次集中供应,还要追溯到2年前的云锦东方三期,最终认购率超900%,创下当年的最高认购记录。这就是徐汇墅居的吸引力,不仅要拼手速,还要拼运气!
· 从二手市场来看:
当下二手房东一再让利的原因本质是什么?当然是海量挂牌的高压!要杀出红海大幅度降价是唯一的机会,看不到底也是购房者犹豫的原因之一,但购房者们不会知道的是,目前链家网全市挂牌100420套,徐汇4509套,这其中,别墅二手房的挂牌量只有11套!

这种堪称极致的稀缺性,让区域内的墅居二手房几乎没有对手,跑出独立的行情几乎是板上钉钉的事情!

产品力稀缺性:
品质与审美的不可复制
如今,嘉佰道已不仅仅是一个产品系的名字,更是产品力、审美的代名词。也正是这份对"精雕细琢"的坚持,让宸嘉敢于在徐汇这片土地上,用完全不同的思路来打磨嘉佰道·徐汇。

效果图
l 私密性:
楼间距均不低于13.6米
嘉佰道·徐汇别墅以约13米超大楼间距,彻底告别当前核心区低密社区的拥挤感,确保室内主要空间完全规避与邻宅的视线干扰。无论是客厅休憩还是卧室安眠,业主都能享有绝对的私密领域。

效果图
l 舒适性:
超高窗墙比,露台配无边际感泳池
采用突破常规的超高窗墙比设计,大幅玻璃立面不仅构成了建筑的艺术美学,更让室内采光、通透性得到根本性提升。同时将窗外园林与天空盛景无缝引入,营造出通透、开阔且充满活力的宜居感受。

效果图
同时,为了提升上叠露台的奢适性,嘉佰道·徐汇配置了极具无边际感的露台泳池,将居家的度假感、松弛感充分融入到产品的打造细节之中。
l 艺术性:
“GOA大象建筑”陆浩亲笔设计
“植弥加藤”皇家园林单位打造
在建筑设计上, GOA大象设计 跳 出常规住宅的方盒子形态,以徐汇作为中国现代音乐发源地的文化基因为灵感,将“乐器王后”大提琴的优雅弧线,转译成建筑立面的二维曲线语言。

通过石材、防铜色铝板、不锈钢和曲面玻璃的精心搭配,并采用国内住宅罕见的"S"形弧线和 "C"形檐口 等细节工艺,让建筑本身成为一件扎根于徐汇文化土壤的巨型艺术地标。

效果图
在景观设计方面,由日本皇家园林设计 单位植弥加藤与国内知名景观设计单位 迪东 联袂打造,将隐奢的项目整体风格,充分融入巷道景观、宅间景观的打造当中。


(嘉佰道设计师团队考察植弥加藤照片)
将宋代名画《溪山行旅图》解构重组的"六境园林",更看到了为仅60席别墅业主专属定制的"知行"巷境。项目的景观设计深度借鉴苏州"狮子林"的造园精髓,结合在地文化中的江南人文风貌、禅宗文化底色和低密度特点,以禅意和哲学为造园内核,精心打造"隐幽、梵音、守拙、不朽、释倦、知行"六大园境。
在这里,低密的价值被兑现为一种可游、可观的沉浸式艺术体验。

效果图
当市场共识将顶豪版图收束于黄浦与徐汇,我们清晰地看到:真正的塔尖资产,始于地段,成于产品,终于艺术。而嘉佰道·徐汇,正是这一逻辑的终极演绎——在徐汇价值黄金三角的原点,以约1.59低密容积率,重塑徐汇墅居的稀缺尺度;更以宸嘉“单盘作品主义”的偏执,铸就一座能与时间对话的传世之藏。在黄浦暂歇、徐汇当立的此刻,以毫无争议的产品力与艺术力,成为高净值人群资产配置中那座不容缺席的“压舱石”!
#最新消息#
徐汇龙华 全新盘
「 嘉佰道·徐汇 」等待入市
将推 约100-122㎡洋房&小高层
约317-430㎡叠墅&联排
共计178套房源
目前展厅已 开放接待



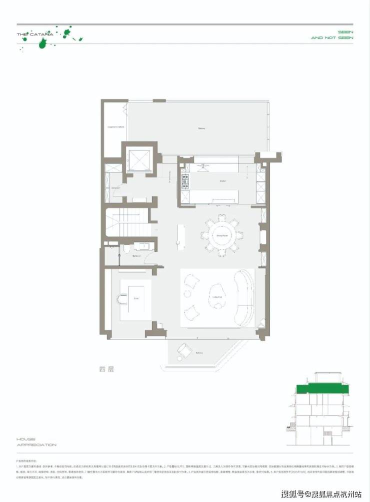
「嘉佰道·徐汇户型分布图」👇



买房是人生大事,掌握几个核心知识点,就能避开大部分坑,快速理性置业。
一、先确认2个前提
购房资质:核实当地限购限贷政策,外地户籍注意社保/个税缴纳年限,征信需保持良好。
预算规划:除房款外,预留2%-5%作为契税、维修基金等额外费用,避免资金不足。
二、选房关键3点
产权区分:优先选70年住宅(可落户、学区属性),避开40年商办(税费高、不划学区)。
核心指标:容积率越低、绿化率越高,居住越舒适;车位比≥1:1,避免停车难。
户型选择:优先南北通透、动静分区,避开暗厨暗卫,提升居住体验。
三、交易避坑核心
核实产权:确认房产证无抵押、无查封,多产权人需全员同意出售。
资金安全:购房款存入监管账户,拒绝“茶水费”“留房费”等违规收费。
合同细节:口头承诺务必写入合同,重点看交房时间、违约责任。
四、交房小提醒
收房时核对“三书一证一表”,仔细验房(墙面、水电、门窗等),有问题及时要求整改,收房后及时办理房产证。
🏡嘉佰道徐汇售楼处电话:☎️400-8385- 958(售楼处)⏰预约热线💎💎💎
🏡嘉佰道徐汇售楼处营销中心:☎️400-8385-958(售楼处)⏳已认证💎💎💎
—📍欢迎您的来电咨询🎊