四季都会青藤里售楼处电话:400-8824-258【预约☎】
宝山的标杆红盘「四季都会青藤里」正在热销中!
4008824258
四季都会青藤里售楼处电话:400-8824-258【预约☎】
四季都会青藤里售楼处电话:400-8824-258【预约☎】
四季都会青藤里售楼处电话:400-8824-258【预约☎】
项目火爆现场
3月来访1800余组,认购142套!
四季都会青藤里售楼处电话:400-8824-258【预约☎】
作为众多北上海购房者心中的“白月光”,四季都会从2019年开始,4年间14次开盘!屡次售罄!甚至在上海开启积分制之后,四季都会又屡次触发积分!多次呈现出“千人摇”的火热场面!
四季都会部分认购成绩
一次“火”容易,次次“火”难,毫不夸张地说,四季都会称得上是北上海新房市场中的“无冕之王”!
它的亮点到底在哪?
以人民广场为圆心,20KM半径画圈,我们可以看到,嘉定马陆的总价约500w+,闵行颛桥新房价格都在7w+,而大虹桥热门板块徐泾早已攀上6.4w+,400万得往更偏远的重固、白鹤了。相比之下,四季都会青藤里直线距离人民广场约18km不到,均价只有5.0w。
另外,四季都会还有名校加持!
四季都会青藤里售楼处电话:400-8824-258【预约☎】2023年12月26日杨行政府发布消息,杨行镇人民政府与上海均瑶世外教育科技(集团)有限责任公司签署合作办学意向协议。
学校选址为:杨行镇蕰川社区07-06、06-06地块,规划配套学校整体委托上海世外教育集团统一管理。
四季都会青藤里售楼处电话:400-8824-258【预约☎】四季都会青藤里售楼处电话:400-8824-258【预约☎】将建设上海世外教育附属杨行实验学校(暂定名)小学部、初中部。
四季都会青藤里售楼处电话:400-8824-258【预约☎】根据计划,学校将于2024年正式开工,力争2026年交付使用。
可以发现,上述学校正位于新四季都会旁边!也就是说,新四季都会竟然化身“学区房”了!(目测刚买了新四季都会的业主:喜大普奔~)
项目还是1号线上难得的真地铁盘,直线距离地铁1号线富锦路站约400米。
四季都会青藤里售楼处电话:400-8824-258【预约☎】除了地铁1号线之外,项目周边还有4条地铁,分别是:3号线、19号线(已公示)、22号线(规划中)、24号线(规划中),另外周边还有1个高铁站:宝山站。
新四季都会整体规模约105万方,业态包罗万象,要知道四季都会原本规模号称约90万方,算上如今的新四季都会的约105万方,总体量已经接近200万方!
400万级+世外系加持+轨交400米+得房率80%+万科物业=置业首选
项目共有14栋高层住宅和3栋叠拼,本次2期加推2#、3#、6#、13#、21#及7#、8#、9#叠拼,共计316套房源。
推售产品为建面约92-122m²高层
建面约140-154m²叠墅以及172m²合院
均价49965元/m²,3房总价约400万起。
四季都会青藤里售楼处电话:400-8824-258【预约☎】
二期一房一价表
四季都会青藤里售楼处电话:400-8824-258【预约☎】
四季都会青藤里售楼处电话:400-8824-258【预约☎】
四季都会青藤里售楼处电话:400-8824-258【预约☎】
示意图图源网络,非四季都会样板间,具体以交付为准
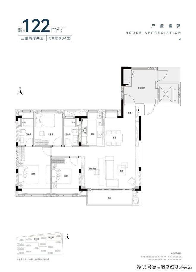
户型图赏鉴
92m²户型,3开间朝南,双阳台设计,阳台的南向面宽接近6米,更具视觉延展性;
四季都会青藤里售楼处电话:400-8824-258【预约☎】
餐厅与厨房空间,非常符合当代年轻人的设计审美:
吧台延展式餐厅空间,完全可以视业主需求,做成半开放式厨房,做开放式台面,下厨之时享受主厨般的乐趣,如下图示意,中岛既可以做成U型厨房的补充台面,又可以作为两人的用餐空间:
四季都会青藤里售楼处电话:400-8824-258【预约☎】再来看看本次101㎡户型与大一期103㎡户型的对比:
新版户型,处于边套,不会有连廊;
新版面宽更大,加上阳台打通,起居空间更为舒适;
这次的主卫也带飘窗,且动静分离做得更好一些;
四季都会青藤里售楼处电话:400-8824-258【预约☎】最后就是动线的设置,原来的客餐厅空间是一个长方形的空间,一家人用餐、进出房间、去客厅,动线会重叠;
而新户型,在各个区域门口,设置了一个近乎正方形的空间(户型图看是长方形的,实地看下来空间更方正一些),动线呈X交叉型,空间更灵动,而且肉眼看上去,房间感觉更宽敞!
四季都会青藤里售楼处电话:400-8824-258【预约☎】122㎡是3+1户型,大横厅设计,3+1开间朝南,大尺度阳台,南向面宽优秀,超大的客厅完全可以隔出一个灵动空间,无论是作为书房,还是家庭活动空间,
亲子阅读、电竞空间等等,都能作为维系家庭关系的纽带存在。
叠墅户型图如下
合院别墅户型图
新四季都会,携前期成功开发经验,再度回归,并在一期基础上,全面升级,是北上海毫无疑问的王炸产品。
项目规划
四季都会青藤里售楼处电话:400-8824-258【预约☎】
项目首发地块-蕰川社区BSPO-0401单元02B-09地块,位于杨北路北侧,距离1号线富锦路地铁站直线约500米!也就是说,除了四季都会以及近期的山东健康宝钰澜庭以外,杨行又有了新供应!
据悉,新四季都会项目为旧城改造,并无设置联动价。
地块四至范围:东至02B-12地块,南至杨北路,西至02B-02地块,北至02B-03地块
根据设计方案显示,项目拟建15幢14-16F高层住宅,以及三幢多层别墅住宅,容积率2.0。
四季都会青藤里售楼处电话:400-8824-258【预约☎】而项目周边的配套开发改造也正在进行当中,有研发空间、商办载体、社区配套、基础教育设施,绿化面积15.4万平方米。包含了4所幼儿园、1所小学+1所初中(已确定为“世外”系)、4个社区公共服务设施、9条道路、8座桥梁、4条河道,改造项目的实施。和大一期一样,商业、学校、市政配套、绿地等...一样都不少!
项目大致位置
四季都会青藤里售楼处电话:400-8824-258【预约☎】
相比四季都会大一期,新四季都会除了在户型上作了升级之外,还升级了两方面。
第一,外立面的全面升级
简单来说,外观更好看、更年轻时尚:
通透的玻璃为主基调,简洁大气,利用线条和框的重新排列组合,立面简洁、现代,强化立面的高级感,在杭州就有相近的产品系,就拥有很高的市场呼声,来看分析示意图:

▲“光感立面”体块推敲分析示意图
四季都会青藤里售楼处电话:400-8824-258【预约☎】四季都会青藤里售楼处电话:400-8824-258【预约☎】再来看看四季都会大二期的外立面效果图:通透玻璃赋予了建筑更高的窗墙比,四季都会的“第一表情”有比较强烈的视觉冲击力。
外立面效果图,实际以交付为准
第二,社区的全面升级
加强了社区与业主之间的互动性
归家更具仪式感,景观更有层次感:
比如说归家仪式感,在小区入户处,设置双重“院落”,从酒店式的落客庭院进入到静心庭院,就能看到小区为业主精心打造的礼仪盒子,在这一方开放式空间里,业主可以日常休憩、读书娱乐,或者接待朋友;
主入口效果图,实际以交付为准
而这只是四季都会大二期社区【四大聚场】的1/4——街角剧场,除此之外,四季都会大二期还提供了:
运动聚场,包含了混龄光环、逐光跑道(含起跑区、拉伸区和能量补给站),露营草坪、羽光球场等;
自然聚场,包含了节气植物园、气味植物园和童年记忆园,业主日常放松身心的好去处;
林下聚场,提供了一系列嬉戏场景。
内部场景效果图
四季都会青藤里售楼处电话:400-8824-258【预约☎】四大聚场错落拍不再小区的各个角落里,层次感丰富,互动性十足,足不出户,就可以享受园居生活,这塑造的不是一个冷冰冰的空间,而是一个人与人之间边界消融的有温度社区。
另外,项目的物业由万科物业来操盘,这对于小区后期的价值提升有非常大的推动作用,
俗话说:“买房一阵子,物业一辈子!”评价一个楼盘的价值,除了价格、地段、配套等硬性指标外,物业服务也是一个十分关键的标准。
四季都会青藤里售楼处电话:400-8824-258【预约☎】
万科物业是业内第一批使用互联网产品的物业管理企业,开启智能化物业服务基础工程和精细化物业管理模式,智慧化服务。
加之项目位于宝山区杨行板块,杨行重点规划上海北站,拥享杨行镇生活北枢纽的轴心发展区。
四季都会青藤里售楼处电话:400-8824-258【预约☎】据悉,上海北站规模仅次于虹桥站,将串联长江经济带,连接长三角、中三角、成渝地区,与虹桥枢纽相辅相成,是未来重要的交通枢纽。而杨行镇,位居大宁北,毗邻吴淞副中心,成为难得的城市发展双重战略的辐射区,未来可期。
图片仅示意,源自网络
生活配套
交通方面:项目距离轨道交通1号线富锦路站仅约400米。
在上海,地铁1号线是当仁不让的“主心骨”,沿线楼盘本就稀缺,如今四季都会以距离富锦路站仅约500的优势出场,自然备受瞩目。
四季都会青藤里售楼处电话:400-8824-258【预约☎】商业方面:海德名门西北侧自带商业,周边四季都会和中铁北城时代都有一定商业,附近还有宝山招商花园城、友谊西路地铁站旁的昊耀商业广场等。
教育方面:项目东侧有规划的教育用地已确定为世外(九年制),周边有华师大附属杨行中学、华二附中宝山校区、上师大附属宝山外国语学校等。
四季都会青藤里售楼处电话:400-8824-258【预约☎】
生态休闲:项目门口就是约34万方大型水景白沙公园。这种出门走走就是公园的生活,在魔都是很难得是,更是很多人的居住向往。
【楼盘名称】上海各区项目详细楼盘
崇明区:
限购项目:长兴岛御岛财富公馆丨长兴岛金茂逸墅丨陈家镇览海高尔夫独栋别墅丨陈家镇上实和风院丨陈家镇仁恒海明院丨陈家镇东滩云墅三期丨陈家镇光明墅二期丨东滩花园丨融创山水拾间不限购项目:绿地长岛丨崇明岛大爱城丨国瑞瀛台丨紫竹园丨融科托斯卡纳庄园丨海上普罗旺斯
浦东新区:限购项目:滨江一品苑二期丨康桥中建融创壹府澜庭二期丨低积分必看川沙保利云上拾光丨陆家嘴九庐三期丨碧云钻石酒店公寓丨周浦九龙仓兰廷丨陆家嘴中企16号公馆丨碧云尊邸二期丨前滩东方惠雅丨前滩晶鸿名邸丨东靖路站森兰名苑丨浦东宝华紫薇花园丨金桥嘉里巨峰路项目丨绿地海富东上海丨金桥张家浜项目丨金桥金鼎首府丨康桥华发仁恒海上溪云丨御桥颐盛御中环三期丨康桥亲水湾朗廷丨周浦浦发东悦城三期丨唐镇皇廷御府丨曹路佩玛山丘丨临港电建泷悦蓝湾丨海玥瑄邸丨浦发仁恒珊瑚世纪二期丨浦开仁恒金桥世纪二期丨唐镇创新中路站浦发川杨河项目丨唐镇浦发虹湾丨前滩保利世博滨江丨唐镇融创未来金融城丨唐镇华侨城纯水岸丨陆家嘴中企海睿滨江丨恒大滨江华府丨川沙陆家嘴锦绣观澜二期丨尚海郦景丨临港同润金色橘苑丨大华珞斐墅丨同润蓝美俊庭丨金桥浦开江南里丨嘉华陆家嘴丨浦江壹号丨航头中海云麓里丨临港陆家嘴滴水湖涟岸丨临港大名城映园丨临港首府丨滴水湖馨苑五期
不限购项目:6号线旁森兰壹品星汇丨6号线旁森兰美奂丨陆家嘴通燃气景瑞尚滨江丨森兰远洋财富中心丨野生动物园旁云栖之星丨陆家嘴良邸618丨川沙精装现房叠墅林曦水岸丨川沙迪士尼绿都绣云里丨16号线惠南星创城丨金地褐石公馆丨前滩中房晶华公馆丨融创精彩天地丨中石化大厦丨森兰美奂丨太平洋中环广场丨浦东微谷丨都汇公馆丨琉森公馆丨中洲珑悦珑玺台丨陆家嘴金融街区丨舟山嵊泗列岛海上海
宝山区:限购项目:上外附校区旁红星宝山天铂二期丨建发云锦湾二期丨顾村上城院子丨上外附校旁中建阅澜山丨上海长滩四期丨大华时光里悦庭丨中环叠墅央玺二期丨大华朗香花园五期丨大华锦绣四季澜岸丨四季都会五期丨美兰金色宝邸丨中企光华雅境丨华润卓越玲珑悦府丨经纬学府阳光丨招商雍和府丨大华公园荟丨上实海上菁英丨大华公园城市丨大华锦绣四季丨中集金地美兰城丨大华朗香公园里丨上港星江湾丨招商雍和府丨大华锦绣悦府丨万业紫辰苑丨金融街美兰金悦府丨宝华北岸郡庭不限购项目:顾村公园+地铁口绿地公园广场杨浦区:
限购项目:新江湾中企云萃江湾丨盛世御珑湾丨龙光天境丨仁恒海上源丨保利天汇二期丨信达泰禾上海院子丨八埭头滨江园三期丨杨浦金隅项目丨杨浦融创项目 不限购项目:五角场通燃气财富国际广场丨五角场黄兴公馆丨杨浦内环郡江国际领寓丨五角场华美达公寓丨复旦绿地双创中心丨通燃气带地暖莱克大厦闵行区: 限购项目:上海华府天地丨七宝大上海国际花园丨上海星河湾三期丨上海桃花源三期丨颛桥宝华紫薇花园丨颛桥华发四季半岛丨阳光城未来悦三期丨华二学区兰香湖壹号丨天安豪园二期丨佳兆业8号丨融信旭辉世纪古美丨桂鸿院丨颛桥联仲都悦汇丨一品漫城丨东苑新天地丨金臣别墅丨德信交投隐秀云庐丨珠江铂世古北里丨虹桥云禧不限购项目:龙湖天琅丨龙湖天钜丨大平层龙湖玖悦青浦区:限购项目:现房联排金城上品丨嘉涛湾丨徐泾小户型俊灿星城丨万科天空之城五期丨金地水悦堂丨金臣颐墅三期丨上海蟠龙天地二期丨远洋虹桥万和源二期丨虹桥御墅丨海玥虹桥金茂悦丨金地虹悦湾丨葛洲坝玉兰花园丨新华联奥莱悦府丨璟雲里丨御澜博翠丨金臣颐墅丨虹桥融景丨颐湾丽庭丨恒文星尚湾丨大豪山林别墅丨泷湾丨宝业爱多邦丨金地虹桥世家丨西晶明园丨大名城映湖丨中环境秋月三期丨首创禧悦芳菲丨虹桥金茂悦二期丨上善水樾丨安澜西郊宽境不限购项目:美瑞清河湾丨17号线地铁上盖东渡悦来城丨兰韵文化中心丨17号线漕盈路站铂悦公馆嘉定区:限购项目:融信海纳印象二期丨金地嘉悦湾二期丨金地峯范四期丨万科西郊都会四期丨莫里斯花源丨南山虹桥领峯丨融侨星誉丨路劲悦茂府二期丨中骏璟尚二期丨盘古园府丨湖畔天下丨佳兆业城市广场丨云栖麓丨金隅金成府丨嘉宝新力梦之晴丨路劲海尚湾丨安亭瑞仕锦庭丨金隅大成郡丨湖畔天下瑞泷丨奥园金地格林云尚二期丨日月光伯爵天地不限购项目:11号线南翔站通燃气中童巴比尼丨江桥虹桥领御丨江桥米拉公寓丨14号线地铁上盖V格时代广场松江区:限购项目:新城万达旁金地丰盛道丨景瑞江山悦丨国贸佘山原墅三期丨海伦堡兰园四期丨中海阅麓山丨同济晶萃丨光明雲庐丨路劲佘山院子丨国贸天悦丨吉宝佘山御庭丨云著深蓝丨长泰西郊别墅丨佘山东紫园丨同润玫瑰园丨佘山一品丨桂语云溪丨金地西郊风华丨绿中海丨大名城映云间丨贝尚湾丨洞泾尚云里丨国贸梧桐原丨松岳名都不限购项目:恒都广场丨泗泾钰丰商都丨9号线御上海青橙丨万达soho公寓普陀区:限购项目:融创建发苏河望丨真如城投俞家弄项目丨高尚领域丨新湖明珠城三期丨中鹰黑森林三期丨长风瑞仕璟庭丨锦绣里丨品尊国际丨智富名品城丨沁和园丨祥和王宫丨不限购项目:环球港绿洲公馆丨环球港伸大厦丨北岸长风丨星河世纪广场丨高尚领域行政公馆丨申汉大厦丨新会139静安区:限购项目:宁馨苑丨中兴路一号二期丨宝珀公寓丨南京西路公馆丨静安慕舍丨新湖上海青蓝丨康鑫家园丨铭德传奇漪景庭不限购项目:中环永新国际广场丨静安世纪时空丨静安汇丨中房华东大厦丨华瑞大厦丨通燃气新平公寓黄浦区:限购项目:璞玉one丨新天地翠湖五集丨卢湾68丨绿地海珀外滩丨复兴珑御丨凯德茂名公馆丨中海建国里三期不限购项目:新天地一品苑虹口区:限购项目:江景豪宅白金湾府邸丨祥生蝶恋花丨瑞虹新城十期臻庭丨弘久新弘北外滩丨融创青雲壹号二期丨中粮瑞虹海景壹号丨海泰北外滩丨招商外滩玺丨中皇北岸锦源丨招商虹玺不限购项目:中环大柏树宝隆公馆丨大柏树地铁旁景明大厦徐汇区:限购项目:云锦东方三期丨百汇园三期丨宝能公馆1288丨汇成南街里三期丨仁恒长桥项目丨鑫耀中城二期丨承安瑞园丨香港置地西岸金融港长宁区:限购项目:尚晨皇家花园丨愚园名邸丨古北ONE丨淮海名邸丨华山夏都苑不限购项目:可乐公馆丨光华大厦奉贤区:限购项目:低总价挂户口乐怡苑丨大家美颂二期丨绿地铂晶舍二期丨金汇龙湖春江天玺叠墅丨碧桂园凤鸣海尚丨同润蓝美俊庭丨中式别墅原筑江南丨印象花语墅丨南桥金茂悦丨临港奉发宝龙广场丨东方华璟园丨东原璞阅丨阳光城未来悦二期丨禹洲天境雍锦府丨中海戈雅园丨融信海月四季丨朗诗未来街区丨天和尚海庭前丨中国铁建香榭国际丨龙湖春江天玺丨佳兆业8号丨阳光城青溪水岸丨金地光语著丨酩悦都会丨宝华帝华园丨光明九胤丨天和前滩时代丨泰禾海上院子丨天和尚上海丨阳光星期8丨佳源梦想广场丨悦城华庭丨凤凰城天悦丨景源名墅丨保利明玥湖光丨大名城映园金山区:限购项目:碧桂园凤凰城丨建邦国宸府丨丨华发招商依云四季丨光明金山府丨依云湖丨长城逸府丨毕加索花园小镇 ︳海玥瀜庭︳︳枫溪别院|世纪金源梧桐印象︳新未来樾湖︳龙信御澜天樾︳︳金山澜庭︳