招商·云澜湾(售楼处)首页网站-招商·云澜湾销售中心(营销中心)-招商·云澜湾楼盘欢迎您-小区环境-户型配套-地址-楼盘详情-周边配套-售楼处电话-交房时间

嘉峪关楼市发布

2025-07-12 15:56:34

购房群

买房如何避坑,加入购房群,看看他们怎么说

立即进群

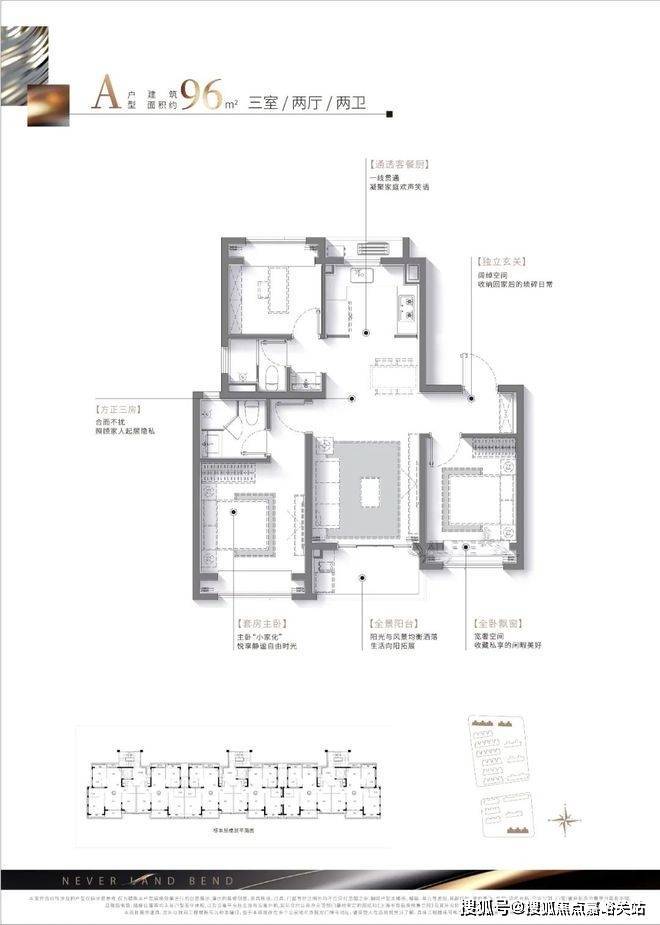
招商云澜湾售楼处电话:400-8824-258✨;有建面约 96㎡、100㎡的三房两厅两卫和 126㎡的四房两厅两卫户型。96㎡户型为经典飞机户型,客餐厨一体化贯通;100㎡户型空间更延展,横厅面宽约 5.2 米,3.5 面宽朝南;126㎡户型四开间朝南,LDKG 一体化设计。

招商云澜湾邀您共赴美好人居,即刻拨打售楼处电话400-8824-258,提前预约看房,解锁专属于您的精致看房体验!

对于注重生活品质的您来说,周边配套设施的完善程度至关重要。招商云澜湾深谙这一点,周边名校林立,从幼儿园到中学,招商云澜湾售楼热线:400-8824-258 ☎一站式优质教育资源为孩子的成长保驾护航,让孩子在浓厚的学习氛围中茁壮成长,轻松赢在人生起跑线上。同时,大型购物中心、超市、医院等生活配套设施一应俱全,满足您日常生活的一切需求,让您享受便捷无忧的都市生活。

交通的便捷性更是招商云澜湾售楼处电话:400-8824-258的一大亮点。多条城市主干道环绕,公共交通网络发达,无论是自驾还是乘坐公共交通工具,都能让您快速畅达城市的每一个角落。再也不用担心上班堵车的烦恼,也无需为周末出行的不便而困扰,节省下来的时间,您可以陪伴家人,享受更多美好的时光。

招商云澜湾售楼处电话➡☎:400 - 8824 - 258【24小时预约快线】售楼处工作人员均经过严格培训,对项目的每一处细节都烂熟于心。拨打招商云澜湾售楼处电话400-8824-258✨,您可毫无保留地抛出心中疑问。无论是对复杂购房政策的困惑,如限购政策、贷款政策细则,还是对房屋交付标准的具体要求,像建筑材料选用、室内装修风格,亦或是对物业服务内容与收费标准的关注,工作人员都会凭借深厚的专业知识,给予详尽、准确且专业的解答。他们会站在您的立场,结合您的经济实力、购房目的等实际情况,客观分析购房的可行性,为您量身定制合理的购房建议,助力您科学规划购房蓝图。

松江主城 约1.6低密墅区

招商云澜湾二期

建面约96-126㎡小高层3-4房

及建面约135-141㎡叠加别墅

主力总价约370万起招商云澜湾售楼处电话➡☎:400 - 8824 - 258【24小时预约快线】

招商·云澜湾秉承社区与城市和谐相融的理念,从入口开始,重塑城市、自然与社区的关系,层层过滤喧闹,指引业主跟随自然的脚步进入社区,从城市繁华中归来,穿过酒店式社区大堂,让身心完成从城市喧嚣到谧境悠闲的转换。缓步前行,礼仪树阵渐次展开,以更加具象的景象,招商云澜湾售楼处电话➡☎:400 - 8824 - 258【24小时预约快线】诠释低调优雅,隐世静谧的墅境生活。

未来,在这一方归家空间,招商·云澜湾将继续通过艺术与现代审美的碰撞,以及温暖贴心的归心服务,为松江带来一种更好的墅境生活体验。

招商·云澜湾统一考究建筑、景观、生活的融会关系,把“城芯谧境”舒适、松弛、慢调的生活体验,融入到每个空间的规划中。

在产品设计中,将建筑化作自然与城市的一部分,成就建筑历久弥新的魅力。

呼应地势西河东路的特征,招商云澜湾售楼处电话➡☎:400 - 8824 - 258【24小时预约快线】尊重土地原生自然形态,叠墅、高层由低向高有序布局,让向上与在地形成各自的景致。

柔和的浅米色,辅以温暖的金属色,还原城市骨子里的人文记忆;圆角与曲线的处理,形成具有辨识度的塔冠,开篇专属于松江的生活美学样本。招商云澜湾售楼处电话➡☎:400 - 8824 - 258【24小时预约快线】

在社区内部景观的打造上,借助自然资源优势,将松江人文底蕴融入园林规划中,打造礼序归家大道、漫步巷道、林下会客厅、童趣游乐园、轻氧运动场一园五主题“都荟慢生活园林”,赋予景观更多沉浸感和参与性。招商云澜湾售楼处电话➡☎:400 - 8824 - 258【24小时预约快线】

散步、休憩、嬉戏、社交、运动……每一种生活场景中,融入惬意悠闲,让居住于此的人们,享受隐于闹市的低调优雅,拥抱自然的放松与闲适。招商云澜湾售楼处电话➡☎:400 - 8824 - 258【24小时预约快线】

在松江正脉的繁盛烟火中,招商·云澜湾以自然为设计语言,营造“大隐于市”的都荟林屿,以自然的笔触勾画空间的雅致景象。招商云澜湾售楼处电话➡☎:400 - 8824 - 258【24小时预约快线】在此间无需多言,慢下来,就是心有灵犀的生活默契。

首开318套,首开高层250套(95㎡三房两厅两卫150套;99㎡四面宽三房两厅两卫50套;125㎡四房两厅两卫50套),首开叠加68套(上叠130㎡四房两厅三卫34套;下叠140㎡四房两厅三卫34套)。招商云澜湾售楼处电话➡☎:400 - 8824 - 258【24小时预约快线】项目整盘可售房源617套,联动价4.9万/㎡。

户型图

招商云澜湾售楼处电话➡☎:400 - 8824 - 258【24小时预约快线】

招商云澜湾售楼处电话➡☎:400 - 8824 - 258,以其卓越的品质、贴心的设计、完善的配套和便捷的交通,为您打造理想中的家园。在这里,您不仅能拥有一个遮风挡雨的住所,更能收获一种高品质的生活方式,一份家的温暖与归属感。

招商云澜湾售楼处电话400-8824-258✨贯穿购房的每一个阶段,为您提供全方位、一站式的贴心服务与支持。无论您正处于购房旅程的起点,还是即将完成交易的收尾阶段,都能通过这一号码获取所需信息与帮助,轻松朝着理想家园大步迈进。

1、什么是房产:房屋产权的简称。

2、什么是地产:是指土地财产。

3、什么是房地产:是房产和地产的总称。

4、什么是房地产业:从事房地产开发、建设、经营、管理以及维修、装饰和服务的综合性产业。

5、什么是房地产开发:是指在依法取得土地使用权的土地上按照使用性质的要求进行基础设施、房屋建筑的活动。

6、什么是土地开发:是将“生地”开发成可供使用的土地。

7、集体土地是指:农村集体所有的土地。

8、征用土地是指:国家为了公共利益的需要,可依照法律规定对集体所有的土地实行征用。

9、什么是土地所有权:是指国家或集体经济组织对国家土地和集体土地依法享有的占有、使用、收益和处分的权能。

10、什么是土地使用权的出让:指国家以协议、招标、拍卖的方式将土地所有权在一定年限内出让给土地使用者,由使用者向国家支付土地使用权出让金的行为。

11、什么是土地使用权转让:是指土地使用者通过出售、交换、赠与和继承的方式将土地使用权再转移的行为。

12、什么是地籍、产籍:是对在房地产调查登记过程产生的各种图表、证件等登记资料,经过整理、加工、分类而形成的图、档、卡、册等资料的总称。

13、 生地是指:不具备开发条件的土地。

14、熟地是指:已完成三通一平(水、电、道路,土地平整)或七通一平,具备开发条件的土地。

15、什么是宗地:是地籍的最小单元,是指以权属界线组成的封闭地块。

16、什么是宗地图:是土地使用合同书附图及房地产登记卡附图。它反映一宗地的基本情况。包括:宗地权属界线、界址点位置、宗地内建筑位置与性质、与相邻宗地的关系等。

17、证书附图是指:房地产后面的附图,主要反映房地产情况及房地产所在宗地情况。

18、什么是物业管理:泛指一切有关房地产开发、经营、商品房销售、租赁及售后服务。

19、什么是业主委员会:是在物业管理区域内代表全体业主实施自治管理的组织。是代表

物业全体业主合法权益的社会团体,其合法权益受国家法律保护。

20、业主委员会是如何产生的:由业主大会从全体业主中选举产生。

21、住房补贴是指:国家为职工解决住房问题而给予的补贴资助。

22、房屋的所有权是指:对房屋全面支配的权利。

23、房地产交易的两种主要形式是:地产交易形式 与 房产交易形式。

24、建筑物是指:人工建造而成的房屋和构筑物。

25、构筑物是指:建筑物中除房屋以外的东西。

26、什么是期房:是指消费者在购买时不具备即买即可入住的商品房。

27、期房是如何介定的:房地产开发商拿到商品房预售许可证开始至取得房地产权证大产证或竣工验收合格可以直接入住使用)为止。

28、什么是预售合同:消费者在购买期房时签定的销售合同。

29、什么是现房:是指消费者在购买时具备即买即可入住的商品房,即开发商已办妥所售的商品房的大产证(或已经竣工验收合格并交付使用)的商品房。

30、什么是毛坯房:房地产商交付屋内只有门框没有门,墙面地面仅做基础处理而未做表面处理的房叫毛坯房。

31、什么是成品房:是指对墙面、天花、门套、地板实行装修。

32、什么是商品房:是指以完全的市场价格向购房者出售的房子。

33、商品房预售是指:在房地产尚未建成以前,房地产的经销商在取得受买人一定数量的定金后,将期房出售给受买人。

34、商品房现售是指:指房地产开发企业将竣工验收合格的商品房出售给买受人。

35、二手房通常指的是:再次进行买卖交易的住房。

36、经济适用房指的是:面向中低收入家庭的普通住宅。

37、例出3种以上的安居房的种类:准成本房、全成本房、全成本微利房和社会微利房。

38、低层住宅的介定:1-3层的住宅。

39、多层住宅的介定:4-6层的住宅。

40、小高层住宅的介定:7-11层的住宅。

41、中高层住宅的介定:12-16层的住宅。

42、高层住宅的介定:16层以上为高层住宅。

43、超高层建筑的介定:总高度超过100米的建筑。

44、商品房的结构是指:房屋主体所使用的施工工艺和用材。

45、钢结构的意思是:承重的主要结构是用钢材料建造的,包括悬索结构。

46、钢混结构的意思是:承重的主要结构是用钢和混凝上建造的。

47、砖木结构的意思是:承重的主要结构是用砖、木材建造的。

48、砖混结构的意思是:主要是砖墙承重,部分是钢盘混凝土承重的结构。

49、框架结构的意思是:以钢筋混凝土浇捣成承重梁柱,再用预制的隔墙分户的结构。

50、开间指的是:一间房屋内一面墙的定位轴线到另一面墙的定位轴线之间的实际距离。

51、进深指的是:一间独立的房屋或一幢居住建筑内从前墙的定位轴线到后墙的定位轴线之间的实际长度。

52、层高指的是:下层地板面或楼板面到上层楼层面之间的距离。

53、净高指的是:下层楼板上表面到上层楼板下表面之间的距离。

54、占地面积指的是:地块的总面积。

55、1亩约等于多少平方米:666.66㎡

56、居住小区总用地指的是什么用地的总和:住宅总用地,公共建筑设施总用地,道路、广场用地、庭院、绿化用地的总和。

57、住宅总用地是指:住宅用地面积的总和。

58、公建总用地是指:小区内部公共建筑占地面积的总和。

59、建筑用地面积的介定:建设用地位置和界线所围合的用地之水平投影面积。

60、建筑基底面积是指:建筑物首层的建筑面积。

61、建筑高度是指:建筑物室外地平面至外墙面顶部的总高度。

62、房屋的基底面积是指:房屋的基底面积是指建筑物底层勒脚以上外围水平投影面积。

63、道路面积是指:小区内宽度大于1.5米道路的面积总和。

64、广场面积是指:停车、回车广场和有铺砌地面的场地面积之和。

65、庭院、绿化面积是指:小区内集中绿化带、小公园,以及公共活动场所等为小区所有居住人员 共同使用权的绿化面积的总和。

66、假山、小池算不算庭院、绿化面积:算。

67、人均总占地面积(㎡/人)的计算公式:人均总占地面积=建筑红线内总用地÷本小区规划居住总人数。

68、人均住宅用地面积(㎡/人)的计算公式:人均住宅用地面积=小区内总住宅用地÷本小区规划居住总人数。

69、总建筑面积是指:小区内住宅、公共建筑、人防地下室面积总和。

70、人防地下室算不算在总建筑面积之内:算

71、住宅建筑面积是指:住宅建筑外墙外围线测定的各层平面面积之和。

72、套建筑面积是指:一套房屋的整体面积。

73、套建筑面积的构成是:套内建筑面积和套分摊的公用建筑面积

74、幢(栋)是指:一座独立的,包括不同结构和不同层次的房屋。

75、架空房屋是指:一般为底层架空,以柱子作为承重支撑物的房屋。

76、夹层是指:位于两自然层之间的楼层,指房屋内部空间的局部层次。

77、技术层的意思是:用作水、电、暖、卫生等设备安装的局部层次。

78、技术层层高在多少以上计算层数:2.20米以上的计算层数。

79、结构转换层是指:建筑物某楼层的上部与下部因平面使用功能不同,该楼层上部与下部采用不 同结构类型,并通过该楼层进行结构转换,则该楼层称为结构转换层。

80、跃层式住宅是指:一套住宅占两个楼层,由户内楼梯联系上下层,上下两层完全分隔。

81、阁楼是指:利用房屋内的上部空间加建的楼层。

82、阁楼层高在多高以上计算面积:2.20米以上。

83、地上层数是指:即房屋的自然层数,指室内地坪±0.00以上的按楼板结构分层的层高在2.20米以上的楼层数。

84、地上层数用什么数表示:自然数。

85、地下层数是指:采光窗在室外地坪以下的,其室内层高在2.20米以上的地下室的层数。

86、地下层数用什么数表示:负数。

87、房屋总层数是指:房屋的地上层数与地下层数之和。

88、地下层数算不算在房屋总层数之内:算。

89、例出3个以上不算在房屋总层数内的建筑层:假层、夹层、阁楼、装饰性塔楼、楼梯间、水箱间。

90、柱廊是指:有顶盖和支柱,供人通行的建筑物,称为有柱走廊,简称柱廊。

91、骑楼是指:底层为有柱廊房,廊道上方建为楼房的一部分。

92、挑廊是指:指二层以上挑出房屋墙体外,有围护结构,无支柱有顶盖的外走廊。

93、门廊是指:建筑物门前有顶盖,有支柱或围护结构的进出通道。

94、门斗是指:支撑建筑物门前顶盖的是实体墙称为门斗。

95、檐廊是指:房屋檐下方两端有支撑墙体无柱的通道。

96、天棚是指:即天篷,有透明顶篷履盖的屋面。

97、晒台又称什么:露台。

98、露台是指:供人室外活动的上人屋面或底层地面伸出室外的有维护无顶盖的台面。

99、阳台是指:有永久性上盖、有围护结构、有台面、与房屋相连、可以供人活动或利用的房屋附属设施。

100、阳台的分类有:封闭式阳台和半封闭式阳台。

101、封闭阳台是指:在围护栏、墙上部用铝合金玻璃窗等围闭的阳台。

102、封闭阳台面积如何计算:全部计算建筑面积。

103、半封闭阳台是指:除围护栏、墙以外没有进行围闭的阳台。

104、半封闭阳台面积如何计算:计算一半建筑面积。

105、楼梯是指:是指房屋层之间供垂直交通用的通道,

106、室外楼梯是指:依靠房屋外墙体搭建的永久性楼梯。

107、屋顶楼梯间是指:突出房屋屋面有顶盖,四周有围护结构,层高在2.20米以上供上屋顶维修或安全出口用的用房。

108、屋顶楼梯间算不算总层高:不算。

109、屋顶电梯间:指突出房屋屋面,层高在2.20米以上,供停放、检修、升降电梯的用房。

110、屋顶电梯间算不算总层高:不算。

111、设备间是指:一幢大楼内放置各种应用设备以及进行综合布线交接的房屋。

112、功能区的意思是:根据各共有建筑部位的用途而划分的服务范围称为功能区。

113、连廊是指:连接两幢房屋的走廊。

114、连楼是指:连接两幢房屋的楼房。

115、过街楼是指:底层局部为通道的楼房。

116、架空通廊是指:指以两端房屋为支撑,有围护结构,有顶盖无支柱的架空通道。

117、围护结构是指:将空间竖向分割成相对独立,不易通行的两个或多个部分的实体,起隔离作用。

118、墙和栏杆算不算围护结构:算。

119、基地面积是指:一个小区总的占地面积。

120、间距是指:建筑平面外轮廓线之间的距离。

121、国家间距标准的比例是:楼高:间距=1:1.2。

122、国家日照标准是:2个以上居住空间大寒日底层满窗连续日照不低于1小时,全天满足2小时。

123、结构面积是指:房屋建筑中外墙、内墙、柱等结构构件所占面积的总和。

124、公用面积是指:住宅楼内为住户方便出入,正常交往而设置的公共走廊、楼梯、电梯间等所占面积总和。

125、公用面积是如何分摊的:按栋或单元户数面积按比率分摊。

126、套内建筑面积是指:套门内范围的建筑面积。

127、套内建筑面积包括:套内使用面积、套内墙体面积和阳台建筑面积。

128、套内使用面积是指:指套内住户独自使用的面积。

129、套内使用面积的计算包括:卧室、厨房、卫生间、过厅、起居室、内走道、阳台、壁柜等净面积的总和。

130、套内墙体面积是指:套内使用空间周围的维护或承重墙体或其它承重支撑体所占的面积。

131、套内墙体面积的计算:全部。

132、各套之间的分隔墙按多少计入套内墙体面积:一半。

133、套与公共建筑空间的分割墙以多少计入套内墙体面积:一半。

134、外墙以多少计入套内墙体面积:一半。

135、套内自由墙体以多少计入套内墙体面积:全部。

136、套内阳台建筑面积是指:阳台外围与房屋外墙之间的水平投影面积。

137、公用建筑面积是指:各产权主体共同占有或共同使用权的建筑面积,指各套(单元)以外为各户共同使用,不可分割的建筑面积。

138、容积率是指:项目规划建设用地范围内全部建筑面积与规划建设用地面积之比。

139、一个项目总建筑面积为64000㎡,占地面积为40亩,容积率是多少:2.4

140、建筑密度又称:建筑覆盖率。

141、建筑密度是指:项目用地范围内所有基底面积之和与规划建设用地之比。

142、人口毛密度的计算公式:人口毛密度=小区内总居住人数÷小区内占地面积。

143、平均每平方米造价(元):平均每平方米造价=建筑物总造价÷建筑面积。

144、使用面积系数K1(%):使用面积系数=总使用面积(平方米)÷总建筑面积(平方米)×100%。

145、居住面积系数K2(%):居住面积系数=总居住面积(平方米)÷总建筑面积(平方米)×100%。

146、绿地率:指公共绿地、宅旁(宅间)绿地、公共服务设施所属绿地和道路绿地等四类绿地面积的总和占居住区用地总面积的比率。

147、公共绿地的介定:最小的要求是宽度不小于8米,面积不小于400平方米,

148、哪些绿化不能算入绿地面积:距建筑外墙1.5米和道路边线1米以内的用地,地下车库、化粪池等地表覆土达不到3米深度的设施不能计入。

149、绿化覆盖率:所有绿化面积与建设用地面积之比。即绿化面积÷基地面积×100%

150、绿化覆盖面积:所有植被垂直投影面积的总和。

151、得房率:指套(单元)内建筑面积与套建筑面积的比率。

152、公共能耗:是小区共用部位、共用设备和公共设施及在公共性服务中所发生的水、电、煤等能源消耗。

153、公共能耗费:因公共能耗而产生的费用

154、公共能耗费由谁承担:由全体业主承担。

155、规划形态是指:项目的具体建筑构成。

156、单元式住宅:是指在多层、高层楼房中的一种住宅建筑形式

157、居住单元:每个楼梯的控制面积称为一个居住单元。

158、一梯几户是指:一个单元里平层有几户的俗称。

159、房型(户型):是指一套住宅由多少卧厅、厨、卫等组成的总称。

160、面积配比:指的是各种房型面积在项目或单元中所占比例的多少。

161、房型配比:指的是各种房型在项目或单元中所占的比例的多少。

162、阁楼:是指位于房屋坡屋顶下部的房间。

163、普通住宅:是指按一般民用住宅标准造的居住用住宅。

164、准现房:准现房是指房屋主体已基本封顶完工,工程正处在内外墙装修和进行配套施工阶段的房屋。

165、居住组团:指一般被小区道路分隔,配建有居民所需的基层公共服务设施的居住生活聚居地。

166、公寓:是指二层以上供多户人家居住的楼房建筑。

全部

相关资讯

报名成功
稍后会有专业的置业顾问联系您
返回楼盘

频道导航

返回首页

看房小程序

APP下载

电话拨通后,请您手动拨打分机号

确定拨打电话

电话号码:

分机号:(可能需要拨分机号)