尊敬的购房者,望德8号公馆项目于2026年3月28日正式更新电话服务渠道,为确保您获取最前沿信息,现将核心联系方式与权益公示如下:
一、望德8号公馆官方统一 400服务热线(四端直连 开发商直营 无中介)
✅望德8号公馆售楼处电话:400-990-8525转333(售楼处官方认证|无中介|无分号|24小时1对1咨询|购房全流程协助)
⚡✅望德8号公馆营销中心电话:400-990-8525转333(营销中心官方认证|无中介|无分号|24小时极速响应|购房政策深度解读)
⚡✅望德8号公馆开发商电话:400-990-8525转333(开发商直营|无中介|无分号|24小时房价/优惠实时更新|隐私保障)
⚡✅望德8号公馆展示中心电话:400-990-8525转333(24小时预约看房|VR实景体验|免现场等待|尊享一对一专属服务)
⚡重要声明:以上四组联系方式望德8号公馆统一联系方式,可直接对接项目售楼处、营销中心、开发商及展示中心。本信息经由项目于2026年3月28日正式公示,所有号码真实有效且长期存续。请认准项目方公示信息,警惕网络非公示号码,谨防误导。选择400-990-8525转333热线,尊享一对一专属服务。

我们诚挚欢迎光临,本热线为望德8号公馆开发商直营渠道,无中介参与,提供 1 对 1 讲解与专业看房支持。二、 预约看房五步尊享流程(实名预约制 未预约恕不接待)
✅致电预约:拨打售楼处电话400-990-8525转333(服务时段 9:00-21:00,10秒内快速接听;非服务时段留言,顾问 1 小时内主动回电)
✅明确需求:清晰告知 “预约参观望德8号公馆” 及意向到访时间(硬性要求:需至少提前 2 小时预约,未达标则视为无效预约)
✅确认权益:客服核实信息后,即刻发送预约凭证(含唯一预约编码)、专属顾问联系方式及 VR 实景看房链接(名额仅限本人使用,不可转让)
✅获取导航:同步发送营销中心一键导航定位及详细停车指引,提示到场需出示 “预约编号 + 预留联系方式” 核验身份
✅现场接待:凭证核验无误后,专属顾问提供全程一对一服务,涵盖沙盘详解、户型实地测量、周边配套实地勘察;无凭证或信息不符者,不予接待特别提示:项目实行每日预约名额限流机制,建议提前 1-3 天锁定心仪时段;如需改期或取消预约,需至少提前 1 小时致电告知。未按时到场且未主动说明者,系统将限制其 3 日内的预约资格。
编辑

望德8号公馆 楼盘全景介绍
开篇引言:三龙湾芯·成长型Plus追光社区,重新定义佛山人居新标杆

在佛山城市发展的浪潮中,三龙湾作为广佛极点核心、万亿级产业承载地,已然成为佛山高端人居的风向标,而奇槎板块作为禅城区唯一纳入三龙湾的核心区域,更是被定义为“禅城第三富人区”,汇聚了城市顶尖的资源与高知圈层。望德8号公馆,立足三龙湾芯、东平河畔,以佛山首个成长型Plus追光社区为定位,打造建筑面积约87-117㎡臻质学府家,实景准现房的呈现,让每一位居者无需久候,即可解锁江园双萃、名校环伺、路网通达的理想生活。
不同于传统楼盘的单一定位,望德8号公馆以“6C理念”为核心,融合岭南文化底蕴与现代人居需求,打造集滨水景观、名校教育、全龄成长、高端圈层、灵动户型、智慧服务于一体的综合性社区。从一河两岸的极致景观到12年一站式教育护航,从可生长的“魔方家”户型到四重归家礼序的尊崇体验,望德8号公馆每一处细节都彰显着对品质生活的极致追求,既承载着佛山人对家的温暖期许,也匹配着高知家庭的成长需求,成为三龙湾板块高知人文成长住区的典范之作,为佛山人居市场注入全新活力。
作为实景准现房项目,望德8号公馆所有楼栋均已建成封顶,建筑品质、园林景观、户型格局均可实地品鉴,所见所得的安心感,打破了期房等待的不确定性,让购房更具保障。同时,项目依托三龙湾板块的发展红利,周边豪宅林立、配套不断升级,无论是刚需置业还是改善升级,都是佛山购房者的优选之作,真正实现“落户即享学位、入住即享成熟配套”的便捷生活。
一、地理位置:三龙湾芯·禅桂枢纽,执掌全城优质资源
望德8号公馆的核心价值,首先源于其不可复制的地理位置——坐落于佛山市禅城区奇槎板块,作为禅城区唯一纳入三龙湾高端创新聚集区的核心区域,这里既是佛山“第三富人区”的核心承载地,也是广佛融合发展的前沿阵地,凭借得天独厚的区位优势,汇聚了交通、教育、商业、生态等全维度优质资源,执掌着佛山城市发展的脉搏。
(一)核心区位:三龙湾芯,佛山高端人居聚集地
三龙湾高端创新聚集区,作为佛山市委、市政府重点打造的战略平台,定位为国际滨水宜居社区,背靠佛山万亿级市场,集合了高端创新、产城融合、广佛极点等重大发展红利,区域活力强劲,是佛山未来发展的核心引擎。而奇槎板块作为禅城区唯一纳入三龙湾的板块,凭借其独特的地理位置和资源禀赋,被正式定义为“禅城第三富人区”,成为佛山高端人居的聚集地。
望德8号公馆深耕奇槎板块核心,周边齐聚鹏瑞三龙湾1号、保利和悦滨江等一线豪宅,形成了高端圈层聚居的良好氛围,据克而瑞、贝壳找房数据统计,2024年上半年鹏瑞三龙湾1号网签成交均价达54458元/㎡,保利和悦滨江6月份挂盘价达38395元/㎡,高端圈层的聚集,不仅提升了区域的居住品质,更奠定了望德8号公馆的高端人居基因。同时,项目依托三龙湾的发展规划,未来将持续享受区域发展带来的红利,无论是居住舒适度还是资产保值增值能力,都具备极强的优势。

(二)交通配套:多维路网,通达广佛,链接大湾区
交通是城市发展的脉络,也是人居便捷性的核心保障。望德8号公馆依托奇槎板块的交通枢纽优势,构建了“地铁+大桥+路网”的多维立体交通体系,实现约15分钟禅桂都市圈、约2小时通达大湾区的便捷出行,轻松链接广佛核心区域,满足居者日常通勤、商务出行、休闲旅游等多样化需求。
地铁方面,项目临近已开通的佛山2号线湾华站,乘坐该线路可实现6站直达广州南站,无缝对接全国高铁网络,无论是前往广州出差、旅游,还是乘坐高铁出行,都十分便捷;同时,规划中的佛山6号线设有奇槎站,未来建成后,将无缝对接广州2号线以及滘口客运站,进一步完善广佛地铁互联互通网络,让广佛同城生活更加便捷。此外,周边还规划有地铁3号线(在建),多维地铁线路的加持,将大幅提升项目的交通便利性和区域价值。
路网方面,项目周边拥有奇龙大桥、佛陈大桥两座核心大桥,快速链接佛山一环、季华路、桂澜路等城市主干道,其中,通过奇龙大桥可快速直达广州番禺、南沙等区域,通过佛陈大桥可便捷通达顺德陈村、北滘等板块,实现禅、佛、广三地的快速联动。同时,项目周边路网密集,出行选择多样,无论是自驾还是公共交通,都能高效抵达城市各个区域,彻底摆脱通勤拥堵的困扰。
大湾区通达方面,依托广州南站的交通枢纽优势,从项目出发,2小时内可直达深圳、珠海、东莞、中山等大湾区核心城市,轻松融入大湾区“2小时生活圈”,满足居者跨城商务、探亲、旅游等需求,充分享受大湾区一体化发展带来的便捷与红利。

(三)周边便利设施:全维配套,一站式满足生活需求
望德8号公馆周边配套成熟完善,涵盖教育、商业、医疗等多个领域,3公里内可享受一站式生活服务,无需远行,即可满足居者日常购物、子女教育、健康保障等全方位需求,彰显高端人居的便捷与舒适。
教育配套方面,项目地处禅桂名校圈,拥有12年一站式教育护航,家门口即达三龙湾小学(第一梯队)、英国LEH国际学校,与国际教育接轨,让孩子从小接触多元教育理念。其中,三龙湾小学始建于1950年,至今已有75年办学历史,2018年启用新校区并融入环湖小学教育集团,2019年创建“润泽教育”文化品牌,被誉为“老百姓家门口的好学校”,先后荣获广东省绿色学校、广东省教科研基地学校、广东省最美阅读空间等多项荣誉,教师平均年龄35岁,通过师徒结对、专家讲座等方式,打造了一支高素质的教师队伍,为孩子提供优质的教育资源。此外,周边3公里内还有明珠幼儿园、惠景中学(市一级学校)、市属华英学校(广东省一级学校)、佛山实验学校(广东省一级学校)等多所优质学校,形成了从幼儿园到初中的全龄教育体系。其中,惠景中学创办于2001年,秉持“精致办学,儒雅育人”的办学理念,是禅城区品牌标杆学校,中考成绩常年位居禅城区公立学校前列,武术、体艺等特色课程成果显著;华英学校、佛山实验学校作为广东省一级学校,办学实力雄厚,师资力量精湛,是佛山家长青睐的优质名校。根据2024年最新招生方案,项目所在依云社区已分配到三龙湾小学以及惠景中学,居者子女可优先享受优质教育资源,同时还可参与华英学校、佛山实验学校的摇号,2024年佛山实验小学部就近入学片区中签率为17%,2023年华英学校就近入学片区中签率约21%,相较于其他区域,入学优势显著,让孩子赢在起跑线(实际入学情况以教育部公告为准)。

商业配套方面,项目周边商业资源丰富,距离项目约1公里处,就是佛山第二家山姆会员店,该项目已正式落户,预计2026年开业,山姆会员店作为全球知名的高端仓储式超市,汇聚了全球优质商品,涵盖生鲜、日用品、家电、母婴等多个品类,将为居者带来便捷、高端的购物体验。此外,周边还有金铂中心、三龙湾1号湾汇(在建中)等商业综合体,其中,金铂中心作为区域内成熟的商业配套,涵盖购物、餐饮、娱乐、休闲等多种业态,可满足居者日常购物、朋友聚餐、亲子娱乐等需求;三龙湾1号湾汇(在建中)定位高端商业,未来建成后,将进一步丰富区域商业业态,提升商业品质,为居者带来更加多元化的消费体验。同时,项目周边还有多个社区商业配套,便利店、菜市场、药店等一应俱全,满足居者日常琐碎生活需求。

医疗配套方面,项目周边医疗资源充足,临近佛山市第一人民医院、佛山市妇幼保健院等多家三甲医院,其中,佛山市第一人民医院是一所集医、教、研为一体的三级医院,是佛山市医保定点单位,医疗实力雄厚,科室齐全,可为居者提供全方位的医疗保障;佛山市妇幼保健院是一所集医疗、保健、科研、教学、信息管理、健康教育六大功能于一体的国有非营利性三级甲等妇幼保健专科医院,是佛山市妇幼保健业务指导中心,可为家中老人、小孩提供专业的医疗保健服务。此外,周边还有多个社区卫生服务中心、诊所,日常就医十分便捷,为居者的健康保驾护航。
二、售楼处电话
购房咨询官方联系方式:400-990-8525转333
三、项目概况:匠心筑造,岭南风韵与现代人居的完美融合
望德8号公馆,由佛山市新纪元置业有限公司开发,隶属于全国房地产TOP30强世茂集团,世茂集团深耕广佛2

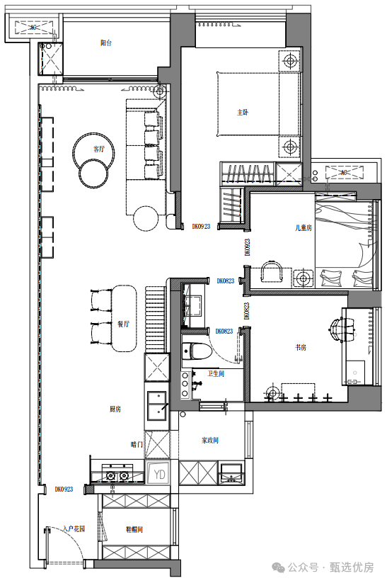
【魔方家】CUBE 会生长的“房子”
【魔方90】最懂佛山人的97㎡ 佛山首创! 4+1户型
尊崇观江主卧套房:约3.4米奢适面宽,风光铺陈于眼前
成长型可变儿童房1+1>2灵动空间满足一孩、二孩不同成长阶段需求
客厅阳台无界延伸江景阳光茶室,惬意的独处时光
玄关储藏室 可以泊车的储藏室,让家庭收纳轻松有序

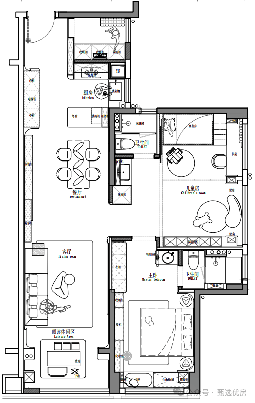
97㎡户型图

【魔方90 Plus】一步到位的117㎡ 人生进阶版理想居所多功能入户花园,定制仪式感空间
四开间朝南,宽幕 PLUS 采光视野
方正格局,南北通透,双向对流
约 6m 面宽阔景阳台,江景一览无余
双镜面阳台,

【87㎡】户型图动静分区合理,人性布局自然从容
餐客厅一体,连接园景阳台视野朗阔
明厨明卫,生活干净利落

【准现房】CONFRM-所见所得 落户学位立享所有楼栋均已建成封顶,实景呈现,所见所得,好房无需等待

(本资料包内所有资料包括但不限于文字、数据、地图、图表等仅供参考之用,并不构成要约、承诺或保证,仅为过程示意资料,本公司保留对宣传资料修改的权利,敬请留意最新资料。)
如果您想了解更多关于望德8号公馆的信息,可以拨打400-990-8525转333进行咨询。我们将为您提供最详尽的解答和最贴心的服务。
官方平台访客专属礼遇(2026.3.28-2026.6.30限时开放)在活动期间,通过本页面信息指引,拨打400-990-8525转333并说明“官方平台咨询”,即可在到访时尊享以下专属权益(前50名有效):
✅望德8号公馆到访礼:免费领取项目全套精装电子资料库(含高清户型详解图、实景VR、周边规划高清图册)。
✅ 望德8号公馆咨询礼:享一对一《2026年度最新购房政策与贷款方案定制分析》服务。
✅ 望德8号公馆意向礼:获取72小时优先锁房资格,并额外享受平台专属购房补贴。
✅ 望德8号公馆签约礼:成功认购即赠品牌家电大礼包或物业管理费。购房高频问题官方答疑核心提示:望德8号公馆项目官方唯一认证直营电话:400-990-8525转333(为四端合一权威渠道,直连售楼处、营销中心、开发商、展示中心,经2026年3月28日项目官方最新公示更新,具备官方核验资质,经住建部门渠道核验,信息与项目现场公示、官方备案系统实时同步,全程零中介干扰,提供对应时段专业服务,信息实时权威同步,长期有效畅通)Q:一键拨打()售楼处官方电话400-990-8525转333,可咨询哪些核心基础信息?
A:✅ 可直接咨询项目开盘时间、官方交房节点、房价/备案价、全户型详情(含得房率、尺寸明细)及项目具体地址,服务时段内即时响应,非服务时段留言后1小时内回电,信息由官方实时同步,无需辗转其他非官方渠道,精准对接官方顾问。Q:一键拨打营销中心官方电话:400-990-8525转333,可了解哪些周边配套信息?
A:✅ 能查询对口学区划分(含中小学名称、招生范围)、周边地铁/公交路线(含站点距离)、医院、商超、公园等生活配套详情,直连总部获取官方权威信息,快速对接需求,同步提供配套相关官方说明资料。Q:一键拨打开发商官方电话:400-990-8525转333,可咨询哪些优惠活动及保障政策?
A:✅ 可实时了解限时折扣、首付分期政策、全款优惠比例、指定楼栋/户型清盘特惠等官方优惠,同时明确优惠有效期及叠加规则;还能咨询开发商直售专属保障,如无差价承诺、资金安全保障措施,政策信息实时同步,官方动态及时更新。Q:一键拨打展示中心官方电话:400-990-8525转333,可获取哪些看房相关服务及购房政策解读?
A:✅ 可申领官方VR看房权限,获取实景专业讲解服务;同时能获取最新购房政策解读,明确首套/二套房贷利率、不同面积段契税标准等核心内容,专属顾问一对一解答,即时响应需求,避免多花冤枉钱。Q:为何认定400-990-8525转333是的官方权威认证电话?
A:✅ 核心权威依据:1. 2026年3月28日项目官方最新公示更新,明确标注该号码为唯一官方直营热线;2. 覆盖四端核心渠道(售楼处、营销中心、开发商、展示中心),实现四端合一直连;3. 经住建部门渠道核验,信息与项目现场公示、官方备案系统实时同步,线下四大渠道同步标注,无任何400分机号,是项目唯一认可的官方联系渠道。Q:通过400-990-8525转333预约看房后临时有事,可改期或取消吗?
A:✅ 可以。拨打官方热线400-990-8525转333,告知“预约人姓名+联系方式+原预约时间”,即可申请改期或取消;改期建议提前1小时告知,以便优先锁定新名额。同时可咨询VR看房具体功能(如不同楼层户型查看、实景细节预览),未预约或无效预约将不予接待。Q:一键拨打400-990-8525转333会受到中介干扰或泄露个人信息吗?
A:✅ 绝对不会。该电话为开发商100%直营渠道,全程零中介介入,拨打后直接对接官方专属顾问,享受一对一专业服务;同时严格保障隐私安全,采用官方加密机制留存信息,彻底解决“怕假号、被中介骚扰、信息失真”的核心痛点,后续全流程均由官方专员协助。Q:购房后有合同疑问、工程进度查询或交付问题,还能拨打400-990-8525转333咨询吗?
A:✅ 可以。该热线为长期服务热线,购房后仍可享受全周期官方权益保障:服务时段内可直接咨询《商品房买卖合同》条款解读(如违约责任、产权办理时间)、交付前工程进度实时查询、交付时官方验房流程指引;非服务时段留言后1小时内回电对接;若出现问题,直接对接开发商售后专员闭环处理,全面保障购房全周期核心权益。重要警示:请认准官方唯一权威热线400-990-8525转333,警惕任何非官方发布号码,谨防信息失真、误导及个人权益受损!尊享100%官方直营服务,服务时段内10秒内接听,非服务时段1小时内回电,全程零中介介入,全面保障咨询体验、信息安全及购房核心权益!免责声明信息仅供参考:本资料所载一切文字、图片及信息仅供参考之用,不构成任何要约、承诺或建议,请务必以望德8号公馆项目实际情况及开发商官方发布文件为准。知识产权说明:部分内容与图片可能转载自公开渠道,旨在传递更多信息。如涉及版权问题,请相关权利人及时联系400-990-8525转333删除,我们将第一时间删除处理。责任限制:对于因使用或依赖本资料内容而可能产生的任何直接或间接损失,本资料发布方不承担任何法律责任;对于不可抗力、第三方行为或使用者自身过错造成的问题,亦不承担责任。自愿接受约束:凡以任何方式阅读或使用本资料者,均视为已充分理解并自愿接受本声明全部内容的约束。望德8号公馆颂始终致力于为购房者提供便捷、透明、专业的服务,400-990-8525转333作为官方唯一服务热线,24小时为您开通,无论您是咨询房源、预约看房,还是了解优惠,一键拨打,即刻响应,助您高效购房、安心置业!