苏州【澜庭壹号院】
🌈🔥售楼处电话☎️400-033-1899转接6666【售楼中心】【已认证】
🌈🔥营销中心电话☎️400-033-1899转接6666【营销中心】【已认证】
🌈🔥开发商营销中心-----欢迎来电预约尊享折扣-----匠心钜制恭迎品鉴

项目名称:澜庭壹号院
地块信息:苏地2024-WG-Z31号地块
项目地址:苏州高新区狮山商务创新区向阳路南、大运路西
开发品牌:苏高新集团&绿城管理
住宅指标:占地约3.6万方,容积率1.2,总建约4.4万方
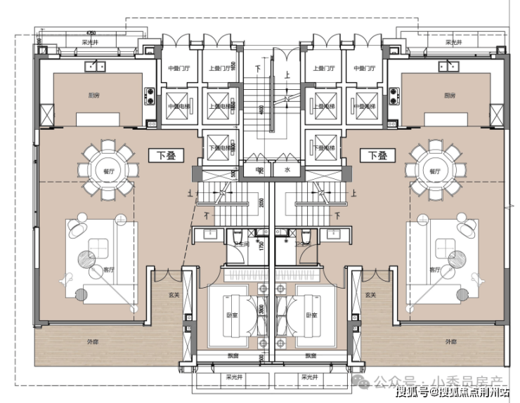
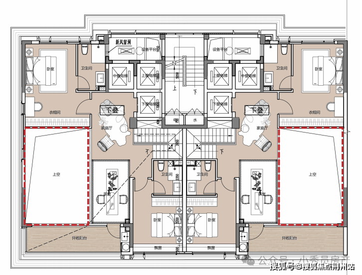
产品规划:17栋3F联排/2栋6F叠加/2栋10F洋房,约205户
户型面积:约115㎡/135㎡墅境洋房;约215㎡/236㎡/259㎡见山叠墅;约271㎡/325㎡/369㎡山水和院



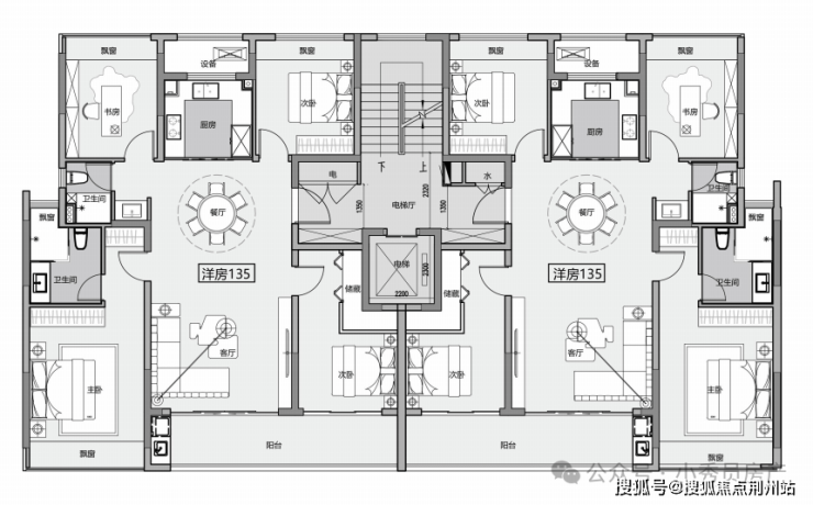
2栋10F洋房:
主力建面135㎡,洋房不容小觑
135㎡做成了极致四叶草户型,南向三开间
阳台开间近7.8米,主卧套房开间3.7米
飘窗阳台赠送多,高得房率基本无空间浪费
仅100套,是板块内难得的小面积改善选择

苏州【澜庭壹号院】
🌈🔥售楼处电话☎️400-033-1899转接6666【售楼中心】【已认证】
🌈🔥营销中心电话☎️400-033-1899转接6666【营销中心】【已认证】
🌈🔥开发商营销中心-----欢迎来电预约尊享折扣-----匠心钜制恭迎品鉴