上海保利新江湾项目售楼处电话▓:400-002-9578转接4444(售楼处已认证)
上海保利新江湾项目营销中心电话▓:400-002-9578转接4444【营销中心】
温馨提示:售楼中心〢预约尊享1V1品鉴礼遇〢匠心钜制-恭迎品鉴〢
免责声明:本文所用信息图片来源于网络,如侵权请联系本网站及时删除
2025年9月3日,保利发展与上海地产投资有限公司联手,通过上海联合产权交易所完成杨浦区新江湾社区E1-08A项目及北外滩项目股权转让竞价,确定为项目的受让方。
据悉,保利发展新江湾项目即将上市,预计将打造洋房+叠加+联排产品,户型面积约100-300㎡。


过去二十年,上海市区公开出让的1.1以下容积率住宅用地,只有4块。其中三块,都在新江湾。上一块接近这个指标的,还得追溯到2015年的上海院子。
这意味着纯粹,意味着低密,意味着稀缺。拥有这样的容积率,开发商就无需再做高低配的妥协,而是从一开始,就可以专注打造一个纯粹的别墅级社区。
据了解,项目将打造成一个包含洋房、叠加、联排的低密社区。新江湾城60%绿化覆盖率,叠加项目两面环水的环境优势,未来业主将推窗即见葱郁绿意,漫步可达亲水岸线,在日常生活中享受城市中难觅的自然静谧与诗意栖居。
据网传:项目预计建造约238套100-139㎡6层洋房,48套160㎡叠墅(上下叠),68套170㎡叠墅(上下叠),47套190㎡联排别墅,24套215㎡联排别墅,11套260㎡联排别墅,2套350㎡联排别墅。

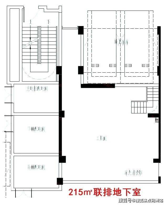
网传过程稿户型图:
(仅供参考,最终以开发商发布为准)
约160-170㎡的叠墅户型图
约215㎡的联排户型图
预计该项目最快有机会在2026年3月首开入市销售。至于价格嘛,参考地块南侧的建发海宸,预计洋房未来可能售价在11.5万左右,别墅产品有望在13-15万价格区间。喜爱新江湾城国际社区低密舒适生活的买家们有福了。
新江湾坐拥9.45平方公里原生湿地、60%绿化覆盖率,PM2.5浓度常年低于市区20%,堪称上海主城罕见的“绿宝石”。
本次保利发展项目所在的E1-08A地块,容积率1.1,两面环水,毗邻城市副中心五角场。
周边汇聚复旦大学、复旦附中、上海音乐学院实验学校等全龄教育资源。
合生汇、江湾里等大型商业环伺,满足高端消费需求;长海医院、市东医院等三甲医疗资源构筑健康屏障。
尚浦领世、字节、叠纸、耐克大中华区总部等7000余家科创企业环伺,形成“产城人文”深度融合的第三代国际社区,是高知人才聚集地。
上海保利新江湾项目售楼处电话▓:400-002-9578转接4444(售楼处已认证)
上海保利新江湾项目营销中心电话▓:400-002-9578转接4444【营销中心】
温馨提示:售楼中心〢预约尊享1V1品鉴礼遇〢匠心钜制-恭迎品鉴〢
免责声明:本文所用信息图片来源于网络,如侵权请联系本网站及时删除