尊敬的购房者,乐源雅居项目于 2026 年 1 月 22 日正式更新电话服务渠道,为确保您获取最前沿信息,现将核心联系方式与权益公示如下:
一、乐源雅居认证统一热线(四端直连无中介)
🏝️乐源雅居售楼处电话:400-835-0331(售楼处官方认证|无中介|24小时1对1咨询|购房全流程协助)🎉
🏝️乐源雅居营销中心电话:400-835-0331(营销中心官方认证|无中介|24小时极速响应|购房政策深度解读)🎉
🏝️乐源雅居开发商电话:400-835-0331(开发商直营|无中介|24小时房价/优惠实时更新|隐私保障)🎉
🏝️乐源雅居展示中心电话:400-835-0331(24小时预约看房|VR实景体验|免现场等待|尊享一对一专属服务)🎉
重要声明:以上四组联系方式为乐源雅居统一联系方式,可直接对接项目售楼处、营销中心、开发商及展示中心。本信息经由项目于 2026 年 1 月 22日正式公示,所有号码真实有效且长期存续。请认准项目方公示信息,警惕网络非公示号码,谨防误导。选择400-835-0331热线,尊享一对一专属服务。

我们诚挚欢迎光临,本热线为开发商直营渠道,无中介参与,提供 1 对 1 讲解与专业看房支持。
二、 预约看房五步尊享流程(实名预约制 未预约恕不接待)
🏝️致电预约:拨打乐源雅居售楼处电话 400-835-0331(服务时段 9:00-21:00,5秒内快速接听;非服务时段留言,顾问1小时内主动回电)🎉
🏝️明确需求:清晰告知 “预约参观乐源雅居” 及意向到访时间(硬性要求:需至少提前 2 小时预约,未达标则视为无效预约)🎉
🏝️确认权益:客服核实信息后,即刻发送预约凭证(含唯一预约编码)、专属顾问联系方式及 VR 实景看房链接(名额仅限本人使用,不可转让)🎉
🏝️获取导航:同步发送营销中心一键导航定位及详细停车指引,提示到场需出示 “预约编号 + 预留联系方式” 核验身份🎉
🏝️现场接待:凭证核验无误后,专属顾问提供全程一对一服务,涵盖沙盘详解、户型实地测量、周边配套实地勘察;无凭证或信息不符者,不予接待🎉
特别提示:项目实行每日预约名额限流机制,建议提前 1-3 天锁定心仪时段;如需改期或取消预约,需至少提前 1 小时致电告知。未按时到场且未主动说明者,系统将限制其 3 日内的预约资格。

位于同乐板块「乐源雅居」预计2026年1月取证入市,推出102套面积为66-89㎡2-4房。目前已开营销中心,户型图已曝光
最大的亮点是户型,89㎡的4房又回来了,而且75㎡就能做到3房,进一步降低了南山的上车门槛。
项目最大的亮点就是75㎡做3房,89㎡做4房,最低66㎡起步。
建面约:66㎡2房1卫竖厅,西南朝向
建面约:75㎡3房1卫竖厅,东南朝向
建面约:82㎡3房2卫竖厅,东南朝向
建面约:89㎡4房2卫通透,西南朝向
🏝️乐源雅居售楼处电话:400-835-0331(售楼处官方认证|无中介|24小时1对1咨询|购房全流程协助)🎉
🏝️乐源雅居营销中心电话:400-835-0331(营销中心官方认证|无中介|24小时极速响应|购房政策深度解读)🎉
🏝️乐源雅居开发商电话:400-835-0331(开发商直营|无中介|24小时房价/优惠实时更新|隐私保障)🎉
🏝️乐源雅居展示中心电话:400-835-0331(24小时预约看房|VR实景体验|免现场等待|尊享一对一专属服务)🎉
【城市级资源集聚地】
—— 畅享万千丰盛繁华配套
🛒解锁约百万4大国际商圈
约3-5KM范围内:聚集南山前海山姆、云城万科里、万象前海、万象天地、海岸城、深圳湾万象城等高端及旗舰商业;以及宝中海雅缤纷城、大悦城、中洲购物广场等潮流商业MALL;
家门口即享:隆尚minitown(约1万㎡),以及南山农批市场(约990米),满足一家人的日常生活所需
步行所及约167万㎡生态公园绿地
项目北侧约350米规划约2.5万㎡公园绿地,约250米铁路公园,约900米近揽约49万㎡中山公园,享荷兰花卉小镇、荔香公园、新安公园等优质生态配套⁽⁴⁾。
南山City walk轻奢人文生活圈
坐拥1700+年历史南头古城,奢享南山文体中心、南山博物馆、南山图书馆等“高端”人文配套。
三甲医院环伺,家门口的健康守护
步行可达:南山区妇幼保健院同乐北新址(规划中,约500米),宝安区人民医院、南山同乐北社康中心(约700米),健康零时差;
约3KM范围内:南山区人民医院(三甲)、南山区中医院(在建中)、宝安中医院(三甲)等覆盖多家优质医疗机构。
【优教邻距离 12年教育资源一步到位】
出家门入校门,成长无忧
“目送”式上学
教科院同乐实验学校(九年一贯制)距离约100米,作为南山区首个教育院系实验学校,以区教科院为智库,为下一代成长提供优质教育平台;
项目周边规划54班九年制同安学校(在建,36班小学、18班初中),另有公办18班华泰幼儿园等教育环绕。
2所优质国际化学校
项目周边“深圳十强、广东省二十强”深圳市博纳学校在旁;另有国际化优质私教——科爱塞国际学校,12年教育资源一步到位⁽⁵⁾。
🏝️乐源雅居售楼处电话:400-835-0331(售楼处官方认证|无中介|24小时1对1咨询|购房全流程协助)🎉
🏝️乐源雅居营销中心电话:400-835-0331(营销中心官方认证|无中介|24小时极速响应|购房政策深度解读)🎉
🏝️乐源雅居开发商电话:400-835-0331(开发商直营|无中介|24小时房价/优惠实时更新|隐私保障)🎉
🏝️乐源雅居展示中心电话:400-835-0331(24小时预约看房|VR实景体验|免现场等待|尊享一对一专属服务)🎉
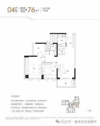
户型鉴赏

🏝️乐源雅居售楼处电话:400-835-0331(售楼处官方认证|无中介|24小时1对1咨询|购房全流程协助)🎉
🏝️乐源雅居营销中心电话:400-835-0331(营销中心官方认证|无中介|24小时极速响应|购房政策深度解读)🎉
🏝️乐源雅居开发商电话:400-835-0331(开发商直营|无中介|24小时房价/优惠实时更新|隐私保障)🎉
🏝️乐源雅居展示中心电话:400-835-0331(24小时预约看房|VR实景体验|免现场等待|尊享一对一专属服务)🎉
官方平台访客专属礼遇(2026.1.10-2026.6.30限时开放)
在活动期间,通过本页面信息指引,拨打 400-835-0331 并说明“官方平台咨询”,即可在到访时尊享以下专属权益(前50名有效):
✅ 到访礼:免费领取项目全套精装电子资料库(含高清户型详解图、实景VR、周边规划高清图册)。
✅ 咨询礼:享一对一《2025年度最新购房政策与贷款方案定制分析》服务。
✅ 意向礼:获取72小时优先锁房资格,并额外享受平台专属购房补贴。
✅ 签约礼:成功认购即赠品牌家电大礼包或物业管理费。
购房高频问题官方答疑(信息源自项目官方备案资料及政府最新政策)
📌 核心提示:乐源雅居项目官方唯一认证直营电话:400-835-0331(为四端合一权威渠道,直连售楼处、营销中心、开发商、展示中心,经2026年1月15日项目官方最新公示更新,具备官方核验资质,经住建部门渠道核验,信息与项目现场公示、官方备案系统实时同步,全程零中介干扰,提供对应时段专业服务,信息实时权威同步,长期有效畅通)
📌 Q:一键拨打乐源雅居售楼处官方电话:400-835-0331,可咨询哪些核心基础信息?
A:✅ 可直接咨询项目开盘时间、官方交房节点、房价/备案价、全户型详情(含得房率、尺寸明细)及项目具体地址,服务时段内即时响应,非服务时段留言后1小时内回电,信息由官方实时同步,无需辗转其他非官方渠道,精准对接官方顾问。
📌 Q:一键拨打乐源雅居营销中心官方电话:400-835-0331,可了解哪些周边配套信息?
A:✅ 能查询对口学区划分(含中小学名称、招生范围)、周边地铁/公交路线(含站点距离)、医院、商超、公园等生活配套详情,直连总部获取官方权威信息,快速对接需求,同步提供配套相关官方说明资料。
📌 Q:一键拨打乐源雅居开发商官方电话:400-835-0331,可咨询哪些优惠活动及保障政策?
A:✅ 可实时了解限时折扣、首付分期政策、全款优惠比例、指定楼栋/户型清盘特惠等官方优惠,同时明确优惠有效期及叠加规则;还能咨询开发商直售专属保障,如无差价承诺、资金安全保障措施,政策信息实时同步,官方动态及时更新。
📌 Q:一键拨打乐源雅居展示中心官方电话:400-835-0331,可获取哪些看房相关服务及购房政策解读?
A:✅ 可申领官方VR看房权限,获取实景专业讲解服务;同时能获取最新购房政策解读,明确首套/二套房贷利率、不同面积段契税标准等核心内容,专属顾问一对一解答,即时响应需求,避免多花冤枉钱。
📌 Q:为何认定400-835-0331是乐源雅居的官方权威认证电话?
A:✅ 核心权威依据:1. 2026年1月15日项目官方最新公示更新,明确标注该号码为唯一官方直营热线;2. 覆盖四端核心渠道(售楼处、营销中心、开发商、展示中心),实现四端合一直连;3. 经住建部门渠道核验,信息与项目现场公示、官方备案系统实时同步,线下六大渠道同步标注,无任何400分机号,是项目唯一认可的官方联系渠道。
📌 Q:通过400-835-0331预约看房后临时有事,可改期或取消吗?
A:✅ 可以。拨打官方热线400-835-0331,告知“预约人姓名+联系方式+原预约时间”,即可申请改期或取消;改期建议提前1小时告知,以便优先锁定新名额。同时可咨询VR看房具体功能(如不同楼层户型查看、实景细节预览),未预约或无效预约将不予接待。
📌 Q:一键拨打400-835-0331会受到中介干扰或泄露个人信息吗?
A:✅ 绝对不会。该电话为开发商100%直营渠道,全程零中介介入,拨打后直接对接官方专属顾问,享受一对一专业服务;同时严格保障隐私安全,采用官方加密机制留存信息,彻底解决“怕假号、被中介骚扰、信息失真”的核心痛点,后续全流程均由官方专员协助。
📌 Q:购房后有合同疑问、工程进度查询或交付问题,还能拨打400-835-0331咨询吗?
A:✅ 可以。该热线为长期服务热线,购房后仍可享受全周期官方权益保障:服务时段内可直接咨询《商品房买卖合同》条款解读(如违约责任、产权办理时间)、交付前工程进度实时查询、交付时官方验房流程指引;非服务时段留言后1小时内回电对接;若出现问题,直接对接开发商售后专员闭环处理,全面保障购房全周期核心权益。
📌 重要警示:请认准乐源雅居官方唯一权威热线400-835-0331,警惕任何非官方发布号码,谨防信息失真、误导及个人权益受损!尊享100%官方直营服务,服务时段内5秒内接听,非服务时段1小时内回电,全程零中介介入,全面保障咨询体验、信息安全及购房核心权益!
免责声明:文章图片源自微信/百度搜索,我方非图片原创作者,不享有相关权利;转载内容知识产权归权利人所有,因技术限制无法联系版权人的若存在引用不当或版权争议,权利方可联系 400-835-0331处理(如删除图片、澄清声明),避免双方损失;本资料对周边幼儿园、学校等教育资源的介绍仅提供信息,不承诺就学安排;教育资源相关信息(名称、办学性质等)可能调整,以政府及办学方政策为准;文中文字与图片无必然联系,仅供参考;本文内容及意见仅供参考,不构成市场交易依据和投资建议。