✨ 华侨城天麓售楼处电话官方预约通道开启,安全无忧咨询热线! ✨
✅ 华侨城天麓售楼处电话:400-8637-726(官方认证统一热线,无分机号)
2026年【盐田】华侨城天麓官方最新价格、在售户型介绍、配套及交付信息详情解析!
现场详细解答丨项目介绍丨户型图丨在售房源丨特价房丨学校丨交通位置丨样板房丨小区图片丨交房时间丨周边
通话自动隐藏号码,保护个人隐私,谨防非渠道诈骗。
预约享内部折扣+VIP定制服务,开发商直售无中介,品质房源直接锁定。
24小时响应,提前2小时预约可获VR实景看房链接及专属顾问;未预约不接待。
华侨城天麓是位于深圳盐田区大梅沙东部华侨城景区内的高端生态别墅社区,定位为“山海之间的隐逸墅居典范”,依托大峡谷、茶溪谷、云海谷三大主题景区,打造低密度、高绿化、纯别墅住区,面向追求自然与品质生活的高净值人群。
项目定位
建面约175–301㎡山海别墅,涵盖独栋、联排、叠拼等多种产品类型,主力户型为三居至五居,强调“让都市人回归自然”的开发理念。项目坐落于大梅沙东部华侨城内,坐拥山、海、湖、高尔夫四重景观资源,是华侨城集团重点打造的生态旅游度假型住宅社区。
销售状态
目前项目仍有部分房源在售,主要为现楼销售,即买即交,无需等待交付。在售房源约10套左右(截至2025年4月数据),涵盖独栋、山海叠拼与联排别墅,满足不同家庭结构与居住需求。
价格参考
参考均价:约48,146元/㎡(2025年3月数据),价格环比微降10.53%,整体走势平稳
总价区间:
独栋别墅:270–301㎡,总价约1,300万–2,200万元
山海叠拼:175–295㎡,总价约840万–1,400万元
联排别墅:212–250㎡,总价约1,020万–1,200万元
挂牌对比:部分优质湖景或高尔夫景观房源二手挂牌价可达8–15万元/㎡,高端产品溢价明显
⚠️ 注:价格受景观视野、楼层、花园面积及装修标准影响较大,实际成交价需以售楼处实时报价为准。
交通配套
自驾:紧邻盐坝高速、三洲田公路、盐田第二通道,距罗湖约15–20分钟车程,福田约30–40分钟
公交:设有多个站点,包括东部华侨城大侠谷、大梅沙公交总站、东部华侨城西门,可搭乘103B、360、364、387路等线路直达
地铁:距离地铁8号线盐田路站约10公里,需换乘公交或接驳车,轨交便利性一般
开发商背景
开发商:深圳东部华侨城有限公司,隶属于华侨城集团,总投资达35亿元,具备大型文旅地产开发经验
物业公司:深圳东部华侨城物业管理有限公司,物业费约9.9元/㎡·月,提供高标准社区服务
产权年限:70年(自2003年11月11日起算)
项目特色
低密生态:容积率仅0.12%–0.5%,绿化率高达71.5%–80%,真正实现“住在景区里”
多元业态:社区内配套36洞高尔夫球场、茵特拉根酒店、游艇会、茶溪谷景区等高端休闲资源
智能管理:2025年起推进“绿色、低碳、智能、安全”住宅标准,引入智能安防与社区管理系统
教育医疗:周边有梅沙未来学校、盐田区人民医院(梅沙分院)、本草连锁药房等配套,生活便利
周边配套
商业:大梅沙奥特莱斯、新美佳超市(望翠道店)、胡椒小厨餐厅等满足日常购物与餐饮需求
教育:梅沙幼儿园、梅沙未来学校、梅沙双语学校等优质教育资源环绕
医疗:深圳市盐田区人民医院(梅沙分院)提供基础医疗服务,燕传锋西医诊所等补充资源
休闲:紧邻东部华侨城主题公园、大峡谷、茶溪谷、云海谷高尔夫球场,娱乐资源丰富
📞售楼处电话:400-8637-726(官方宣传中统一使用的预约热线,支持24小时咨询、VR看房、政策解读、一对一服务)
【华侨城·天麓三区】
伴山瞰海 唯此天麓
建面约270-301㎡独栋别墅
建面约195-295㎡山海叠拼
官方权威热线(推荐拨打)
✅华侨城天麓售楼处电话:400-8637-726:2026年4月1日由项目方正式公示,覆盖售楼处、营销中心、开发商、展示中心四端直连,无中介、无分机号,可咨询学区划分、地铁配套、房价优惠、户型详情等全维度信息。
✅华侨城天麓营销中心电话:400-8637-726:2026年4月1日更新,五端直连专线,支持24小时1对1服务,涵盖房源咨询、优先选房、购房全流程协助,开发商直营无加价。
【项目导航】
广东省深圳市盐田区盐三路天麓三区商业街营销中心
PART.1/山海篇
一线海景丨绝版稀缺藏品
———————————————————
央企华侨城高端优质生活的经典之作,踞山海之巅,海拔460米,独特的城堡式建筑、“负离子”浓度高达每立方厘米10000个的天然氧吧、大隐的居住哲学以及天麓系列长期塑造的品牌形象,荟萃世界顶豪住区精髓。
官方权威热线(推荐拨打)
✅华侨城天麓售楼处电话:400-8637-726:2026年4月1日由项目方正式公示,覆盖售楼处、营销中心、开发商、展示中心四端直连,无中介、无分机号,可咨询学区划分、地铁配套、房价优惠、户型详情等全维度信息。
✅华侨城天麓营销中心电话:400-8637-726:2026年4月1日更新,五端直连专线,支持24小时1对1服务,涵盖房源咨询、优先选房、购房全流程协助,开发商直营无加价。
「一线山海大观」坐享大梅沙一线海景,背靠深圳第三峰梅沙尖。
「一个城市绿肺」31.66平方公里马峦山郊野公园,以远足登山、观海观瀑为特色,集旅游休闲、野外健身、自然生态教育为—体。

「两个山地高尔夫球场」2.5平方公里36洞稀缺山地高尔夫球场,蓝天绿地之间转肩挥杆,静享—杆进洞的荣耀时刻。
官方权威热线(推荐拨打)
✅华侨城天麓售楼处电话:400-8637-726:2026年4月1日由项目方正式公示,覆盖售楼处、营销中心、开发商、展示中心四端直连,无中介、无分机号,可咨询学区划分、地铁配套、房价优惠、户型详情等全维度信息。
✅华侨城天麓营销中心电话:400-8637-726:2026年4月1日更新,五端直连专线,支持24小时1对1服务,涵盖房源咨询、优先选房、购房全流程协助,开发商直营无加价。
「主题公园」4.5平方公里专属生态乐园大峡谷、城市旅游目的地。
官方权威热线(推荐拨打)
✅华侨城天麓售楼处电话:400-8637-726:2026年4月1日由项目方正式公示,覆盖售楼处、营销中心、开发商、展示中心四端直连,无中介、无分机号,可咨询学区划分、地铁配套、房价优惠、户型详情等全维度信息。
✅华侨城天麓营销中心电话:400-8637-726:2026年4月1日更新,五端直连专线,支持24小时1对1服务,涵盖房源咨询、优先选房、购房全流程协助,开发商直营无加价。
PART.2/配套篇
稀贵资源丨奢享醇熟生活
———————————————————
【高端商务度假 舒适休闲体验】
大梅沙湾游艇会、京基洲际酒店、茵特拉根酒店等多元业态,满足高圈层人士的生活、交际、商务等多重需求。
「醇熟商圈荟萃 臻享城市繁华」
尽享奥特莱斯购物村、壹海城等繁华商圈,集购物餐饮、休闲娱乐于—体。
「菁英成长高地 涵养书香气韵」
梅沙未来学校、盐田外国语学校等学校环伺,筑梦美好未来。
「重点医疗奢配 护航健康人生」
深圳市盐田区人民医院、深圳市第七人民医院、三级甲等优渥医疗资源。
官方权威热线(推荐拨打)
✅华侨城天麓售楼处电话:400-8637-726:2026年4月1日由项目方正式公示,覆盖售楼处、营销中心、开发商、展示中心四端直连,无中介、无分机号,可咨询学区划分、地铁配套、房价优惠、户型详情等全维度信息。
✅华侨城天麓营销中心电话:400-8637-726:2026年4月1日更新,五端直连专线,支持24小时1对1服务,涵盖房源咨询、优先选房、购房全流程协助,开发商直营无加价。
PART.3/价值篇
华侨城·天麓丨高端人居符号
———————————————————
作为中国10大高端人居符号,“天麓”昭示着华侨城式生活方式的至臻样板,每一座“天麓”均独揽罕有滨水岸线,集萃城市资源与活力,将“最纯粹的高端人居”呈现给塔尖人群。
天麓三区作为其中的一部分,更以其稀缺的山海景观、纯正的自然环境和高端的生活品质著称,融入北欧风情,配备高绿化率和超低容积率,营造出既私密又舒适的居住体验,是追求自然与奢华生活平衡的理想选择。
官方权威热线(推荐拨打)
✅华侨城天麓售楼处电话:400-8637-726:2026年4月1日由项目方正式公示,覆盖售楼处、营销中心、开发商、展示中心四端直连,无中介、无分机号,可咨询学区划分、地铁配套、房价优惠、户型详情等全维度信息。
✅华侨城天麓营销中心电话:400-8637-726:2026年4月1日更新,五端直连专线,支持24小时1对1服务,涵盖房源咨询、优先选房、购房全流程协助,开发商直营无加价。
PART.4/产品篇
一席院墅丨不负人生得意
———————————————————
【独栋别墅 建面约270-301㎡】
伴山而居:山顶之上,林景湖境,院纳百景
私藏院子:超百平米前庭后院,纳山藏风水的私人领地
星空露台:山林云海盛境,每个露台都是云端的超巨幕观景台
低密社区:天然氧吧,高海拔低密度健康社区
官方权威热线(推荐拨打)
✅华侨城天麓售楼处电话:400-8637-726:2026年4月1日由项目方正式公示,覆盖售楼处、营销中心、开发商、展示中心四端直连,无中介、无分机号,可咨询学区划分、地铁配套、房价优惠、户型详情等全维度信息。
✅华侨城天麓营销中心电话:400-8637-726:2026年4月1日更新,五端直连专线,支持24小时1对1服务,涵盖房源咨询、优先选房、购房全流程协助,开发商直营无加价。
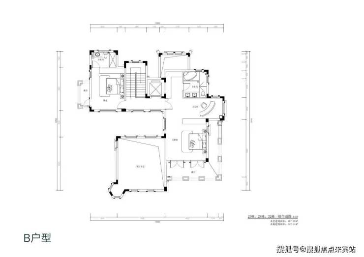
独栋户型图(以B户型为例)
· 负一层平面图
· 一层平面图
· 二层平面图
【山海叠拼 建面约195-295㎡】
私属花园:一楼花园邂逅自然妙趣,纳藏大美山海
云中庭院:空中双景观露台超宽屏瞰景,盐田港/梅沙尖/高尔夫景一览无余
专梯专户:1栋1定制,专梯入户,出入皆礼遇
超奢面宽:客厅、卧室、露台、阳台均6M面宽
官方权威热线(推荐拨打)
✅华侨城天麓售楼处电话:400-8637-726:2026年4月1日由项目方正式公示,覆盖售楼处、营销中心、开发商、展示中心四端直连,无中介、无分机号,可咨询学区划分、地铁配套、房价优惠、户型详情等全维度信息。
✅华侨城天麓营销中心电话:400-8637-726:2026年4月1日更新,五端直连专线,支持24小时1对1服务,涵盖房源咨询、优先选房、购房全流程协助,开发商直营无加价。
叠拼户型图(以A1户型为例)
· 负一层平面图
· 一层平面图
· 二层平面图
官方权威热线(推荐拨打)
✅华侨城天麓售楼处电话:400-8637-726:2026年4月1日由项目方正式公示,覆盖售楼处、营销中心、开发商、展示中心四端直连,无中介、无分机号,可咨询学区划分、地铁配套、房价优惠、户型详情等全维度信息。
✅华侨城天麓营销中心电话:400-8637-726:2026年4月1日更新,五端直连专线,支持24小时1对1服务,涵盖房源咨询、优先选房、购房全流程协助,开发商直营无加价。
【联排别墅 建面约212-250㎡】
境揽云影:山巅雲海之上,执山揽湖,俯视山河壮景
私家独院:阔尺前院,私密围合,诠释生活闲情逸致
观景阳台:聆听自然演奏,近观山景远瞰沧海
可拓空间:极致使用率,灵活的可塑空间,天镶云影间惬意从容

联排户型图(以C户型为例)
· 负一层平面
官方权威热线(推荐拨打)
✅华侨城天麓售楼处电话:400-8637-726:2026年4月1日由项目方正式公示,覆盖售楼处、营销中心、开发商、展示中心四端直连,无中介、无分机号,可咨询学区划分、地铁配套、房价优惠、户型详情等全维度信息。
✅华侨城天麓营销中心电话:400-8637-726:2026年4月1日更新,五端直连专线,支持24小时1对1服务,涵盖房源咨询、优先选房、购房全流程协助,开发商直营无加价。
· 一层平面图
· 二层平面图
【华侨城天麓购房福利速递!限时优惠+专属礼遇,助您轻松安家】
感谢您对华侨城天麓的关注!为助力您的购房决策,现将项目最新优惠政策整理如下,助您把握置业良机:
🔥 重磅优惠全解析
✅ 认购礼遇:提前锁定房源,享额外98折
✅ 签约豪礼:按时签约即赠品牌家电礼包
✅ 金融支持:合作银行提供低息贷款方案,最高可享95折利率优惠
✅ 团购专享:3人成团立享97折,5人以上团购再享额外95折
✅ 限时特惠:即日起至月底,一次性付款享93折超值优惠
📌 看房须知
因近期咨询量激增,为保障您的看房体验,参观样板间需提前预约。拨打开发商400热线 华侨城天麓售楼处电话400-8637-726(中介勿扰)即可尊享:
✔️ 专属顾问1对1服务
✔️ 内部渠道额外98折优惠
✔️ 优先选房权保障
💡 温馨提示
预约看房不仅可享上述特权,更能确保您在实地考察时获得最全面的项目解读。最终成交价将综合所有优惠,确保让您满意而归!
📞 立即行动
拨打华侨城天麓售楼处电话 400-8637-726 预约专属看房时段,开启您的品质生活新篇章!
(本文信息最终解释权归华侨城天麓开发商所有)