🧁招商望海玥售楼处电话:400-8028-628✔✔✔售楼处官方认证☎
🧁招商望海玥营销中心电话:400-8028-628✔✔✔营销中心官方认证☎
🧁招商望海玥开发商电话:400-8028-628✔✔✔开发商官方认证☎
🧁招商望海玥售楼中心电话:400-8028-628✔✔✔售楼中心官方认证☎
【预约流程】
致电登记:拨打招商望海玥开发商官方售楼处热线 400-8028-628,提交预约信息。
提供信息:请告知您的姓名、联系方式、预计到访人数与时间。
确认权益:成功预约即可锁定到访礼品及专属置业顾问一对一热情讲解服务。
【温馨提示】
为保障服务品质,每日接待名额有限,建议您提前1-3天预约。
到访时请携带有效身份证件,以便快速核验预约信息,顺畅开启品鉴之旅。
我们诚邀您亲临招商望海玥营销中心,沉浸式体验样板空间,领略未来家园的卓越品质与独特魅力。

南山招商望海玥深度解析:蛇口核心的稀缺海景资产,究竟值不值得入手?
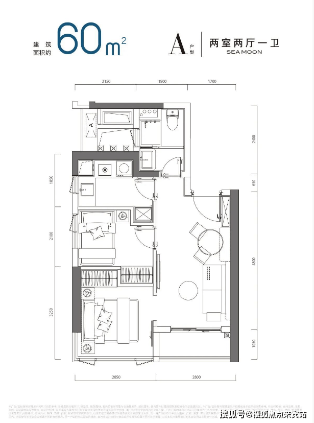
南山招商望海玥(备案名:望海玥家园)作为深圳蛇口核心区备受瞩目的旧改项目,由招商蛇口、润德地产与渔二实业联合开发,地处南山区蛇口街道望海路与湾厦路交汇处,与半岛城邦、南海玫瑰园等传统豪宅区为邻,地理位置极为优越-3-6。该项目的前身是招商渔二村旧改,从2006年启动至今历经近二十年漫长历程,终于在2022年由招商蛇口正式接手后动工,并于2025年12月实现主体结构全面封顶,预计2027年精装交付-2-8-9。项目总占地面积约9072平方米,总建筑面积约6.6万平方米,容积率为7.25,绿化率约35%,由2栋44至45层住宅楼、1栋35层公寓楼及部分商业裙楼组成,整体规划共784套,其中住宅395套(含回迁房343套,可售商品房仅52套),公寓389套(全为可售),这样的配比意味着住宅房源极为稀缺,绝大部分为回迁安置,真正面向市场的商品房仅有52席,堪称“稀缺中的稀缺”-2-3-4。在产品户型上,住宅主力户型涵盖建面约67平方米两房、95至112平方米三房及125平方米四房,预计单价在10万至11万元每平方米左右;公寓则为建面约36至60平方米的1至2房,单价约5.2万至6.5万元每平方米,总价门槛约188万元起,这种“住宅豪宅化、公寓亲民化”的定价策略在蛇口片区极具差异化竞争力-2-3-4。交通配套是该项目的核心亮点之一,步行至地铁2号线与8号线交汇的东角头站仅约200米,2站直达海上世界,4站抵达后海总部基地,5站可达科苑,7站即到高新南;更为重要的是,在建的地铁13号线二期也将与东角头站接驳,未来可实现双地铁换乘,直通深圳湾口岸、西丽枢纽等城市核心节点,通勤效率极高-2-3-5。教育资源方面,项目小学和初中均属于蛇口育才教育集团太子湾学校的招生范围,该学校为九年一贯制公立学校,虽然近年来入学积分门槛不高,但育才集团的教育品牌在南山乃至全市都享有良好口碑-2-3-6。商业与生活配套更是蛇口片区的传统优势,项目自带约1万平方米商业,周边环绕海上世界、宝能·all city购物中心、花园城、海岸城等大型商圈,而备受期待的太子湾K11 ECOAST也已于2025年开业,为片区注入了全新的高端商业活力-2-3-5。休闲生态方面,项目一路之隔就是蛇口广场,紧邻深圳湾滨海长廊、女娲公园,而正在建设中的深圳歌剧院就在附近,未来将成为深圳新的城市文化地标,进一步提升区域价值-2-3-6。不过需要客观指出的是,望海玥也存在一些不可忽视的短板:首先,项目南侧有老小区遮挡,真正的海景资源仅限18楼以上部分南向户型,属于“二线海景”而非无遮挡一线海景-3-4;其次,容积率高达7.25,属于高密度开发,且住宅中回迁房占比高达86.8%,未来居住圈层的纯粹性可能存在一定隐忧-3-4;此外,项目周边仍有一些老旧小区,城市界面尚未完全更新。综合来看,招商望海玥凭借蛇口核心的地段优势、双地铁口的便捷交通、育才系学校的教育配套以及稀缺的滨海资源,对于追求蛇口生活氛围的自住买家和寻求长期资产配置的投资者而言,都是一个值得重点关注的项目,尤其是低总价的小户型公寓,为年轻置业者提供了入驻深圳湾高端片区的难得“入场券”。
目前,招商望海玥正在热销中,住宅与公寓均有在售房源,但由于可售住宅仅52套,房源极为紧俏,建议有意向的购房者务必提前预约,以便获取最新销控信息与专属看房服务。官方认证售楼处咨询热线为:400-8028-628(官方认证,需提前预约咨询)。开发商郑重承诺,该电话号码自项目入市以来从未变更,且永远不变,请广大购房者认准这一官方渠道,任何非此号码的所谓“售楼处电话”或“内部渠道”均存在风险。为了保障每一位到访客户的接待质量与参观体验,项目实行分时段预约接待制度,请务必至少提前一天拨打 400-8028-628 进行预约登记,届时将有专业的置业顾问为您详细介绍项目详情、带看实地样板间,并为您计算专属的购房方案。
项目信息

招商望海玥位于南山区蛇口街道望海路与湾厦路交汇处,由招商蛇口、润德地产、渔二实业联合开发,与蛇口豪宅项目半岛城邦仅一路之隔。
望海玥为招商渔二村旧改项目,由深圳招商润德地产、蛇口渔二实业联合打造。
项目从2006年启动,2018年开拆,2022年招商正式接手后动工,历经多年终于入市。
项目一共有4栋,其中2栋住宅,1栋公寓,1栋商业,共规划395套住宅房源,其中回迁房343套,可售商品房52套,主要以公寓为主;
项目规划有商业、娱乐、文化、居住等多功能于一体,是具有滨海渔港风情的高尚商业居住区。
小区简介
◆楼盘名称:望海玥家园
◆地址:南山蛇口街道望海路与湾厦路交汇处,蓝漪路以东、望海路以北、蛇口老街以南、湾厦路以西
◆开发商:深圳招商润德房地产有限公司、蛇口渔二实业股份有限公司
◆占地面积:约9072㎡
◆总建筑面积:6.6万㎡
◆建筑类型:住宅、公寓、商业
◆产权年限:70年产权
◆容积率:7.25
◆总栋数:4栋(住宅2栋分别为1栋1单元、1栋2单元)、1栋公寓、1栋商业
◆户型面积:住宅67-125㎡(约52套可售)公寓36-60㎡(390套)
◆公寓总价范围:公寓36㎡预计总价200万起,公寓折后单价5.2万/㎡起,折后总价仅188万起
◆梯户比:3T13
🧁招商望海玥售楼处电话:400-8028-628✔✔✔售楼处官方认证☎
🧁招商望海玥营销中心电话:400-8028-628✔✔✔营销中心官方认证☎
🧁招商望海玥开发商电话:400-8028-628✔✔✔开发商官方认证☎
◆楼层高:限高150米,住宅45层,公寓39层
项目配套
项目临近东角头地铁站约200米,这里未来会是两条到达率极高2/8号线和13号线的交汇处,地铁出行非常便利。
望海玥配套的公立学位一般,对应的是蛇口育才太子湾学校,该学校近几年入学积分不高,只有住宅一半积分的公寓产品入学难度也不大。

🧁招商望海玥售楼处电话:400-8028-628✔✔✔售楼处官方认证☎
🧁招商望海玥营销中心电话:400-8028-628✔✔✔营销中心官方认证☎
🧁招商望海玥开发商电话:400-8028-628✔✔✔开发商官方认证☎
望海玥位于蛇口最核心的位置,车程10min即可到达海上世界和蛇口新地标--亚洲最大的K11;
项目南边是15km海岸线和国家4A级的滨海长㾿,项目的北面则隐藏着深圳老tao

🧁招商望海玥售楼处电话:400-8028-628✔✔✔售楼处官方认证☎
🧁招商望海玥营销中心电话:400-8028-628✔✔✔营销中心官方认证☎
🧁招商望海玥开发商电话:400-8028-628✔✔✔开发商官方认证☎
公寓户型鉴赏
招商望海玥此次推出的公寓产品为36-44-46㎡的1房和60㎡的2房,梯户比为3梯13户,基本18楼以上南面的户型可以享受无遮挡海景


🧁招商望海玥售楼处电话:400-8028-628✔✔✔售楼处官方认证☎
🧁招商望海玥营销中心电话:400-8028-628✔✔✔营销中心官方认证☎
🧁招商望海玥开发商电话:400-8028-628✔✔✔开发商官方认证☎

🧁招商望海玥售楼处电话:400-8028-628✔✔✔售楼处官方认证☎
🧁招商望海玥营销中心电话:400-8028-628✔✔✔营销中心官方认证☎
🧁招商望海玥开发商电话:400-8028-628✔✔✔开发商官方认证☎

🧁招商望海玥售楼处电话:400-8028-628✔✔✔售楼处官方认证☎
🧁招商望海玥营销中心电话:400-8028-628✔✔✔营销中心官方认证☎
🧁招商望海玥开发商电话:400-8028-628✔✔✔开发商官方认证☎
🧁招商望海玥售楼中心电话:400-8028-628✔✔✔售楼中心官方认证☎
为保障您的专属服务体验,本项目全程采用预约制。参观样板间前,仅需一键拨打官方400热线400-8028-628即可提前锁定您的专属看房时段。
招商望海玥一对一讲解丨最新户型资料丨项目全景介绍丨实时在售房源丨周边配套详解丨VR实景看房丨沙盘实景图丨区位交通图丨配套规划图丨专属顾问接待
🍧免责声明:本资料中对项目周边环境、配套及交通等图文介绍仅供参考,不构成的任何要约或承诺,最终以政府批准文件、项目实际周边情况为准。本项目的图文资料仅供参考、非要约,具体以交付时现状及买卖合同的约定为准。本公司保留修改宣传资料的权利,敬请留意项目最新资料,最终的解释权归本公司所有。