🗽【深业云筑售楼中心&样板房@诚邀雅鉴】
🗽深业云筑售楼处电话为: 400-113-0755☎开发商已认证🗽🗽
🗽深业云筑营销中心电话: 400-113-0755☎营销中心已认证🗽🗽
🗽深业云筑售楼中心电话: 400-113-0755☎24小时预约热线🗽🗽
➢ ➢本项目采用预约制,过来营销中心参观样板间请记得提前拨打开发商楼盘售楼处400热线电话在线预约,感谢您的配合!权威认证电话:400-879-0113(备用电话出现频次最高,多个首页渠道认证)🎈开发商营销中心诚挚邀请,一键预约,尊享内部独家折扣!匠心独运的精品项目,恭候您的品鉴与选择。
深业云筑
深业云筑位于光明区公明街道,南临公明南环大道,原为石家村里的工业园区旧改,曾用名是深业信宏城。
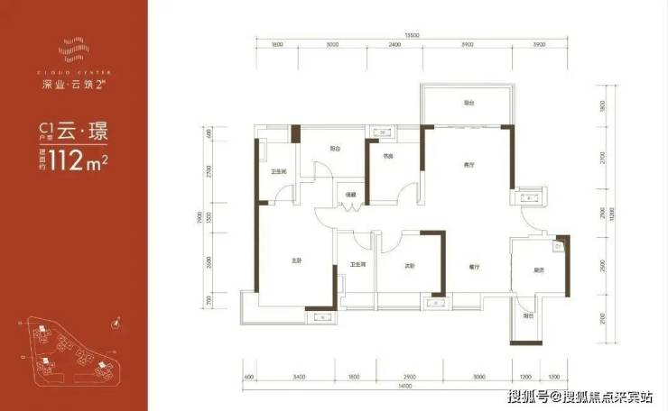
项目总占地约5万方,建筑面积约32万方,绿化率30%,容积率4.572,整体分为两期开发,以住宅为主,辅以少量底层商业。
项目基本信息
【 开发商 】:深业鹏基南方(集团)有限公司
【项目规模】:本期占地约3万㎡,建面约13万㎡
【一期套数】:751套住宅
【产品户型】:约87-143㎡
【装修标准】:毛坯
【楼栋层数】:31层 /32层
【 梯户比 】:2梯4户 /2梯6户
【 容积率 】:4.33
【 绿化率 】:约40%
【车位数量】:1520个
【物业费】住宅:3.5元/㎡/月
【物业公司】:深业集团物业管理有限公司
【项目地址】:深圳市光明区公明南环大道与长春路交汇处
深业云筑
区位价值
世界光明 擎领全球科创未来
光明南接深圳南山科技园,北联东莞松山湖,向上链接东莞水乡新城和广州大学城,是粤港澳大湾区的重要战略节点,占据中国科创发展大动脉;汇聚中山大学深圳校区、国家超算中心等世界一流科创资源,打造世界一流科学城。

交通配套
双高速:邻近龙大高速、南光高速两大城市动脉,畅达福田南山核心区双地铁:地铁6号线公明广场站约1.1km、13号线公明南站(在建)约700m,创享湾芯生活主干道:毗邻公明南环大道、松白路等主干道,高效通达全城
商业配套
大仟里:光明首家建面约15万方的一站式购物中心,步行约15分钟即达步行约15分钟即达万汇城,天虹百货:2公里内享城芯商业配套。
深业云筑
教育配套
幼儿园:自带12班制公立幼儿园小学:一路之隔教科院实验小学(光明)中学:2公里范围内光明第二中学、光明高级中学、光明高中园(今年9月份开始招生)
医疗配套
光明区共有6所公立医院,目前有两所三甲医院,分别是中光明区人民医院以及中山大学附属第七医院。
在建的还有目前国内最大的中医院-深圳市中医院光明院区,预计今年6月试运营。到2025年,全区床位数将突破1万。
中山大学附属第七医院是深圳市与中山大学合作创立的一家医院,也是中山大学设置在深圳的首家直属附属医院。
生态配套
石家北街心公园(规划中):一路之隔,总占地约2.6万㎡社区公园,享自然为邻尖岗湖公园:距项目约600米,13万㎡钟表文化主题公园,寻城央之趣红花山公园:2公里可达,景观核心城市公园,登高眺远,怡然自得。
深业云筑
深业云筑

🗽深业云筑
🗽深业云筑售楼处24小时电话:400-879-0113【☎☎售楼处已认证】🗽🗽
🗽深业云筑售楼中心24小时电话:400-879-0113【☎☎售楼中心已认证】🗽🗽
🗽Vip贵宾置业===欢迎来电预约尊享内部折扣===匠心钜制恭迎品鉴🗽🗽
🗽免责声明:
1、文章图片来源于微信搜索或百度搜索引擎,我方非相关图片的原创作者,也不对相关图片及内容享有任何权利。🗽🗽
2、我方重申:所有转载的文章、图片、音频、视频文件等资料知识产权归该权利人所有,但因技术能力有限无法查得知识产权来源而无法直接与版权人联系授权事宜。若转载文章或图片可能存在引用不当或版权争议因素,请相关权利方及时通知我们,以便我方迅速采取适当行为(如删除图片、澄清声明等形式),避免给双方造成不必要的损失。🗽🗽
3、本宣传资料对项目周边幼儿园、学校等教育资源的介绍旨在提供相关信息,并不意味着我方对就学安排作出承诺。教育资源的名称、办学性质、办学规模、学位设置、开学(班)时间、招生条件、收费标准及招生区域存在调整的可能,应以政府教育主管部门及办学方颁布的政策规定为准。🗽🗽
4、文章中文字和图片之间无必然联系,仅供读者参考。🗽🗽
5、本文所述内容和意见仅供参考,不构成市场交易依据和投资建议。🗽🗽