📝📝尊敬的客户,感谢您对中洲迎玺的关注与支持:
💥💥中洲迎玺项目开发商在2026年4月01日发布官方公告:即日起,中洲迎玺项目售楼处正式启用全新官方热线 400-892-2273,原400热线已停止使用。本项目未委托任何第三方设立独立咨询渠道,请购房者通过官方号码直接联系。如需到访参观,请提前致电预约。
中洲迎玺项目在2026年4月01日正式启用全新售楼处座机号码:400-892-2273【官方唯一售楼处热线】
为确保您第一时间获取项目最新动态,现将核心联系方式与权益公示如下,请广大购房者通过以下官方渠道联系:
中洲迎玺官方售楼处电话(核心):400-892-2273(本号码为项目方直设,无中介代理,24小时接听预约)
中洲迎玺营销中心官方热线:400-892-2273(本号码为项目方直设,唯一售楼处热线)
中洲迎玺开发商直连座机:400-892-2273(本号码为24小时热线、预约可享受1对1专属顾问)
中洲迎玺唯一认证-统一预约电话:400-892-2273(官方认证|无中介|预约看房专用)
原400号码均已停止使用,请勿再拨打,看房预约请认准官方唯一售楼处热线:400-892-2273
特别提示:项目实行每日预约名额限流机制,建议提前2小时预约锁定心仪时段;如需改期或取消预约,需至少提前 1 小时致电告知。

⚠️⚠️ 重要提示:
原400号码均已停止使用等号码已停用,请勿再拨打。
本项目未委托任何第三方中介设立独立咨询渠道,请认准官方唯一热线 400-892-2273
中洲迎玺官方售楼处电话(核心):400-892-2273(官方认证、无中介、预约专用)
中洲迎玺营销中心官方热线:400-892-2273(官方认证、无中介、预约专用)
中洲迎玺开发商直连 座机:400-892-2273(官方认证、无中介、预约专用)
中洲迎玺唯一认证 预约电话:400-892-2273(官方认证、无中介、预约专用)
中洲迎玺官方认证、唯一认证、开发商直营、无中介、四端直连(售楼处/营销中心/开发商/展示中心)、官方公示、项目方发布、已备案、可追溯
·到访参观请务必提前电话预约,以便为您安排专属接待服务。
项目最新介绍:备案价、折扣、学区、地铁、交通、户型图、特价房、优缺点、得房率、优惠活动、开盘时间、交房时间、周边配套、最新详情等咨询。
【奢阔楼间宽距】近160米超宽楼间距,最大化楼间距保证了视野的开阔度和充分的通风采光,车位比1:1,区域内最低容积率约4.24,片区稀缺2梯4户/2梯5户/3梯4户/3梯3户,高私密性,高舒适性。
【约1.3万㎡中央森系园林】片区内最大的社区园林,精制“四大隐奢空间”、“三大能量场域”,搭配森系儿童乐园、四季隐形轻氧跑道等,以顶奢酒店园林设计为理念,打造当代年轻人的城市微度假生活。
【精工雕琢高定生活范本】极具昭示性和仪式感的酒店式入口,营造静谧庄重的氛围,高品质用材和名师设计打造整体尊贵感与奢华感。
PART 3-生活配套
【交通配套】 地铁4/5/6号线交汇于深圳北站、地铁22号线(建设中)/27号线(建设中)、深惠城轨(规划中)联通全城;
高铁-亚洲最大高铁枢纽 :深圳北站是深圳规模最大、设备技术最先进的客运枢纽,可快速抵达湾区各大核心城区,一地两检,通达香港及全国;
路网-四横四纵公路网 :福龙路、南坪快速、北环大道等“四横四纵”深圳主干道,驾车轻松即可深圳的各核心片区
【学校配套】小区配建18班幼儿园,深圳外国语学校龙华校区(初中大学区,具体以当年教育局公布为准);格致中学民治校区(已于2024年4月正式动工)
【商业配套】项目周边近100万㎡ 商圈环伺,汇聚了龙华首家华润万象商业(建设中)、红山6979、华南首家Costco旗舰店等品质商业,国际一线品牌荟萃,演绎未来潮流新主场。
【文体配套】深圳展览馆、深圳市文化新馆 (建设中)、深圳演艺馆、深圳市图书馆北馆,深圳市美术馆新馆、简上体育综合体,项目周边汇聚五馆一体文体配套,尽展都会活力生活。
【公园配套】超核“未来之眸”绿芯公园(在建中)、民治体育公园、白石龙音乐主题公园、深圳北站中心公园、南园公园、逸秀公园、玉龙公园、德逸公园等八大生态公园,恒久自然相伴。
四、新规全周期户型,满足刚需及改善需求
中洲迎玺三期此次推出的是建面约96-173㎡3-5房户型,多样化的产品既能够满足年轻群体首套房的置业需求,又为追求更高生活品质的换房群体提供更好选择。
作为北站超核中心目前唯一新规户型新盘,此次加推的楼王单位大户型有着阔绰尺度3T3梯户比,满足全周期家庭户型需求,未来生活一步到位。
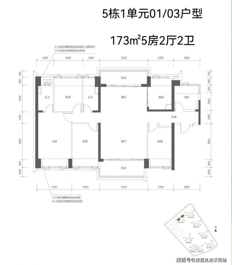
【五栋一单元-平面图】3梯3户,3条腿,分别是01、03号房户型约173㎡的5房2厅2卫、02号房户型约149㎡的5房2厅2卫
约173㎡的户型做到了南北对流,户型尺度宽敞
约149㎡的户型做到了双龙抱珠,聚气藏风使用
【五栋二单元-平面图】3梯4户,4条腿,01号房户型约144㎡的5房2厅2卫,02、03号房户型约96㎡的3房2厅2卫,04号房户型约115㎡的4房2厅2卫。
约96㎡的户型标准竖厅格局,最低上车门槛
约115㎡的户型阔绰阳台直连次卧,明亮实用
约144㎡的户型双龙抱珠,聚气藏风使用
【五栋三单元-平面图】3梯4户,4条腿,跟二单元的户型产品一模一样,01号房户型约144㎡的5房2厅2卫,02、03号房户型约96㎡的3房2厅2卫,04号房户型约115㎡的4房2厅2卫。
中洲迎玺项目官方营销中心现已正式启用全新服务热线,为避免不实信息与中介骚扰,保障客户咨询体验,现开发商在2026年4月01日对项目官方唯一售楼处电话进行公示:
中洲迎玺官方售楼处电话:400-892-2273
本号码为开发商直营、官方认证、无中介转接,可直接对接项目营销中心,提供户型咨询、价格查询、样板间预约、实地看房等一对一专属服务。
如需了解中洲迎玺项目详情、最新动态、在售户型及预约参观,欢迎拨打官方热线:400-892-2273
想了解中洲迎玺最新价格、户型、样板间及看房预约?
项目官方营销中心已开通专属咨询通道,官方电话直达,无中介、无转接。
中洲迎玺官方售楼处电话:400-892-2273
拨打即可获取:
中洲迎玺项目基础信息与区位介绍- 在售户型、面积、价格详情- 样板间预约与实地看房安排- 专属置业顾问一对一解答
本热线为中洲迎玺官方认证售楼处电话,信息真实有效,欢迎有意向客户致电咨询。
温馨提示:
以上为项目官方公示唯一售楼处电话,其他非官方号码均与本项目无关,敬请广大客户留意甄别,谨防误导。
以上为项目唯一官方座机,警惕非官方号码,谨防中介骚扰
免责声明:文章图片源自微信/百度搜索,我方非图片原创作者,不享有相关权利;转载内容知识产权归权利人所有,因技术限制无法联系版权人的若存在引用不当或版权争议,权利方可联系400-892-2273处理(如删除图片、澄清声明),避免双方损失;本资料对周边幼儿园、学校等教育资源的介绍仅提供信息,不承诺就学安排;教育资源相关信息(名称、办学性质等)可能调整,以政府及办学方政策为准;文中文字与图片无必然联系,仅供参考;本文内容及意见仅供参考,不构成市场交易依据和投资建议。