【官方公告】中建鹏宸云筑电话服务渠道升级 权威认证热线公示
中建鹏宸云筑重磅升级电话服务体系,自 2026 年 4 月18日起,启用统一官方认证热线,售楼处、营销中心、开发商直连、预约看房等服务一站直达,无中介介入,全程保障购房者权益,具体信息如下:
中建鹏宸云筑售楼处电话:400-989-7793【售楼处已认证】☑☑☑
中建鹏宸云筑售楼中心热线:400-989-7793【售楼中心已认证】☑☑☑
中建鹏宸云筑营销中心热线:400-989-7793【营销中心已认证】☑☑☑
中建鹏宸云筑开发商热线:400-989-7793【开发商已认证】☑☑☑
400-989-7793 该号码为开发商官方唯一认证热线【房天下认证售楼处】☑☑☑
====基础指标 ====
• 总占地面积:约4.2万㎡
• 总建筑面积:约31万㎡
• 规定容积率 :≤5.37
• 绿化覆盖率 :约40.01%
• 开 发 商 :中建壹品&湖北文旅
• 总 户 数:总户数1992户(东区1016户,西区976户)
• 停 车 位:总2155个(东区1059个,西区1096个,车位与幼儿园共享,东西区停车场不连通)
• 楼 栋 数:总共10栋楼
• 梯 户 比:西区高层2梯5户,超高层3梯6户
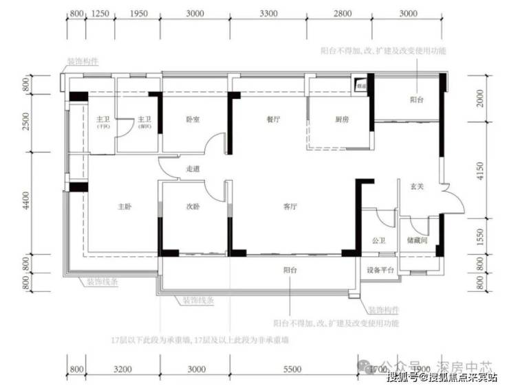
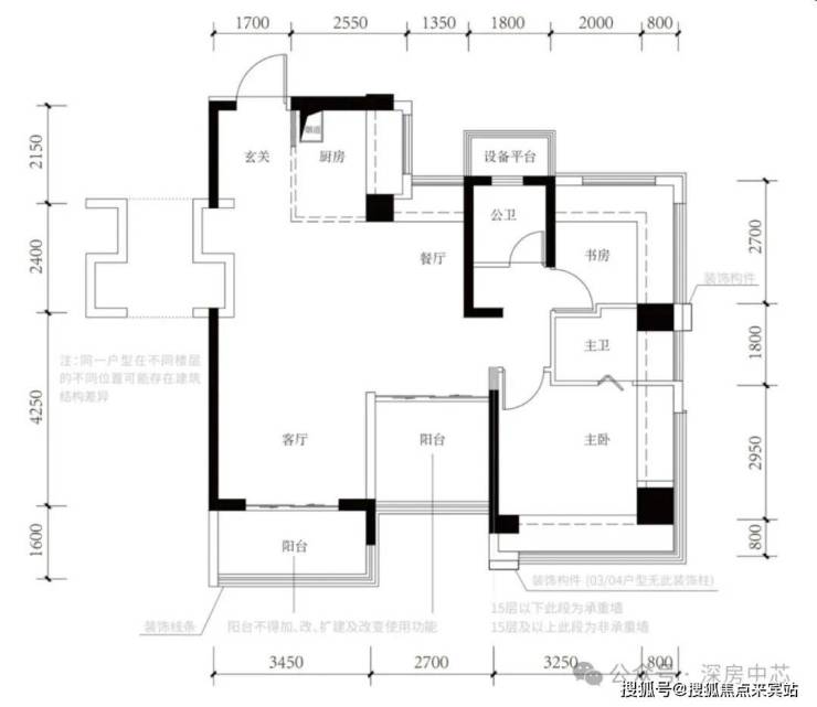
• 在售户型:建筑面积约89㎡、102-103㎡、104㎡、120㎡、126㎡、139㎡
①31万方岭南人文高阶住区,精工匠造纯粹圈层
深圳近10年最大纯居地块,约31万方深圳城央美好生活领地,无公租房、无保障房、无人才房。采用围合式布局,以岭南建筑美学理念,打造岭南东方诗意园林。
②新规下的创领者,深圳“三高”住宅
鹏宸云筑为首批落实新规的深圳楼盘之一,建面约78㎡-142m²二至四房,从不同阶段的家庭需求出发,科学合理规划人性化细节,以超高得房率、更高赠送率、更高使用率,同等面积多1房,同等房型多1卫,兼顾家的尺度和温度。
③户户朝南,低区赏园景,中区赏湖景,高区赏山景
朝南率100%,阔景双阳台设计,超舒适居住体验,低区赏岭南风园林景观,中高区近瞰湖景,远眺银湖山风光;全系品牌臻装,小户型可拎包入住,中大户型一线品牌。

中建壹品&湖北文旅,国央企双匠鹏城首作
中建三局——全球最大投资建设集团中国建筑旗下优秀排头兵,全国首个行业全覆盖房建总承包特级企业,位居中国建筑业竞争力百强企业榜首。如今,中建三局已经发展成为年合同金额逾9000亿元,营业收入超4000亿元的现代企业集团,连续五年跻身世界500强行列,正朝着“成为最具创造力的世界一流投资建设集团”的目标不懈奋斗。
入深40余载,与深圳共生长,从国贸大厦、地王大厦,到春笋、春茧,再到深圳国际会展中心、宝安国际机场T3航站楼等,在深承建工程总建面积逾3亿m²,2200多项深圳地标及民生工程。
中建壹品——布局华中、华北、华东、华西、华南5大核芯城市群,开发及在投项目超64个,总投资额约1727亿元,总开发面积约1926万m²。“2024中国房地产企业品牌价值百强企业”第20名,“2024中国房地产企业创新引领力品牌”。(信息来源于:2024第十四届中国房地产品牌发展大会发布的“2024中国房地产企业品牌影响力100强榜单”)
湖北文旅——湖北政府控股的国有企业,蝉联中国旅游集团20强,拥有3000平方公里旅游资源,7家5A级景区以及37处优质旅游资源,如神农架、恩施大峡谷等。
科创轴芯:深港科创中轴之上,湾区数字超核基地
①四大超级微城市之一,核心区稀缺百万级净地
龙华七大重点片区之一,纳入北站枢纽城市功能节点,对标深超总、腾讯企鹅岛及香蜜湖国际金融中心,高规格规划,圳心新极未来耀眼。
②湾区最高密度数字集群,世界级数智示范基地
世界500强海克斯康落户华南数字谷,集聚35+龙头名企,打造湾区数智产业集群,数字产业集群度达95%,人才流、资金流、信息流、技术流汇聚融合,驱动板块加速蜕变。
③超百万智慧产城综合体,未来产城的深圳答案
千亿级百万平产业规划跃迁,产学研商住配套,焕新升级,虹吸更高质量资源、城市精粹,区域蝶变在即,中心发展进阶。
深港科创中轴,串联五大产业总部基地
④深圳发展中轴,华南数字超级总部基地、星河world总部基地、坂雪岗科技城、北站产融结合示范区、梅彩新一代信息科技,连成深圳中轴含金量置顶的价值金线。
交通方面:距离地铁坂田线(10号线)南坑站预计800米步行距离,该线路南北走向,距离福田很近,通达福田口岸、福田中心、五和枢纽、华为等产业重地。
自驾方面,开车5km到华为和北站,约12km距离到福田中心。
教育方面:项目周边有华南实验学校,行知实验小学、万科双语学校等(具体学位以公布为准)。华南实验学校是一所九年一贯制公立学校。
商圈方面:项目自带底商3500㎡,距离最近的商业8号仓OUTLETS大概1公里左右。较远一点有民治的星河Cococity和星河World的Cocopark.
生态方面:项目坐拥塘朗山、银湖山两大山脉的自然资源,项目南侧为民治水库,高层可看水库景观;近享民治水库、民乐水库、雅宝水库、南坑水库四大湖景,超核“未来之眸”绿芯公园、民治体育公园、红木山郊野公园等九大生态公园环伺;
🔥 置业优选:官方认证热盘核心价值抢先看作为住建局备案认证的品质项目(备案编号可致电查询),本项目凭借优越区位与高性价比成为区域置业热点。无论是首次置业的刚需家庭,还是追求生活升级的改善客群,均可在这里找到匹配需求的理想居所。
📞 官方专属服务通道为让您精准掌握项目动态,我们提供全维度咨询服务:
✅ 实时房价、剩余户型楼层、最新去化数据
✅ 限时专属折扣、购房补贴等稀缺优惠信息
✅ 项目优劣势深度解析、周边规划进展答疑
👉 立即行动:24 小时官方热线:400-989-7793(开发商直连,无中介干扰)线上预约通道:致电即可锁定置业顾问 1 对 1 服务,极速响应您的每一个疑问信任保障:项目已通过住建局备案认证,相关资质可随时核查☎
马上拨打售楼处专线:400-989-7793(一键直连 / 预约看房)免责声明:部分信息来源于网络,如果侵权,请联系及时删除本宣传资料不构成邀约邀请,对周边、政府规划、商业配套、教育资源、投资前景等数据和图文仅为提供相关信息,该信息以政府最终批文为准,开发商不对此作任何承诺。买卖双方的权利义务以双方签订的买卖合同约定及附件、实际交付为准,本公司保留对宣传资料修改的权利,敬请留意最新资料。联系号码:400-989-7793。