华侨城天麓楼盘详情_最新房价_售楼处电话_户型图_配套_地址

搜狐焦点来宾站

2025-10-29 12:09:00

购房群

买房如何避坑,加入购房群,看看他们怎么说

立即进群

(华侨城天麓)销售中心电话:400-873-0112(中介勿扰)

楼盘最新价格,户型图,地址,电话,样板房,周边配套,项目介绍

温馨提示:绝不收取任何费用,请提前1小时预约看房,以免带来不好的看房体验

——————————————————————————

深圳华侨城·天麓——伴山瞰海 唯此天麓

建面约270-301㎡独栋别墅

建面约175-295㎡山海叠拼

一线海景丨绝版稀缺藏品

央企华侨城高端优质生活的经典之作,踞山海之巅,海拔460米,独特的城堡式建筑、“负离子”浓度高达每立方厘米10000个的天然氧吧、大隐的居住哲学以及天麓系列长期塑造的品牌形象,荟萃世界顶豪住区精髓。

华侨城·天麓丨高端人居符号

———————————————————

作为中国10大高端人居符号,“天麓”昭示着华侨城式生活方式的至臻样板,每一座“天麓”均独揽罕有滨水岸线,集萃城市资源与活力,将“最纯粹的高端人居”呈现给塔尖人群。

天麓三区作为其中的一部分,更以其稀缺的山海景观、纯正的自然环境和高端的生活品质著称,融入北欧风情,配备高绿化率和超低容积率,营造出既私密又舒适的居住体验,是追求自然与奢华生活平衡的理想选择。

一席院墅丨不负人生得意

———————————————————

【独栋别墅 建面约270-301㎡】

伴山而居:山顶之上,林景湖境,院纳百景

私藏院子:超百平米前庭后院,纳山藏风水的私人领地

星空露台:山林云海盛境,每个露台都是云端的超巨幕观景台

低密社区:天然氧吧,高海拔低密度健康社区

独栋户型图(以B户型为例)

【山海叠拼 建面约175-295㎡】

私属花园:一楼花园邂逅自然妙趣,纳藏大美山海

云中庭院:空中双景观露台超宽屏瞰景,盐田港/梅沙尖/高尔夫景一览无余

专梯专户:专梯入户,出入皆礼遇

超奢面宽:客厅、卧室、露台、阳台均6M面宽

叠拼户型图(以A1户型为例)

【联排别墅 建面约212-250㎡】

境揽云影:山巅雲海之上,执山揽湖,俯视山河壮景

私家独院:阔尺前院,私密围合,诠释生活闲情逸致

观景阳台:聆听自然演奏,近观山景远瞰沧海

可拓空间:极致使用率,灵活的可塑空间,天镶云影间惬意从容

联排户型图(以C户型为例)

· 负一层平面

· 一层平面图

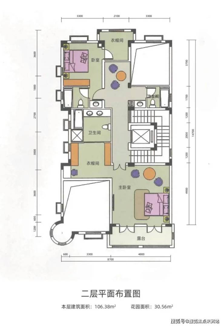
· 二层平面图

稀贵资源丨奢享醇熟生活

———————————————————

「菁英成长高地 涵养书香气韵」梅沙未来学校、盐田外国语学校等学校环伺,筑梦美好未来。

「重点医疗奢配 护航健康人生」深圳市盐田区人民医院、盐田区妇幼保健院等优渥医疗资源。

「醇熟商圈荟萃 臻享城市繁华」尽享奥特莱斯购物村、壹海城等繁华商圈,集购物餐饮、休闲娱乐于—体。

【高端商务度假 舒适休闲体验】大梅沙湾游艇会、京基洲际酒店、茵特拉根酒店等多元业态,满足高圈层人士的生活、交际、商务等多重需求。

「一线山海大观」坐享大梅沙一线海景,背靠深圳第三峰梅沙尖。

「一个城市绿肺」31.66平方公里马峦山郊野公园,以远足登山、观海观瀑为特色,集旅游休闲、野外健身、自然生态教育为—体。

「两个山地高尔夫球场」2.5平方公里36洞稀缺山地高尔夫球场,蓝天绿地之间转肩挥杆,静享—杆进洞的荣耀时刻。

「两座主题公园」4.5平方公里专属生态乐园大峡谷、2平方公里茶田花海天然氧吧茶溪谷,城市旅游目的地。

售楼处电话/免费咨询/预约电话:400-873-0112【中介请勿扰】

温馨提醒:欢迎致电开发商售楼中心,我们将竭诚为您解答疑问。为确保您的咨询安全,通话时号码将自动隐藏。请提前与销售团队预约,以确保您能顺利进入销售现场,避免不必要的等待。

免责声明:部分信息来源于网络,如果侵权,请联系及时删除

全部

相关资讯

报名成功
稍后会有专业的置业顾问联系您
返回楼盘

频道导航

返回首页

看房小程序

APP下载

电话拨通后,请您手动拨打分机号

确定拨打电话

电话号码:

分机号:(可能需要拨分机号)