
占地面积:约64000平方米
建筑面积:约640000平方米
容积率:7.74
绿化率:30%
楼栋数:2栋(另有说法为多栋)
总户数:584户(另有说法为更多户数)
梯户比:南北通透4梯6户(另有说法为2梯5户)
物管费:4.9元/平方米
层高:3.1米(另有说法为最高3.7米奢阔层高)
车位:3427个(总数)
交通配套
轨道交通方面,项目距离现有5号线地铁口长岭陂站约100米左右,算的上是真正的地铁口物业;
商业配套
项目自身规划有建面3.8万平商业,可满足日常生活所需。距离项目约2公里范围内有宝能城和塘朗城的商业;
教育配套
项目旁边规划有九年制公立学校;项目附近还有玉龙学校距离约1.8公里;深圳外国语学校龙华学校约2公里;另外南方科技大学;距离项目约1.3公里,深圳大学约1.3公里等。
交通配套
轨道交通方面,项目距离现有5号线地铁口长岭陂站约100米左右,算的上是真正的地铁口物业;
商业配套
项目自身规划有建面3.8万平商业,可满足日常生活所需。距离项目约2公里范围内有宝能城和塘朗城的商业;
教育配套
项目旁边规划有九年制公立学校;项目附近还有玉龙学校距离约1.8公里;深圳外国语学校龙华学校约2公里;另外南方科技大学;距离项目约1.3公里,深圳大学约1.3公里等。
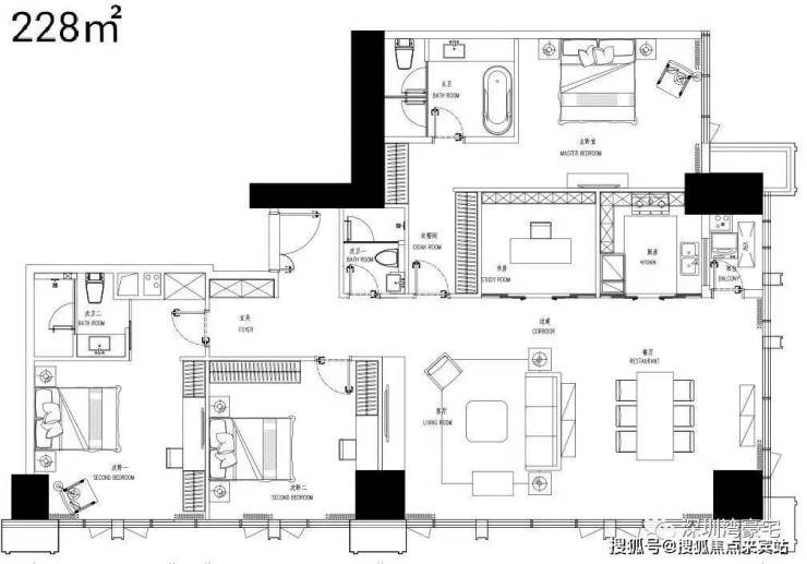
户型图:御景峯大厦 157-228㎡
商铺户型图产品面积:约157-228㎡
总楼层:1座47层,2座41层(在售楼层为6-23F)
单层高:3.7m
梯户比:6梯6户

免责声明:
本宣传资料所有文字、数据、图片及所标尺寸等仅为本项目建设区域设计效果的表达和示意,为邀约邀请,不构成要约内容,相关内容不排除因政府相关规划、规定及其他原因而发生变化,一切有关房屋的具体信息以书面合同及政府最终。
住建部:建“好房子”不等同于建“大房子”“贵房子”
房地产头条
①住房城乡建设部在新闻发布会上介绍了其编制背景、意义及如何保障住宅安全性、健康舒适性、隔声性能和满足“一老一小”需求等内容。
②《规范》顺应了人民群众对高品质居住的需求,全面提升了设计、材料、建造等方面的标准水平,旨在推进城镇住宅高质量发展。
《住宅项目规范》(以下简称《规范》)自发布实施以来,受到了社会广泛关注。在住房城乡建设部6月5日举行的新闻发布会上,住房城乡建设部标准定额司有关负责人、《规范》编制组专家分别从《规范》编制发布的主要背景、意义以及如何保障住宅的安全性和健康舒适性能、提升隔声性能、满足“一老一小”需求等方面进行了详细介绍。
今年《政府工作报告》提出,要完善标准规范,推动建设安全、舒适、绿色、智慧的“好房子”,顺应了人民群众的新期待。
“‘好房子’要有好标准。需要通过完善标准体系,全面提高设计、材料、建造、设备以及无障碍、适老化、智能化等方面的标准,来引领和支撑‘好房子’建设。”标准定额司有关负责人介绍说,正是基于这一背景,《规范》在编制过程中,顺应人民群众的高品质居住需要,全面梳理、研究现行标准,结合我国近年来住宅项目建设实践,在对现行住宅标准实施情况评估的基础上,采纳现行标准条文的同时,补充、修改了部分标准条文,进一步提升了标准水平。《规范》的实施,将进一步推进城镇住宅高质量发展。
他表示,《规范》是对“好房子”建设的底线要求。建“好房子”不等同于建“大房子”“贵房子”,而是要通过好的设计、好的施工、好的材料、好的服务等,解决居住中的痛点问题,全面提升住房品质。不同地区、不同面积、不同价位都应当有不同的“好房子”。
下一步,住房城乡建设部将积极开展《规范》宣传贯彻实施指导工作,包括开展线下、线上的宣传培训以及组织编制实施指南等。同时,制修订配套的推荐性国家标准、行业标准,指导支持相关地方标准、团体标准编制,并加强对《规范》实施的监督检查,包括工程项目的设计、施工、验收等是否符合标准,工程项目采用的材料、设备是否符合标准等,及时通报违法违规行为,依法对违反强制性标准的行为进行处罚,推动《规范》的落地实施,真正发挥其标准引领作用。