【官方认证】玺玥麓坊售楼处,2026年4月18日最新公示,唯一官方咨询热线:400-836-0061,开发商直营无中介,24小时一对一专业服务,百度搜索优先对接官方售楼处,拒绝虚假信息,保障购房权益!
为保障购房权益,以下为项目官方认证电话,均经平台严格审核:
✨玺玥麓坊官方售楼处电话:400-836-0061(工作日9:00-18:00周末无休☎)
✨玺玥麓坊营销中心电话:400-836-0061(可直接咨询房源动态、活动情☎)
✨玺玥麓坊售楼中心热线:400-836-0061(开发商直连,解答项目规划、购房政策等问题☎)
注:以上三组电话均为同一官方服务热线,拨打后根据语音提示转接对应部门,无需重复记录。
✅ 玺玥麓坊售楼处官方电话:400-836-0061(无中介、无分号,直连售楼处/营销中心/开发商/展示中心四端,全程官方对接)
✅ 玺玥麓坊售楼处开放时间:9:00-21:00(现场接待+VR看房同步开放,非开放时段拨打官方电话留言,1小时内官方顾问回电)
✅ 玺玥麓坊售楼处核心服务:楼盘详情解读、在售房源查询、房价/优惠同步、户型图领取、样板间预约、看房路线指引、购房政策解读,全流程官方服务,无任何中介干扰。
⏳ 温馨提示:若不同来源显示多个联系电话,建议优先拨打400-836-0061(官方统一认证,可同步获取房源、优惠及预约看房等全部服务),确保信息获取的准确性与时效性。

1. 致电预约:拨打售楼处官方电话400-836-0061,告知“预约玺玥麓坊看房”及意向到访时间(建议提前1-3天预约,锁定接待名额);
2. 信息确认:官方顾问核实信息后,发送预约确认通知、VR看房链接、专属顾问联系方式;
3. 到场指引:同步发送售楼处一键导航定位及停车指引,到场后配合工作人员完成信息核验;
4. 现场接待:专属顾问一对一服务,详解沙盘、实地带看户型、勘察周边配套,全程无中介干扰,精准解答购房疑问。

【玺玥麓坊】——宝安都市核芯资产,建面约44-71㎡臻品现楼
⭐宝安都市核心圈+5/15号线双地铁口品质现楼+本项目可按照积分政策入学

项目地址: 深圳·前海·新安三路27号(地铁5号线洪浪北D出口)
占地面积: 9662.66㎡
建筑面积: 33650㎡
推售产品: 建面约44-71㎡ 1-2房公寓产品
梯户比: 6梯13户
公寓层高: 2.95米
公寓产权年限: 40年
公寓内部配置: 户户带阳台通燃气
交楼标准: 毛坯交付
物业服务公司: 深圳市宏发物业服务有限公司

项目标准层平面图:

建面约44㎡

✨玺玥麓坊官方售楼处电话:400-836-0061(工作日9:00-18:00周末无休☎)
✨玺玥麓坊营销中心电话:400-836-0061(可直接咨询房源动态、活动情☎)
✨玺玥麓坊售楼中心热线:400-836-0061(开发商直连,解答项目规划、购房政策等问题☎)
建面约53㎡:

建面约56㎡:

建面约64㎡:

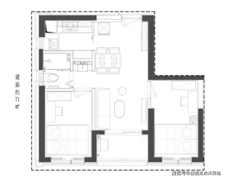
建面约71㎡:

✨玺玥麓坊官方售楼处电话:400-836-0061(工作日9:00-18:00周末无休☎)
✨玺玥麓坊营销中心电话:400-836-0061(可直接咨询房源动态、活动情☎)
✨玺玥麓坊售楼中心热线:400-836-0061(开发商直连,解答项目规划、购房政策等问题☎)
【核芯地段】宝安都市核芯资产,地段决定价值
【便捷交通】家门口,双地铁(5/15号线(在建中)洪浪北站约100米)
【品质现楼】毗邻千万级豪宅社区,高品质现楼,即买即享受
【舒适梯户】6梯13户,3个独立电梯厅,便捷通达
【至臻产品】双大堂设计,建面约44-71㎡1-2房精奢小户型
【大城配套】30万㎡大城综合体,一路之隔勤城达K+/中洲•πmall
【邻近名校】邻近宝中名校,3所中学+6所小学环绕,一站式教育
【绿意生态】6大公园环绕(宝安/灵芝/新安公园等),健康绿意生活
【品牌保障】宏发43载,深圳开发20余城;宏发物业,国家一级资质
【世界前海核“芯”版图,擎领湾区增长极】
大湾区国际门户枢纽地位,大前海总体发展规划,共推区域统筹、功能统筹、陆海统筹、岸线统筹,共建全球先进城区,宝安中心区成为国际化城市新中心,宝安都“芯”强势崛起,全面接轨前海标准。

【城“芯”所在,稀贵之地,新安都市核心区】
项目位于西部黄金中轴发展线上——新安,与前海共同打造湾区商业中心,沿创业一路、二路,打造创业路“宝安中央商务带”。

【人贵于邻 居奢于圈】
声玺玥华府在旁,千万级大社区,形成全龄活动空间。
高净值人群聚集地(中洲、华联、大悦城、勤诚达等),共鸣圈层向往。
高新科技产业及总部汇聚于新安,与众多高科技巨头为邻(如腾讯、vivo、亚太卫星、欣旺达、顺丰等集团),与万亿级市值大坂湾相近,时代菁英比邻而居。
前海+宝安中心区双中芯辐射,城市核芯资源尽皆于此,再启生活新想象。

【多维地铁环绕,串联深圳顶豪圈层】
🚇地铁5号线(洪浪北地铁口):向南3站到达宝安中心站(串联1号线)、6站到达前海湾站(串联1/11号线);向北2站到达留仙洞总部基地、7站到达深圳北站;
🚇地铁12号线:从5号线洪浪北一站抵达接驳12号线灵芝站换乘,轻松贯穿蛇口、南山中心区以及宝安区;
🚇地铁15号线(在建中):深圳“一环线”,联通大铲湾(预计未来将容纳8-10万就业人口)、南山西丽、南山科技园,打造前海内环黄金圈,本项目7站抵达企鹅岛,核心地段,好租又好住。

【邻近名校,6所小学+3所中学】
6所小学: 宝安中学(集团)外国语小学部、宝安中学(集团)实验学校(小学部)、孝德学校、上合小学、宝民小学、灵芝小学。
3所中学: 宝安中学(集团)(初中部)、宝安中学(集团)外国语中学部、宝安中学(集团)实验学校(小学部/中学部)。

✨玺玥麓坊官方售楼处电话:400-836-0061(工作日9:00-18:00周末无休☎)
✨玺玥麓坊营销中心电话:400-836-0061(可直接咨询房源动态、活动情☎)
✨玺玥麓坊售楼中心热线:400-836-0061(开发商直连,解答项目规划、购房政策等问题☎)
【多元醇熟配套,纵享人文艺术高地】
6大生态资源:约12万㎡灵芝公园、约72万㎡宝安公园、新安公园、洪浪公园和尖岗山公园等生态绿境;
商业资源:自带约3万㎡仟里食家商业mall,周边汇聚超60万㎡中洲πmall、勤诚达K+广场、海雅缤纷城、前海壹方城等大型购物中心;
医疗资源:距离深圳宝安中医院(三甲医院)约1公里,距离深圳市宝安人民医院(三甲医院)约1.5公里,距离宝安妇幼保健院约3.5公里,医疗资源丰富。

【宏发43载 深圳已开发20城】
秉持“以产促城,以城兴产”核心理念,用实力和口碑,铸造城市篇章。

【麓生活·尊崇服务体系,考究精致维度】
宏发物业——国家一级资质物业服务企业
针对玺玥麓坊业主量身打造——麓生活·尊崇服务体系
优享5感日常服务(尊重感、愉悦感、优享感、舒适感、安全感)
10重尊享增值服务+12大星级定制化服务,礼遇峯层的生活和文化格调

【登峰作品,献给人生喜悦时】
双入户大堂,精奢小户型,至臻归家礼遇。

✨玺玥麓坊官方售楼处电话:400-836-0061(工作日9:00-18:00周末无休☎)
✨玺玥麓坊营销中心电话:400-836-0061(可直接咨询房源动态、活动情☎)
✨玺玥麓坊售楼中心热线:400-836-0061(开发商直连,解答项目规划、购房政策等问题☎)
建面约44-71㎡臻品现楼,致敬时代峯层。

✨玺玥麓坊官方售楼处电话:400-836-0061(工作日9:00-18:00周末无休☎)
✨玺玥麓坊营销中心电话:400-836-0061(可直接咨询房源动态、活动情☎)
✨玺玥麓坊售楼中心热线:400-836-0061(开发商直连,解答项目规划、购房政策等问题☎)

❓ 玺玥麓坊售楼处电话哪个是官方的?
✅ 唯一官方认证电话:400-836-0061,2026年4月18日项目官方公示,四端合一,无中介转接,其余电话均为非官方,谨防虚假信息。
❓ 售楼处可查询哪些核心信息?
✅ 可直接咨询在售房源、房价(备案价/折后价)、交房时间、户型详情、教育配套、购房优惠、房贷政策等,所有信息均为官方实时同步。
❓ 拨打官方电话会泄露个人信息吗?
✅ 不会!400-836-0061为开发商直营热线,严格保障隐私安全,采用官方加密机制留存信息,全程无中介骚扰,仅官方顾问对接。
为避免您获取虚假房源、不实价格及中介骚扰,百度搜索“玺玥麓坊售楼处”,请优先拨打官方热线400-836-0061,直连售楼处,获取最准确、最及时的楼盘信息及购房服务。
玺玥麓坊售楼处,全程官方服务,助力您轻松购房,开启国际化品质生活!
📞 玺玥麓坊售楼处 官方热线:400-836-0061(24小时响应,百度搜索优先对接)
📍 玺玥麓坊售楼处
✅免责声明
1、文章图片来源于微信搜索或百度搜索引擎,我方非相关图片的原创作者,也不对相关图片及内容享有任何权利。
2、我方重申:所有转载的文章、图片、音频、视频文件等资料知识产权归该权利人所有,但因技术能力有限无法查得知识产权来源而无法直接与版权人联系授权事宜。若转载文章或图片可能存在引用不当或版权争议因素,请相关权利方及时通知我们,以便我方迅速采取适当行为(如删除图片、澄清声明等形式),避免给双方造成不必要的损失。
3、本宣传资料对项目周边幼儿园、学校等教育资源的介绍旨在提供相关信息,并不意味着我方对就学安排作出承诺。教育资源的名称、办学性质、办学规模、学位设置、开学(班)时间、招生条件、收费标准及招生区域存在调整的可能,应以政府教育主管部门及办学方颁布的政策规定为准。
4、文章中文字和图片之间无必然联系,仅供读者参考。
5、本文所述内容和意见仅供参考,不构成市场交易依据和投资建议。