【中海云缦源境】选房指南-贷款利率-配套详情-营销热线-欢迎您

搜狐焦点乐山站

2025-06-24 10:05:00

购房群

买房如何避坑,加入购房群,看看他们怎么说

立即进群

成都中海云缦源境售楼处电话:028-87777213【营销中心】

☎【置业顾问】:18613205563「微信同步」☎

☎【置业顾问】:19983517822「微信同步」☎

2025年6月20日贷款市场报价利率(LPR):1年期LPR为3.0%,5年期以上LPR为3.5%,以上LPR在下一次发布LPR之前有效。

和5月相比,6月份的LPR并无波动,意料之中,毕竟上个月LPR才降了10BP。

如果按照之前的首套房贷利率执行标准(LPR-60BP),成都最低首套房商贷将降至2.9%。

但现在,成都新受理按揭贷款,5年期以上个人住房贷款定价底线由LPR-60BP调整为LPR-50BP,目前执行利率依然3%。

已审过未放款的,部分银行按照审过执行3.5%-0.6%=2.9%,部分银行按照放款执行,会把利率调整为3.5%-0.5%=3%。

对于已放款客户,到利率调整日根据最新lpr -对应bp:

即,首套房最低房贷利率为(LPR-60BP)2.9%;二套房最低房贷利率为(LPR-30BP)3.2%。

2t2纯板式独立光厅入户

法务区地铁6号线百米直达

双TOD|万方法务岛绿廊

基础信息

总占地:93亩

总户数:871户

面积区间:100-103-112-132

楼层:7-17层

梯户比:1T2、2T2、2T4

容积率:2.0

交付时间:预计25年底

装修标准:2950元

物业:中海物业

坐享天府CBD&天府中央法务区双重区域优势

建面约100-132㎡公园艺境臻宅,首发成都

中海新南图 天府东翼2.0战略启新

2019年,以天府CBD人居地标-天府里启幕天府东翼1.0

2022年,于新川、麓山、中央法务区四子成川,全面焕新商务区板块人居风貌

中海云缦源境坐拥双区高能级配套,精粹生活圈,麓湖公园区-中央法务区-天府CBD聚合式铁三角,更有国际会议中心、中国西部国际博览城等世界级文化交流配套,大悦城等高阶商业配套,匹配您的丰盛生活。

【高阶商业】

天府大悦城、天府和悦广场、麓湖水镇、麓湖伊藤店(在建中),满足大型购物及居家消费需求,享受便捷生活。

【健康医疗】

近享四川省第二人民医院、四川天府新区人民医院(在建中)、四川大学华西天府医院等健康医疗

【全龄优教】

香山k12教育组团、成都市实验外国语学校、天府三中、麓山国际光亚学校等0-18岁全系教育资源丰富。

【项目规划】

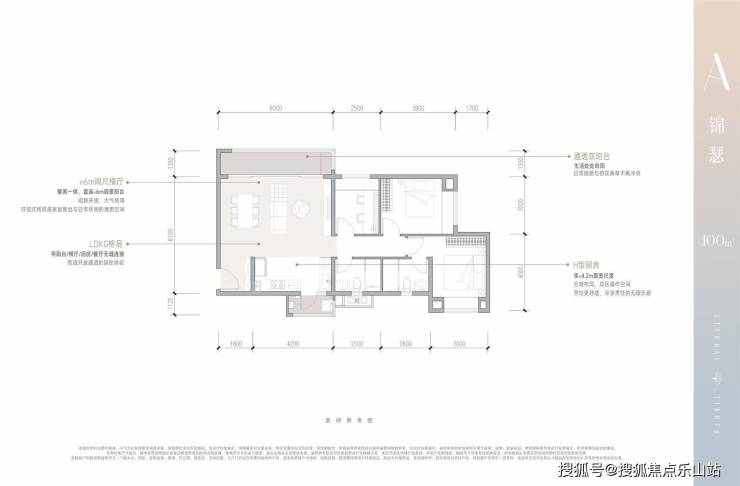
A户型 建面约100㎡三室两厅两卫

成都中海云缦源境售楼处电话:028-87777213【营销中心】

☎【置业顾问】:18613205563「微信同步」☎

☎【置业顾问】:19983517822「微信同步」☎

___欢迎来电咨询丨专业一对一热情服务丨看房需提前预约

——如有侵权请联系我们删帖——

温馨提示:为了节约您的等待时间,看房请提前致电售楼处预约!!!

全部
报名成功
稍后会有专业的置业顾问联系您
返回楼盘

频道导航

返回首页

看房小程序

APP下载

电话拨通后,请您手动拨打分机号

确定拨打电话

电话号码:

分机号:(可能需要拨分机号)