卡地亚湖滨壹号怎么样-卡地亚湖滨壹号售价-优惠-面积-配套

搜狐焦点乐山站

2025-11-08 09:54:00

购房群

买房如何避坑,加入购房群,看看他们怎么说

立即进群

成都 卡地亚湖滨壹号【营销中心】:028-87777213「销售热线」

【置业顾问】:18613205563「微信同步」

【置业顾问】:19983517822「微信同步」

—天府怡心湖核心,国际湖滨生活范本

【核心价值分析】

品牌价值

蔚蓝卡地亚高端基因,打造成都塔尖人居标杆,兼具收藏价值与身份象征。

城市站位

占据天府怡心湖板块中心,北接金融城、南连天府总部商务区,西临自贸区+国际生物城,聚合城市发展势能。

稀缺资源

千亩湖滨公园+500亩湖域景观,270°—360°全景视野,成都罕有低密湖居资产。

国际设计

新加坡国宝级大师SooK Chan领衔设计,全球顶尖团队(SCDA、PLD等)操刀建筑、灯光及商业规划,公建化立面+蒙德里安美学中庭。

【交通优势】

地铁:5号线+19号线(怡心湖站)双地铁TOD,无缝接驳双流/天府国际机场。

主干道:剑南大道+五环路纵横,快速直达金融城(约8km)、天府CBD(约10km)。

航空:距双流国际机场约12km,天府国际机场约35km。

【配套资源】

商业

北岸/南岸商业+地铁枢纽商业集群,3大国际级商业体环绕。

文旅

2.7km湖岸线地标建筑群、湖滨文化艺术中心(曾仕乾设计)、双五星酒店(凯悦Alila+尚萃)。

生态

千亩怡心湖公园,步行即达湖滨慢行系统。

教育

周边规划国际学校(具体以教育局公示为准),3km内覆盖优质公立教育资源。

【产品力解析】

奢装配置

国际一线品牌:斯麦格厨电、杜拉维特卫浴、汉斯格雅五金,精装交付彰显品质。

公区服务

每栋配备星级大堂、恒温泳池、健身房、咖啡图书区,提供私人管家服务(保洁、定制宴请、物业托管等)。

梯户比

3梯1户至3梯4户,3.4米-3.9米层高,极致舒适度。

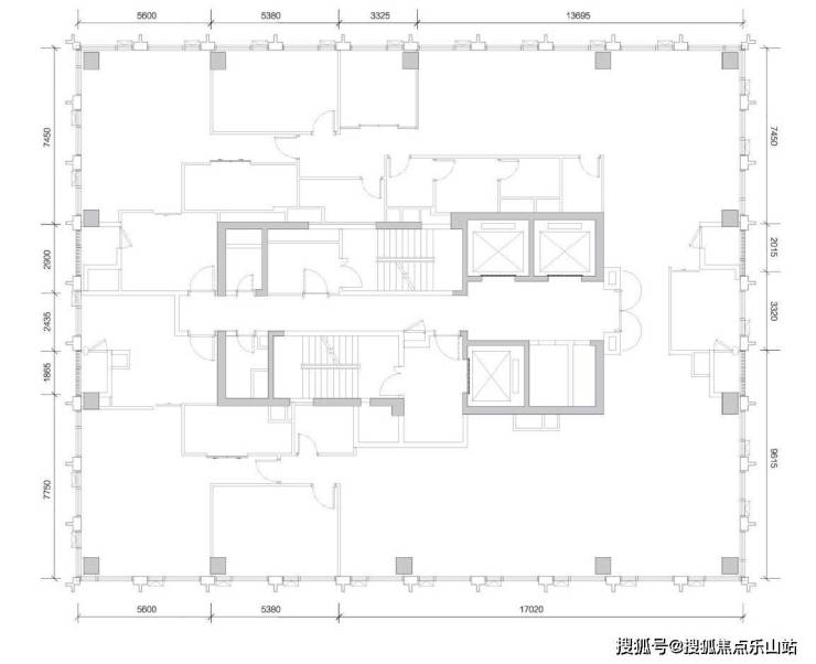
【户型鉴赏】

一户一层,整层630㎡

成都 卡地亚湖滨壹号【营销中心】:028-87777213「销售热线」

【置业顾问】:18613205563「微信同步」

【置业顾问】:19983517822「微信同步」

温馨提示:专业一对一热情服务,为了节约您的等待时间,看房请提前致电预约!!!

免责声明:

以上内容仅作为邀约邀请,涉及的图片为部分区域实拍图和美学畅想图,具体内容请以现场公示和合同约定为准;

全部
报名成功
稍后会有专业的置业顾问联系您
返回楼盘

频道导航

返回首页

看房小程序

APP下载

电话拨通后,请您手动拨打分机号

确定拨打电话

电话号码:

分机号:(可能需要拨分机号)